Tatabánya, Eladó Családi ház (#179917)
Tatabánya-Bánhidán, a Szelim utcában felújított, 3 szobás családi ház eladó – 65 M Ft
Az Openhouse Tatabánya Ingatlaniroda kínálatában eladó a #179917 hivatkozási számú tatabányai családi ház.
Tatabánya kedvelt Bánhida városrészén, a Szelim utcában kínálunk megvételre egy nettó 85 m²-es, korszerűsített családi házat, amely stabil szerkezettel, modern gépészettel és praktikus kiegészítő terekkel biztosít értékálló otthont új tulajdonosának.
Az ingatlan karaktere és szerkezete
Az eredeti, két szobás épületrész masszív vegyes falazattal (szőlősi kő és tégla) épült, a későbbi bővítések már tégla szerkezetűek – így ötvözve a hagyományos alapokat a korszerű kialakítással.
A cserépfedésű tető szerkezete felújításon esett át:
a cserepek leemelésre kerültek, a szükséges tetőléc-cserék megtörténtek, majd az ép cserepek visszahelyezésével biztosították a tartós, esztétikus végeredményt.
Átgondolt térkapcsolatok
-
3 szoba
-
2 külön nyíló szoba
-
a harmadik szoba az egyik szobából közelíthető meg
-
-
Előszoba és közlekedő
-
Konyha kamrával
-
Teljeskörűen felújított, modern fürdőszoba épített zuhanyzóval
A ház folytatásában további praktikus kiszolgálóhelyiségek találhatók:
kazánház, kamra és pince, melyek jelentős tárolási és műszaki kényelmet biztosítanak.
A garázs mögött külön fás tároló került kialakításra.
Műszaki tartalom – valódi biztonság
Az ingatlan nem csupán esztétikailag, hanem műszakilag is teljes körű megújuláson esett át:
-
Teljes villamoshálózat csere
-
Teljes víz- és csatornahálózat megújítása a fürdőtől a vízóráig (konyha kivételével)
-
Új fűtési rendszer (csövek, radiátorok)
-
Olasz kombi gázkazán biztosítja a fűtést és a melegvizet
-
Födémszigetelés ásványgyapottal a lakótér felett
Az átlagos havi fűtésköltség mindössze 13.834 Ft, ami kimondottan kedvező fenntartást jelent.
Komfort és részletek
-
Hőszigetelt műanyag nyílászárók
-
Az utcafronti két szobán redőny és szúnyogháló
-
A további nyílászárókon szúnyogháló
-
4 éve frissített belső festés
-
Ásott kút az udvaron
A telek egyik különlegessége, hogy a ház végében futó utcáról is megközelíthető, így két utcáról biztosított a közlekedés és parkolás, ami ritka és kifejezetten értéknövelő adottság.
Ez az ingatlan ideális választás azok számára, akik stabil szerkezetű, műszakilag felújított, átgondolt elosztású otthont keresnek, praktikus mellékhelyiségekkel és kedvező fenntartási költséggel.
Irányár: 65.000.000 Ft
Érdeklődni:
Szlezák-Forgó Barbara
06 70 620 4097
Ha felkeltette érdeklődését ez az eladó tatabányai családi ház, vagy bármely más családi ház és bővebb információt szeretne, keressen bizalommal.
Hivatkozási szám: #179917
Az Openhouse Tatabánya Ingatlaniroda tagjaként várom Önt az országos hálózatunk teljes kínálatával.
A családi ház vásárláshoz hitelt igényelne? Ingyenes hitelközvetítéssel segít Önnek bankfüggetlen hitelszakértőnk.
További szolgáltatásainkkal (pl. értékbecslés, energetikai tanúsítvány, jogi háttér) is segítjük Önt a vásárlásban.
Az otthon érték. Az ingatlan üzlet.
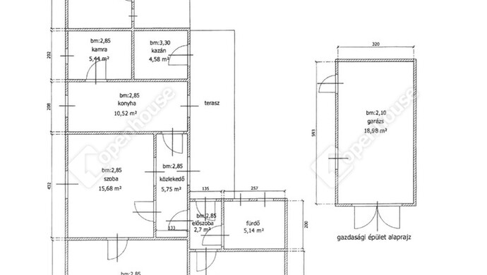
Helyiségek
| Helyiség | Alapterület | Padlóburkolat |
|---|---|---|
| Szoba | 16.28 m2 | Faparketta |
| Szoba | 23.02 m2 | Hajópadló |
| Nappali | 15.68 m2 | Mozaik |
| Előszoba | 2.70 m2 | Mozaik |
| Közlekedő | 5.75 m2 | Mozaik |
| Konyha | 10.52 m2 | Mozaik |
| Kamra | 5.44 m2 | Mozaik |
| Fürdő | 5.14 m2 | Járólap |
Alaprajz
















Magyar 
