Tatabánya, Eladó Sorház (#176793)
Új építésű sorházi lakások Tatabányán – Hársfaliget lakóparkban
Az Openhouse Tatabánya Ingatlaniroda kínálatában eladó a #176793 hivatkozási számú tatabányai sorház.
Tatabánya egyik legkeresettebb városrészében DÓZSAKERTBEN, a Hársfaliget lakóparkban elérhetőek új építésű, modern sorházi lakások. Az 5 lakásos sorház otthonai emeltszintű fűtéskészen vagy igény esetén kulcsrakészen is átvehetők.
Lakások főbb adatai
-
Alapterület: 143,06– 151,96 m²
-
Helyiségek: nappali + étkező + konyha, 3 hálószoba, fürdőszoba, külön WC, háztartási helyiség, terasz, saját kertkapcsolat
-
Parkolás: garázs és/vagy kocsibeálló
-
Telekméret: 208,69-472,69 m² (lakásonként változó)
Műszaki tartalom
-
Korszerű falszerkezet: 30 cm főfalak + 15 cm grafitos szigetelés
-
Nyílászárók: 3 rétegű hőszigetelt ablakok, redőnytokkal előkészítve
-
Fűtés-hűtés: Midea hőszivattyús multi-split klímarendszer minden fő helyiségben
-
Melegvíz: 200 literes villanybojler
-
Fürdőszoba: elektromos padlófűtés + törölközőszárítós radiátor
-
Tető: nyeregtető, cserépfedéssel
-
Terasz: térkövezett
Árak
-
Fűtéskészen: 92.000.000 Ft + telekár (8–12 millió Ft)
-
Kulcsrakészen: 107.000.000 Ft + telekár (8–12 millió Ft)
Lokáció – Miért Hársfaliget?
-
Nyugodt, családbarát környezet
-
Zöldövezet, mégis közel a városközponthoz
-
Könnyű közlekedés Budapest és Győr irányába
-
Új építésű, modern lakóövezet, rendezett környezettel
Miért érdemes választani?
-
Új építésű, garanciális ingatlan
-
Energiahatékony megoldások, alacsony fenntartási költségek
-
Modern építészeti kialakítás, igény szerint személyre szabható belső terek
-
Befektetésnek és saját otthonnak is tökéletes választás
A pontos műszaki leírást és részletes információt személyes találkozó alkalmával kaphat!
Érdeklődni és megtekintést egyeztetni:
Szlezák-Forgó Barbara – +36 70 620 4097
Ha felkeltette érdeklődését ez az eladó tatabányai sorház, vagy bármely más sorház és bővebb információt szeretne, keressen bizalommal.
Hivatkozási szám: #176793
Az Openhouse Tatabánya Ingatlaniroda tagjaként várom Önt az országos hálózatunk teljes kínálatával.
A sorház vásárláshoz hitelt igényelne? Ingyenes hitelközvetítéssel segít Önnek bankfüggetlen hitelszakértőnk.
További szolgáltatásainkkal (pl. értékbecslés, energetikai tanúsítvány, jogi háttér) is segítjük Önt a vásárlásban.
Az otthon érték. Az ingatlan üzlet.
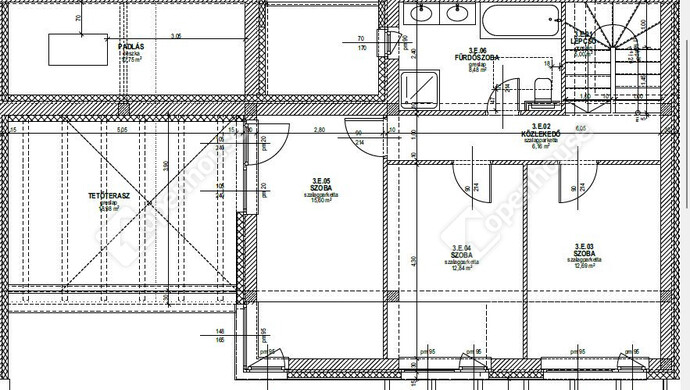
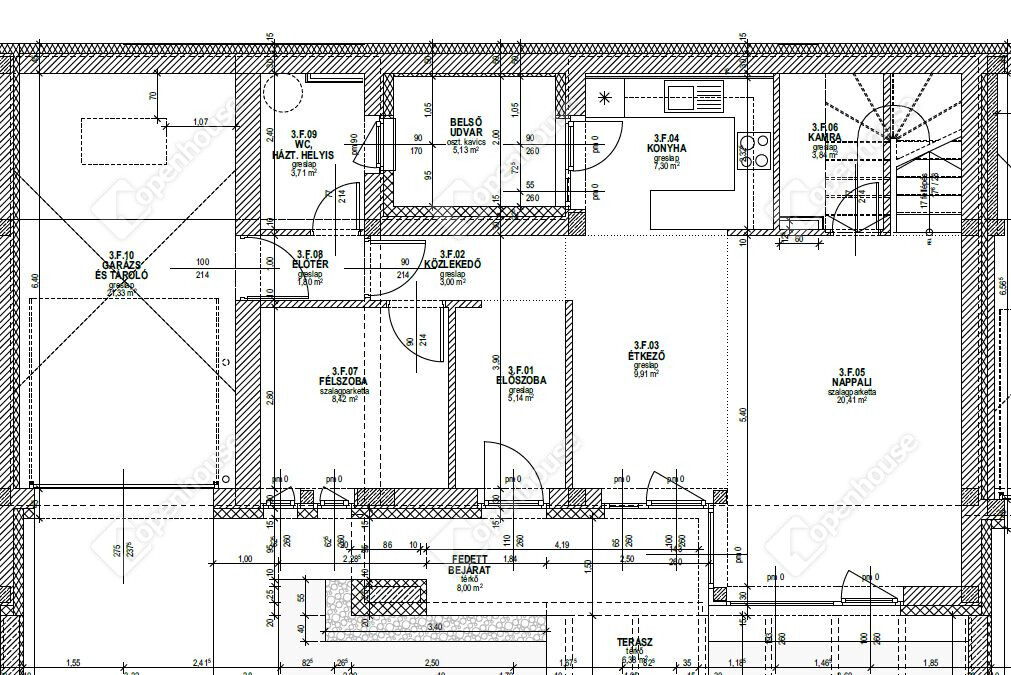
Helyiségek
| Helyiség | Alapterület | Padlóburkolat |
|---|---|---|
| Előszoba | 5.14 m2 | Járólap |
| Közlekedő | 3.00 m2 | Járólap |
| Étkező | 9.91 m2 | Járólap |
| Konyha | 7.54 m2 | Járólap |
| Nappali | 20.41 m2 | Faparketta |
| Kamra | 3.84 m2 | Járólap |
| Szoba | 8.42 m2 | Faparketta |
| Előtér | 1.80 m2 | Járólap |
| WC | 3.71 m2 | Járólap |
| Garázs | 21.33 m2 | Járólap |
| Lépcsőház | 5.00 m2 | Faparketta |
| Közlekedő | 6.16 m2 | Faparketta |
| Szoba | 12.69 m2 | Faparketta |
| Szoba | 12.84 m2 | Faparketta |
| Szoba | 15.60 m2 | Faparketta |
| Fürdő | 8.48 m2 | Járólap |
Alaprajz







Magyar 
