Komárom, Eladó Társasházi lakás (#177179)
Praktikus garzon Komáromban saját erkéllyel – ideális első otthon
Az Openhouse Tatabánya Ingatlaniroda kínálatában eladó a #177179 hivatkozási számú komáromi társasházi lakás.
A Huszár utcai 22 lakásos, modern társasházban kínálunk eladásra nappali + konyha, amelyek kiváló választás családok számára.
A lakásokhoz erkély, terasz vagy akár saját kertkapcsolat is tartozhat. Az épület liftes, energiatakarékos és modern megoldásokkal készül, hosszú távú értékállóságot biztosítva.
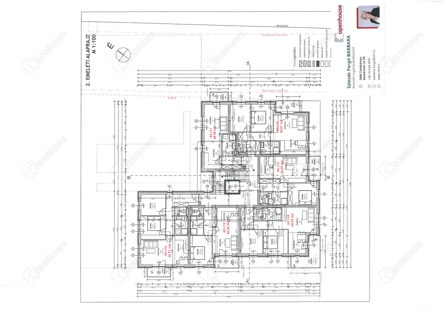
Főbb jellemzők: A2-L11 Lakás
-
34.98 m² alapterület + 3,16 m² erkély
-
Nappali + konyha
-
Belső kialakítás igény szerint
-
Minőségi, új építésű lakókörnyezet
Parkolás
-
Saját beálló vagy zárt garázs vásárolható
-
Árak
-
Fűtéskészen: 34.900.000 Ft
-
Kulcsrakészen: + 120.000,-Ft/m²
Átadás várható: 2027.03.31.
Válassza ki új otthonát időben, és alakítsa saját igényeihez!
A pontos műszaki leírást és részletes információt személyes találkozó alkalmával kaphat.
Érdeklődni és megtekintést egyeztetni a következő telefonszámon lehet:
Szlezák-Forgó Barbara kiemelt értékesítő – +36 70 620 4097
Ha felkeltette érdeklődését ez az eladó komáromi társasházi lakás, vagy bármely más társasházi lakás és bővebb információt szeretne, keressen bizalommal.
Hivatkozási szám: #177179
Az Openhouse Tatabánya Ingatlaniroda tagjaként várom Önt az országos hálózatunk teljes kínálatával.
A társasházi lakás vásárláshoz hitelt igényelne? Ingyenes hitelközvetítéssel segít Önnek bankfüggetlen hitelszakértőnk.
További szolgáltatásainkkal (pl. értékbecslés, energetikai tanúsítvány, jogi háttér) is segítjük Önt a vásárlásban.
Az otthon érték. Az ingatlan üzlet.
Helyiségek
| Helyiség | Alapterület | Padlóburkolat |
|---|---|---|
| Előtér | 4.42 m2 | Járólap |
| Fürdő | 5.38 m2 | Járólap |
| Konyha | 9.12 m2 | Járólap |
| Nappali | 16.06 m2 | Járólap |
| Erkély | 3.16 m2 | Járólap |
Alaprajz










Magyar 
