Adásztevel, Eladó Családi ház (#180974)
Az Openhouse Pápa Ingatlaniroda kínálatában eladó a #180974 BO azonosítójú adászteveli Családi ház.
Eladóvá vált 284 nm-es felújított parasztház szép környezetben, Adásztevelen.
A település Veszprém vármegyében, Pápától 6 km-re a Bakony lábánál fekszik.
A környék kiválóan alkalmas aktív pihenésre, sportolásra, szórakozásra.
A Bakony, a nagyteveli víztározó, a pápai termálfürdő jó lehetőséget biztosít a túrázásra, vadászatra, halászatra, kempingezésre, fürdőzésre.
Adásztevel biztonságos hely, utcái rendezettek, könnyen megközelíthető, az M 1-es autópálya 40 perc alatt elérhető.
A ház az 1920-as években épült vegyes falazattal, pórfödémmel, tetőhéjazata cserép.
Az ingatlan teljes körű felújítása, és bővítése a 2000-es évek elején történt meg.
A felújítás során törekedtek az eredeti állapot visszaállítására, a parasztház jelleg megőrzésére, ezért a szobák hajópadló burkolatot kaptak, és több helyiség padozatát téglával burkolták, illetve a pórfödém is megmaradt.
Megtörtént a falak és a padozat vízszigetelése, kicserélésre került a villany, és a vízvezetékrendszer, új burkolatot /hideg,meleg/ kapott minden helyiség, hőszigetelt fa nyílászárók kerültek beépítésre, megőrizve azok eredeti formáját, külső nyílászárókra pedig biztonsági rácsok kerültek.
Megújult a teljes födém és tetőszerkezet.
Megváltozott több helyiség funkciója, így kialakításra került még két külön bejáratú szoba, fürdőszobával, és beépítésre került a tetőtér egy része, ahol két szoba és egy fürdőszoba kapott helyet.
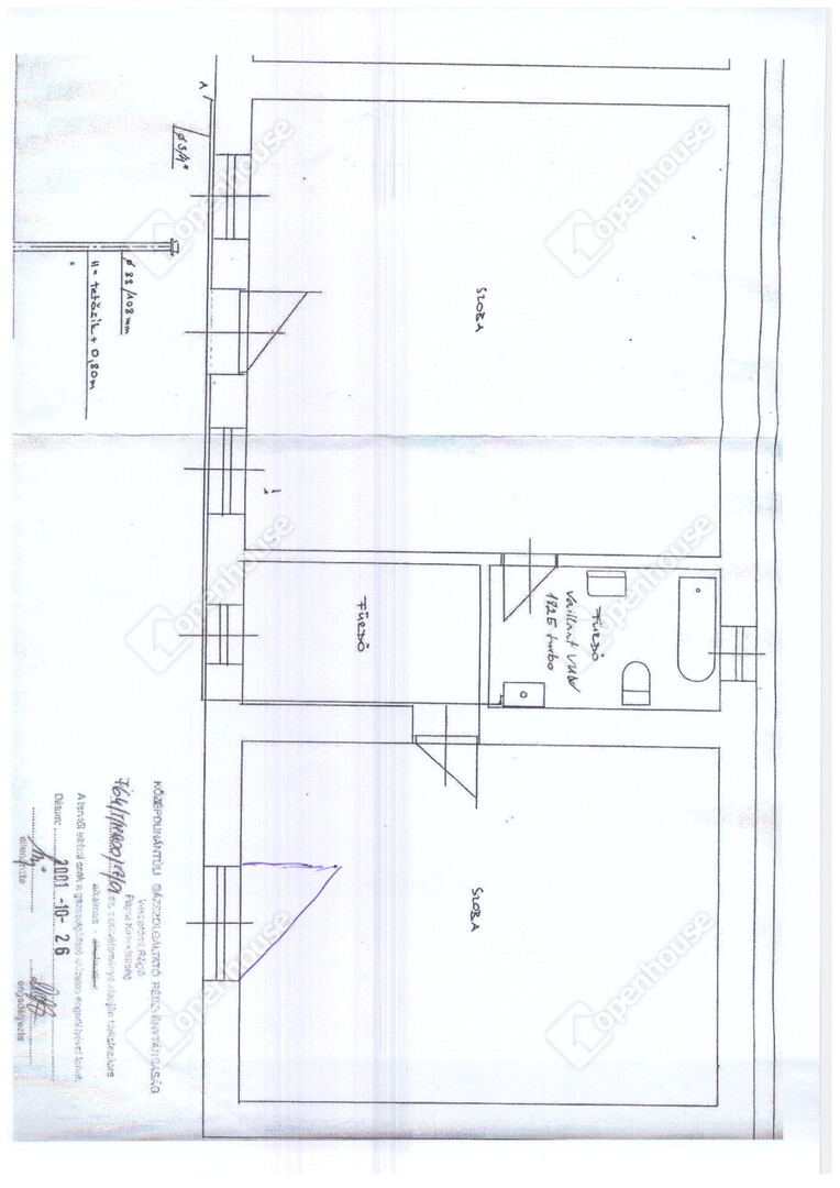
A 253 nm hasznos alapterület 7 szobából, 4 fürdőszobából, konyhából, étkezőből, vendég WC-ből áll.
Megmaradt eredeti állapotában a gádor, és kialakításra került egy 63 nm-es közösségi tér.
Fűtésről gáz kazán gondoskodik, radiátoros hőleadók segítségével, de lehetőség van alternatív fűtésre, vegyes tüzelésű kandallóval.
A telek területe 2430 nm, melyre két utcából is van bejárat, ahol 12-20 autó parkolására van lehetőség.
Az udvar füvesített, gondozott, ahol egy gazdasági épület és ásott kút is található.
Ez a különleges, egyedi ingatlan lokációjából adódóan kiválóan alkalmas vadászháznak, turisztikai célra, de a parasztházak szerelmeseinek lakóháznak is.
Várom megtisztelő hívását, ha felkeltette érdeklődését a hirdetés.
Ön is ingatlant keres? Válassza Irodánkat!
Amennyiben a #180974 BO azonosítójú, adászteveli eladó Családi ház vagy bármely, az Openhouse hálózat kínálatában található ingatlan felkeltette érdeklődését, kérem, hívjon bizalommal!
SEGÍTÜNK, INTÉZZEN VELÜNK MINDENT EGY HELYEN!
Már megtalálta vagy még keresi „álmai otthonát”, de nem rendelkezik a megvásárlásához szükséges teljes vételárral?
Ne járjon bankról bankra!
Hitelszakértőnk, legyen szó akár piaci, akár államilag támogatott hitelről vagy vissza nem térítendő támogatásról, megtalálja az Önnek legmegfelelőbb egyedi konstrukciót.
Bankfüggetlen hitelügyintézőnk nagy szakmai tapasztalattal és a bankok ajánlatánál kedvezőbb lehetőségekkel segíti a Családi ház finanszírozását. Támogatja Önt a legkedvezőbb konstrukció kiválasztásában. Teljeskörűen összeállítja a hitelkérelmet, és a hitel folyósításáig végigkíséri az egész folyamatot.
CSOK-kal és Babaváró hitellel kapcsolatban is keressen minket bizalommal!
Kereső ügyfeleinknek a hitelközvetítői szolgáltatásaink ingyenesek.
Az otthon érték. Az ingatlan üzlet.
Helyiségek
| Helyiség | Alapterület | Padlóburkolat |
|---|---|---|
| Szoba | 25.00 m2 | |
| Szoba | 21.00 m2 | |
| Nappali | 21.00 m2 | |
| Amerikai konyha | 17.00 m2 | |
| Konyha | 9.00 m2 | |
| Fürdő | 9.00 m2 | |
| Szoba | 29.00 m2 | |
| Szoba | 42.00 m2 | |
| Fürdő | 6.00 m2 | |
| Szoba | 30.00 m2 | |
| Szoba | 14.00 m2 | |
| Szoba | 10.00 m2 |
Alaprajz






















































Magyar 
