Győr, Kiadó Társasházi lakás (#180875)
Nádorvárosban Kiadó Lakás
Az Openhouse Győr - Belváros Ingatlaniroda kínálatában kiadó a #180875 hivatkozási számú győri társasházi lakás.
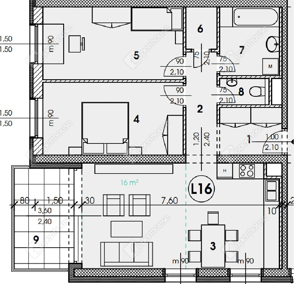
Nádorvárosban kiadó egy 78,9 m² alapterületű, amerikai konyhás nappali + 2 szobás elrendezésű lakás. A lakáshoz még tartozik egy 8,5 m²-es erkély. Ideális válastás családoknak.
Főbb jellemzők:
- Alapterület 78,9 m²
- 2. emeleti lakás
- Jelenleg bútorozatlan igény esetén bútorozható
- Fűtés: Távhő
- Fürdőszobában elektromos törölköző szárító radiátor
- Alumínium hő- és hangszigetelő nyílászárókkal.
- A környéken boltok, játszótér és kutyafuttató is található.
Bérleti feltételek:
-
Minimum: 1 év
-
Beköltözéshez szükséges: 2 havi kaució + 1 tárgyhavi bérleti díj
-
Dohányzás a lakásban nem megengedett
-
Mélygarázsban kötelező kocsibeálló bérlése: 30 000 Ft/ db/ hó
-
Kisállat hozható
-
Költözhető: 2026. április elejétőt
A lakás világos helyiségei és praktikus elrendezése barátságos, kényelmes otthont biztosít a mindennapokra. A környék ellátottsága kiváló: üzletek, buszmegállók, iskolák és parkok könnyen elérhetők.
Ha felkeltette érdeklődését ez a győri társasházi lakás, vagy bármely más társasházi lakás és bővebb információt szeretne, keressen bizalommal.
Hivatkozási szám: ##180875
Az Openhouse Győr - Belváros Ingatlaniroda tagjaként várom Önt az országos hálózatunk teljes kínálatával.
Vásárolna és Hitelt igényelne? Ingyenes hitelközvetítéssel segít Önnek bankfüggetlen hitelszakértőnk.
További szolgáltatásainkkal (pl. energetikai tanúsítvány, jogi háttér) is segítjük Önt a bérlésben.
Az otthon érték. Az ingatlan üzlet.
Helyiségek
| Helyiség | Alapterület | Padlóburkolat |
|---|---|---|
| Előszoba | 4.44 m2 | Járólap |
| Amerikai konyha | 30.04 m2 | Járólap |
| Közlekedő | 5.04 m2 | Járólap |
| Szoba | 14.85 m2 | Laminált padló |
| WC | 1.75 m2 | Járólap |
| Fürdő | 5.98 m2 | Járólap |
| Erkély | 8.48 m2 | Járólap |
| Szoba | 14.85 m2 | Laminált padló |
| Gardrób | 1.92 m2 | Járólap |
Alaprajz








Magyar 
