Győr, Eladó Téglaépítésű lakás (#180267)
Az Openhouse Győr - Révfalu Ingatlaniroda kínálatában eladó a #180267 BO azonosítójú győri Téglaépítésű lakás.
Új építésű lakások Győr-Szigetben a Bercsényi ligetben!
Ha megfelelő lokációban, kultúrált környezetben keresel új lakást saját részre vagy befektetésre, ez a lehetőség neked szól! Összesen 3db lakás eladó még az 5 lakásos társasházból!
3. lakás: Nappali plusz 2 szobás, 2. emeleti, zöldre néző kilátással! Ne habozz legyen a tiéd!
Átadás várhatóan 2026. év vége emeltszintű fűtéskész állapotban. Kulcsrakész kivitelezés, megállapodás kérdése.
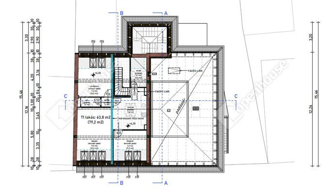
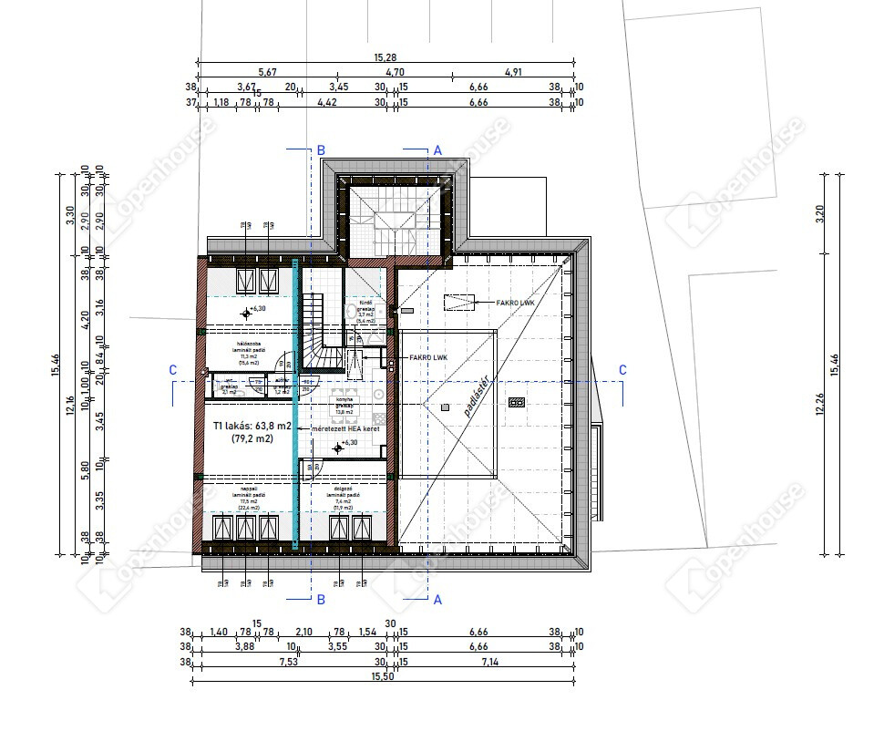
A lakás bruttó 79,2 nm nettó 63,8 nm, tetőtéri lakás.
Fűtését kondenzációs gázkazán szolgáltatja PADLÓFŰTÉSES hőleadással. Illetve 1 db klíma kerül beszerelésre.
Műszaki jellemzők:
- Külső falszerkezetek LEIERTHERM 38 N+F és LEIERTHERM
- 30 N+F falazóelemekkel
- Tetőhéjazat: Antracit színű BRAMAC Tectura cserépfedés készül
- Válaszfalak: LEIERTHERM 10 N+F válaszfalelemekből készülnek 10 cm vastagságban
- Hőszigetelés: A tetőtér ferde síkjainak hőszigetelése 25 cm Rockwool Multirock ásványgyapot hőszigeteléssel készül, míg a tetőtér feletti padlásfödém összesen 35 cm Rockwool Multirock ásványgyapot hőszigetelést kap.
- A külső falszerkezeteket 10 cm AUSTROTHERM GRAFIT hőszigetelés egészít ki.
- A padlók hő- és hangszigetelése AUSTROTHERM AT-N100 anyagból lépésálló kivitelben készül, a rétegrendek szerinti vastagságban.
A lakásokhoz 1db zárt udvari (elektromos kapus) nyitott beálló is tartozik melynek ára 3,5 M Ft.
1. lakás 60,2 nm +7,9 nm terasz, fűtéskész ára: 69.900.000 Ft
2. lakás: 64,8 nm + 6,9 nm terasz, fűtéskész ára: 69.900.000 Ft
3. lakás: br. 79,2 nm nettó 63,8 nm, fűtéskész ára: 64.900.000 Ft
Ha felkeltettem érdeklődését telefonáljon mihamarabb! A lakások csak nálam elérhetőek!
Hitelre van szüksége??
Az Otthon Centrum az ország egyik legnagyobb és legmegbízhatóbb hitelközvetítőjeként, teljes körű és díjmentes hitelügyintézéssel, biztosításkötéssel áll rendelkezésére!
Kérje személyre szabott ajánlatunkat Kollégáinktól!
Ön is ingatlant keres? Válassza Irodánkat!
Amennyiben a #180267 BO azonosítójú, győri eladó Téglaépítésű lakás vagy bármely, az Openhouse hálózat kínálatában található ingatlan felkeltette érdeklődését, kérem, hívjon bizalommal!
SEGÍTÜNK, INTÉZZEN VELÜNK MINDENT EGY HELYEN!
Már megtalálta vagy még keresi „álmai otthonát”, de nem rendelkezik a megvásárlásához szükséges teljes vételárral?
Ne járjon bankról bankra!
Hitelszakértőnk, legyen szó akár piaci, akár államilag támogatott hitelről vagy vissza nem térítendő támogatásról, megtalálja az Önnek legmegfelelőbb egyedi konstrukciót.
Bankfüggetlen hitelügyintézőnk nagy szakmai tapasztalattal és a bankok ajánlatánál kedvezőbb lehetőségekkel segíti a Téglaépítésű lakás finanszírozását. Támogatja Önt a legkedvezőbb konstrukció kiválasztásában. Teljeskörűen összeállítja a hitelkérelmet, és a hitel folyósításáig végigkíséri az egész folyamatot.
CSOK-kal és Babaváró hitellel kapcsolatban is keressen minket bizalommal!
Kereső ügyfeleinknek a hitelközvetítői szolgáltatásaink ingyenesek.
Az otthon érték. Az ingatlan üzlet.
Helyiségek
| Helyiség | Alapterület | Padlóburkolat |
|---|---|---|
| Amerikai konyha | 36.20 m2 | |
| Szoba | 13.40 m2 | |
| Szoba | 11.90 m2 | |
| Fürdő | 5.40 m2 | |
| WC | 2.10 m2 | |
| Előszoba | 1.20 m2 |
Alaprajz












Magyar 
