Győr, Eladó Telek (#180221)
Építési telek eladó Győr kedvelt városrészében Ménfőcsanakon– kész tervekkel!
Az Openhouse Győr - Révfalu Ingatlaniroda kínálatában eladó a #180221 hivatkozási számú győri telek.
Ritka lehetőség Győr egyik legkedveltebb kertvárosi részén – építési telek eladó Győr-Ménfőcsanakon, kész tervekkel!
Ha olyan helyet keres, ahol a nyugodt kertvárosi élet és a városi infrastruktúra tökéletes egyensúlyban van, akkor ezt a lehetőséget érdemes közelebbről is megnéznie.
Győr egyik legkeresettebb városrészében, Győr‑Ménfőcsanak területén kínálunk megvételre egy különleges adottságokkal rendelkező építési telket, ahol a jövőbeli otthona már szinte formát is kapott.
A 2019 nm-es telek hátsó, közel 1500 nm-es része kerül értékesítésre, amely ideális méretet biztosít egy tágas, privát életteret nyújtó családi ház számára. A telek utcafrontján egy meglévő ingatlan található, míg az eladó terület privát bejáraton keresztül közelíthető meg, a jogilag rendezett használati megosztásnak köszönhetően.
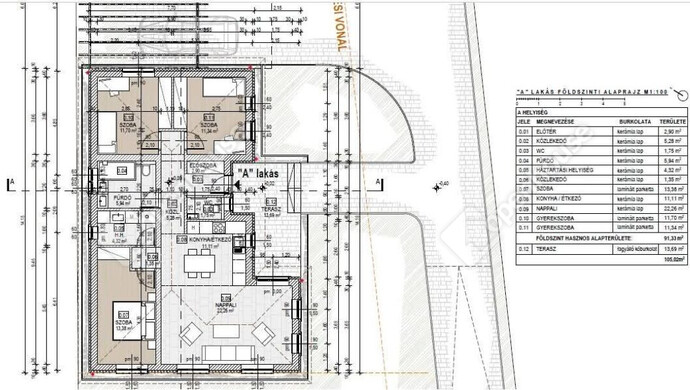
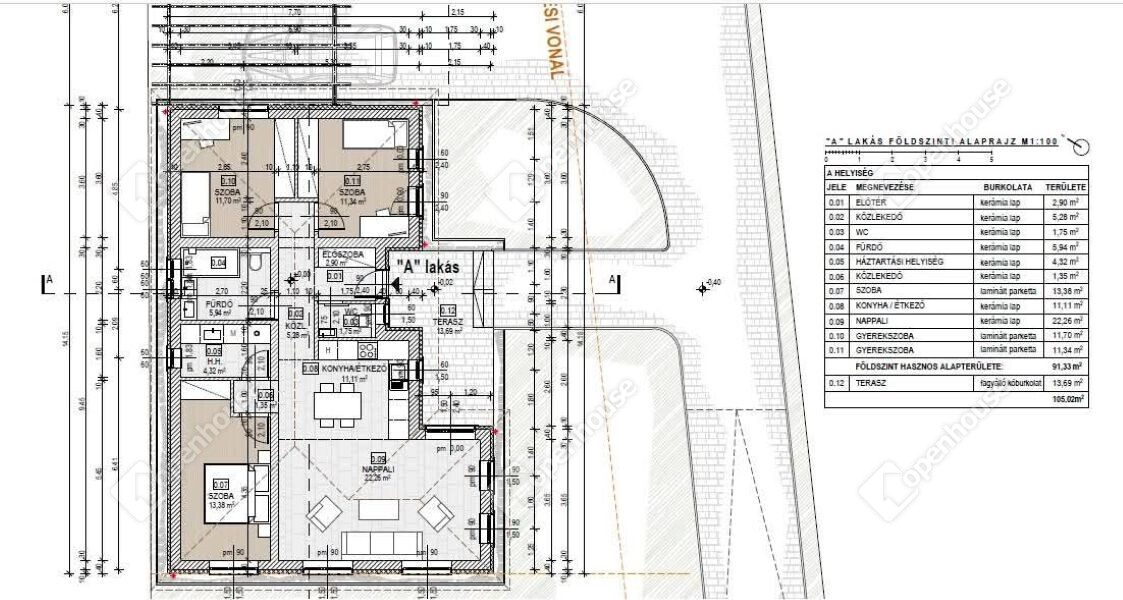
Az ingatlan egyik legnagyobb értéke, hogy már elkészült építészeti tervdokumentációval rendelkezik, amely a vételár részét képezi. Ennek köszönhetően az új tulajdonos akár azonnal megkezdheti az építkezést, jelentős időt és költséget megtakarítva. Természetesen lehetőség van saját elképzelések megvalósítására is, így a telek valóban az Ön igényei szerint formálható.
A terület külön hangulatát az elmúlt években közel 1000 nm-en telepített gyümölcsfák adják, amelyek egy természetközeli, zöld környezetet biztosítanak. Egy ilyen kert nemcsak esztétikai értéket képvisel, hanem valódi életminőséget is.
A lokáció az egyik legnagyobb előny: Győr ezen városrésze kiváló infrastruktúrával rendelkezik. A közelben megtalálhatók oktatási intézmények, üzletek, szolgáltatások, valamint a városközpont is gyorsan elérhető.
A telek teljes közműellátottsággal rendelkezik, minden szükséges közmű a telken belül található:
- víz
- villany
- gáz
- csatorna
Ez az ingatlan ideális választás lehet mindazok számára, akik Győr egyik legjobb kertvárosi környezetében szeretnének építkezni, nagy telekkel, privát megközelítéssel és már rendelkezésre álló tervekkel.
Az ilyen adottságú telkek ritkán kerülnek piacra, ezért ha egy valóban értékálló befektetést vagy jövőbeli otthonának helyszínét keresi, érdemes személyesen is megismernie ezt a lehetőséget.
Érdeklődés esetén további információval és megtekintési időponttal állunk rendelkezésére.
Ha felkeltette érdeklődését ez az eladó győri telek, vagy bármely más telek és bővebb információt szeretne, keressen bizalommal.
Hivatkozási szám: #180221
Az Openhouse Győr - Révfalu Ingatlaniroda tagjaként várom Önt az országos hálózatunk teljes kínálatával.
A telek vásárláshoz hitelt igényelne? Ingyenes hitelközvetítéssel segít Önnek bankfüggetlen hitelszakértőnk.
További szolgáltatásainkkal (pl. értékbecslés, energetikai tanúsítvány, jogi háttér) is segítjük Önt a vásárlásban.
Az otthon érték. Az ingatlan üzlet.
Alaprajz







Magyar 
