Győrság, Eladó Családi ház (#179452)
Győrságon magas minőségben kivitelezett ház eladó
Az Openhouse Center - Győr Ingatlaniroda kínálatában eladó a #179452 hivatkozási számú győrsági családi ház.
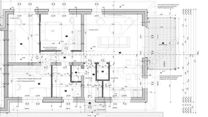
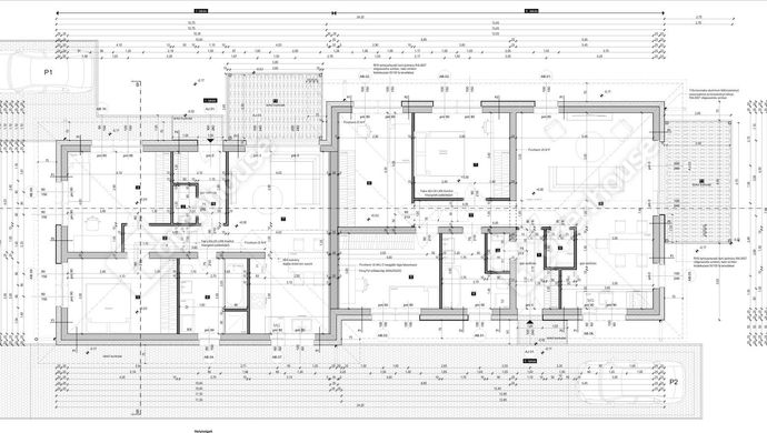
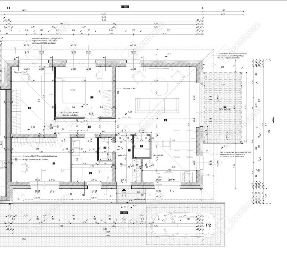
Az L2-es lakás főbb paraméterei:
- 91,98 m2-es,
- 13,75 m2-es terasszal,
- 373 m2-es, összközműves telken,
- nappali+ 3 szobás,
- tégla épület,
- átgondolt, élhető tervezés,
- 1 db klímával,
- napelemmel,
- nagyobb ablakfelületen elektromos, a kisebb ablakokon manuális redőnnyel.
Építkezés kezdete: 2026. február.
A hirdetési ár a fűtés kész állapotot tükrözi, telekkel és napelemmel együtt.
Igény szerint kulcsra kész befejezéssel.
Megbízható, tőkeerős kivitelezőtől!
Értékegyeztetéssel, akár győri lakás beszámítással!
Ha felkeltette érdeklődését ez az eladó győrsági családi ház, vagy bármely más családi ház és bővebb információt szeretne, keressen bizalommal.
Hivatkozási szám: #179452
Az Openhouse Center - Győr Ingatlaniroda tagjaként várom Önt az országos hálózatunk teljes kínálatával.
A családi ház vásárláshoz hitelt igényelne? Ingyenes hitelközvetítéssel segít Önnek bankfüggetlen hitelszakértőnk.
További szolgáltatásainkkal (pl. értékbecslés, energetikai tanúsítvány, jogi háttér) is segítjük Önt a vásárlásban.
Az otthon érték. Az ingatlan üzlet.
Helyiségek
| Helyiség | Alapterület | Padlóburkolat |
|---|---|---|
| Előszoba | 4.39 m2 | Burkolat nélküli |
| WC | 1.35 m2 | Burkolat nélküli |
| Közlekedő | 4.25 m2 | Burkolat nélküli |
| Fürdő | 6.50 m2 | Burkolat nélküli |
| Szoba | 12.00 m2 | Burkolat nélküli |
| Szoba | 13.20 m2 | Burkolat nélküli |
| Szoba | 12.92 m2 | Burkolat nélküli |
| Kamra | 1.65 m2 | Burkolat nélküli |
| Amerikai konyha | 35.63 m2 | Burkolat nélküli |
| Terasz | 13.75 m2 | Burkolat nélküli |
Alaprajz












Magyar 
