Győr, Eladó Társasházi lakás (#179421)
Megújult, azonnal költözhető lakás Marcalváros kedvelt részén
Az Openhouse Győr - Révfalu Ingatlaniroda kínálatában eladó a #179421 hivatkozási számú győri társasházi lakás.
Ide tényleg csak költözni kell!!
Győr népszerű városrészében, Marcalváros I-ben kínálok megvételre egy 53 m²-es, 1+2 félszobás társasházi lakást, amely egy 11 szintes, liftes panelépület 5. emeletén található. A társasház egyik nagy előnye, hogy szintenként mindössze két lakás található, így csendesebb és nyugodtabb lakókörnyezetet biztosít.
Az ingatlan egy 1975-ben épült panelházban helyezkedik el, amelynek lakása 2018-ban teljes műszaki felújításon esett át. Ennek során a villamoshálózat korszerűsítésre került (20A, fí relé, új biztosítékszekrény), valamint 3 rétegű műanyag nyílászárók, redőnyök és klímaberendezés kerültek beépítésre.
A lakás 2026-ban további felújításokon esett át, melyek során:
- új laminált padló került lerakásra,
- világítótestek cseréje történt,
- a fürdőszobában új kád, mosdó és mosdószekrény került beépítésre,
- a WC cseréje jelenleg folyamatban van,
- valamint új konyhabútor és új páraelszívó került a konyhába.
A lakás világos, praktikus elrendezésű:
- egy tágas nappali
- és két külön nyíló félszoba biztosítja a kényelmes életteret.
A vételár tartalmazza a konyhabútort, a páraelszívót, és a klímaberendezést, továbbá az ingatlanhoz saját tároló is tartozik.
A lépcsőház zárt, rendezett és folyamatosan karbantartott. Bár az épület nem panelprogramos, a közös terek több ponton már megújultak: a köztes szinteken műanyag nyílászárók, mozgásérzékelős világítás és új postaládák kerültek kialakításra.
Fűtés: távhő
Átlagos havi költség: kb. 15 000 Ft
Közös költség: 22 000 Ft (liftfelújítás miatt)
Az ingatlan azonnal birtokba vehető, parkolás az utcán megoldott. A környéken üzletek, szolgáltatások és tömegközlekedési lehetőségek rövid sétával elérhetők.
Ha felkeltette érdeklődését ez az eladó győri társasházi lakás, vagy bármely más társasházi lakás és bővebb információt szeretne, keressen bizalommal.
Hivatkozási szám: #179421
Az Openhouse Győr - Révfalu Ingatlaniroda tagjaként várom Önt az országos hálózatunk teljes kínálatával.
A társasházi lakás vásárláshoz hitelt igényelne? Ingyenes hitelközvetítéssel segít Önnek bankfüggetlen hitelszakértőnk.
További szolgáltatásainkkal (pl. értékbecslés, energetikai tanúsítvány, jogi háttér) is segítjük Önt a vásárlásban.
Az otthon érték. Az ingatlan üzlet.
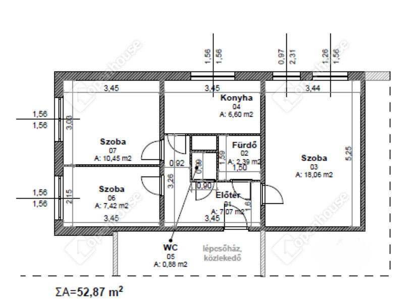
Helyiségek
| Helyiség | Alapterület | Padlóburkolat |
|---|---|---|
| Szoba | 18.00 m2 | Laminált padló |
| Szoba | 10.00 m2 | Laminált padló |
| Szoba | 7.00 m2 | Laminált padló |
| Konyha | 7.00 m2 | Járólap |
| Előtér | 7.00 m2 | Járólap |
| WC | 1.00 m2 | Járólap |
| Fürdő | 3.00 m2 | Járólap |
Alaprajz














Magyar 
