Sopron, Eladó Társasházi lakás (#179080)
Sopronban, belváros közeli tágas lakás eladó
Az Openhouse Sopron Ingatlaniroda kínálatában eladó a #179080 hivatkozási számú soproni társasházi lakás.
Sopron belvárosának közelében a Csengery utcában eladó egy 1. emeleti tágas lakás
- Tégla építésű társasház
- 67nm + erkély
- 2 szoba
- gáz cirkó fűtés radiátorokkal
- külön fürdő és wc
- lakható de modernizálandó állapotban
- azonnal költözhető
- nagy méretű tárolóval a földszinten
- frekventált hely
Ha felkeltette érdeklődését ez az eladó soproni társasházi lakás, vagy bármely más társasházi lakás és bővebb információt szeretne, keressen bizalommal.
Hivatkozási szám: #179080
Az Openhouse Sopron Ingatlaniroda tagjaként várom Önt az országos hálózatunk teljes kínálatával.
A társasházi lakás vásárláshoz hitelt igényelne? Ingyenes hitelközvetítéssel segít Önnek bankfüggetlen hitelszakértőnk.
További szolgáltatásainkkal (pl. értékbecslés, energetikai tanúsítvány, jogi háttér) is segítjük Önt a vásárlásban.
Az otthon érték. Az ingatlan üzlet.
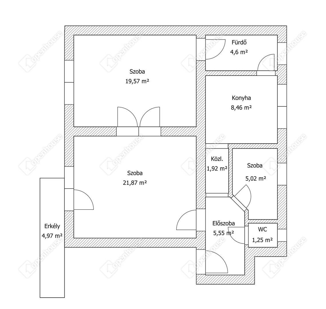
Helyiségek
| Helyiség | Alapterület | Padlóburkolat |
|---|---|---|
| Előszoba | 5.50 m2 | Járólap |
| Közlekedő | 1.90 m2 | Járólap |
| WC | 1.20 m2 | Járólap |
| Konyha | 8.40 m2 | Járólap |
| Fürdő | 4.60 m2 | Járólap |
| Szoba | 5.00 m2 | Laminált padló |
| Szoba | 21.80 m2 | Faparketta |
| Szoba | 19.50 m2 | Faparketta |
| Erkély | 4.90 m2 | Kőburkolat |
Alaprajz















Magyar
Angol
Német 
