Sopron, Eladó Társasházi lakás (#178257)
Nyugalom, kényelem, minőség – minden egy helyen!
Az Openhouse Sopron Ingatlaniroda kínálatában eladó a #178257 hivatkozási számú soproni társasházi lakás.
Eladó ez a gyönyörű, 103 m²-es lakás Sopron kertvárosában, a Temető utcában!
Világos, tágas terek, 2023-ban felújított amerikai konyha, kiváló hőszigetelés, alacsony rezsi és a madarak csicsergése teszi igazán otthonossá ezt a helyet.
- 103 m² alapterület
- 3 szoba (ebből 2 hálószoba)
- Cirkó gázfűtés – alacsony rezsi
- Klíma
- Saját kocsibeálló 2 autóra
- Saját tároló
- Tégla építés, 2005-ben épült
- Világos, ablakos terek
- Műanyag nyílászárók, kiváló hőszigetelés
- 2023-ban teljesen felújított amerikai konyha
- Igény esetén bútorozottan is eladó
- Alacsony közös költség
- Csendes, zöld környezet – csiripelő madarak, rendezett környék
- Igény esetén garázs is vásárolható hozzá!
Ez a lakás nem csak egy ingatlan — egy otthon, ahol igazán jól érzed magad.
Csak beköltözöl, és élvezed a nyugalmat!
Ha felkeltette érdeklődését ez az eladó soproni társasházi lakás, vagy bármely más társasházi lakás és bővebb információt szeretne, keressen bizalommal.
Hivatkozási szám: #178257
Az Openhouse Sopron Ingatlaniroda tagjaként várom Önt az országos hálózatunk teljes kínálatával.
A társasházi lakás vásárláshoz hitelt igényelne? Ingyenes hitelközvetítéssel segít Önnek bankfüggetlen hitelszakértőnk.
További szolgáltatásainkkal (pl. értékbecslés, energetikai tanúsítvány, jogi háttér) is segítjük Önt a vásárlásban.
Az otthon érték. Az ingatlan üzlet.
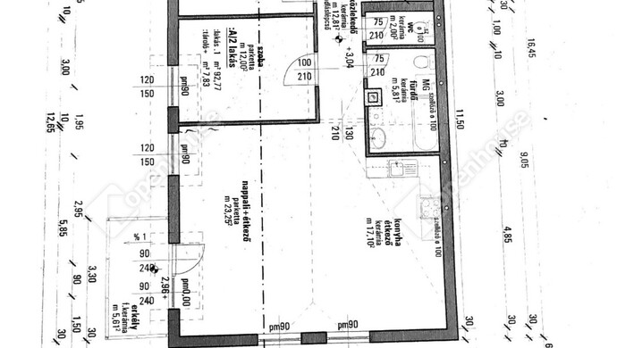
Helyiségek
| Helyiség | Alapterület | Padlóburkolat |
|---|---|---|
| Előszoba | 7.80 m2 | Járólap |
| Tároló | 7.83 m2 | Járólap |
| Közlekedő | 12.82 m2 | Járólap |
| Szoba | 12.00 m2 | Laminált padló |
| Szoba | 12.00 m2 | Laminált padló |
| Nappali | 23.25 m2 | Járólap |
| Amerikai konyha | 17.10 m2 | Járólap |
| Fürdő | 5.81 m2 | Járólap |
| WC | 2.00 m2 | Járólap |
| Erkély | 5.61 m2 | Járólap |
















Magyar
Angol
Német 
