Gencsapáti, Eladó Családi ház (#176337)
Eladó új építésű lakóház Gencsapátiban, a Daniella lakóparkban!
Az Openhouse Szombathely Ingatlaniroda kínálatában eladó a #176337 hivatkozási számú gencsapáti családi ház.
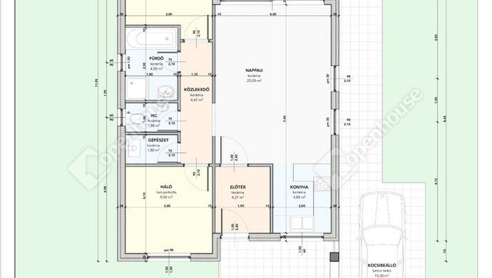
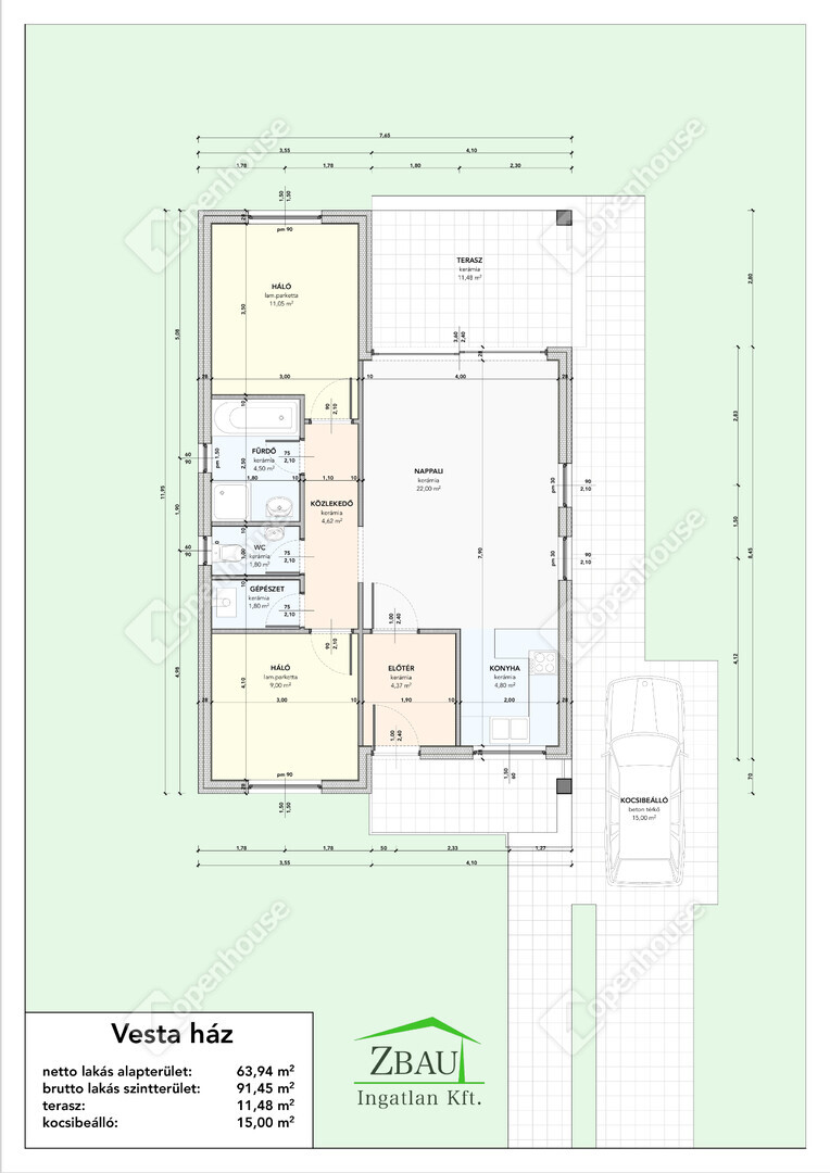
Vesta 1
Irodánk megvételre kínál új építésű, könnyűszerkezetes, 2 hálószobás, 63,94 négyzetméteres lakóházat Gencsapátiban, a jelenleg is építés alatt álló Daniella lakóparkban.
Az ingatlanok a legmodernebb SIP technológia által kerülnek felépítésre, melyek BB/AA/AA++ energetikai osztályba sorolással és EMI engedéllyel (biztonság és garancia) kerülnek átadásra megbízható beruházótól.
Kulcsrakész állapotban mindössze 4-8 hónap alatt átveheti új otthonát!
Elhelyezkedés:
- Könnyen megközelíthető, Szombathely és Gencsapáti határán helyezkedik el, Szombathely belvárosától csupán 10 percnyi autóútra.
Szerkezet:
- Energiatakarékosság szempontjából a legjobb Grafitos SIP szerkezet
- Tűzbiztonság
Fűtés:
- Gree levegő-levegő vagy levegő-víz hőszivattyús eszköz, mellyel a hagyományos vízkeringetős és/vagy fan-coil technológiával biztosítható a fűtési vagy esetleges hűtési rendszer (Wifi eléréssel)
- Hőleadókat egyedileg választhatják ki az ügyfelek
- Norvég elektromos Wi-fi fűtőpanelek
- Norvég elektromos padlófűtés
Nyílászárók:
- REHAU 6 légkamrás 3 rétegű üvegezésű ablakok
Alapfelszereltségen felüli kivitelezésben napelem létesítés lehetséges.
Ha felkeltette érdeklődését ez az eladó gencsapáti családi ház, vagy bármely más családi ház és bővebb információt szeretne, keressen bizalommal.
Hivatkozási szám: #176337
Az Openhouse Szombathely Ingatlaniroda tagjaként várom Önt az országos hálózatunk teljes kínálatával.
A családi ház vásárláshoz hitelt igényelne? Ingyenes hitelközvetítéssel segít Önnek bankfüggetlen hitelszakértőnk.
További szolgáltatásainkkal (pl. értékbecslés, energetikai tanúsítvány, jogi háttér) is segítjük Önt a vásárlásban.
Az otthon érték. Az ingatlan üzlet.
Helyiségek
| Helyiség | Alapterület | Padlóburkolat |
|---|---|---|
| Szoba | 11.00 m2 | |
| Szoba | 9.00 m2 | |
| Konyha | 4.00 m2 | |
| Nappali | 22.00 m2 | |
| Közlekedő | 4.00 m2 | |
| Fürdő | 4.00 m2 | |
| WC | 2.00 m2 | |
| Előtér | 4.00 m2 | |
| Háztartási helyiség | 2.00 m2 | |
| Terasz | 11.00 m2 |
Alaprajz











Magyar
Angol
Német 
