Keszthely, Eladó Társasházi lakás (#181352)
„Alakítsa saját stílusára – értékálló otthon Keszthely szívében.”
Az Openhouse Zalaegerszeg Ingatlaniroda kínálatában eladó a #181352 hivatkozási számú keszthelyi társasházi lakás.
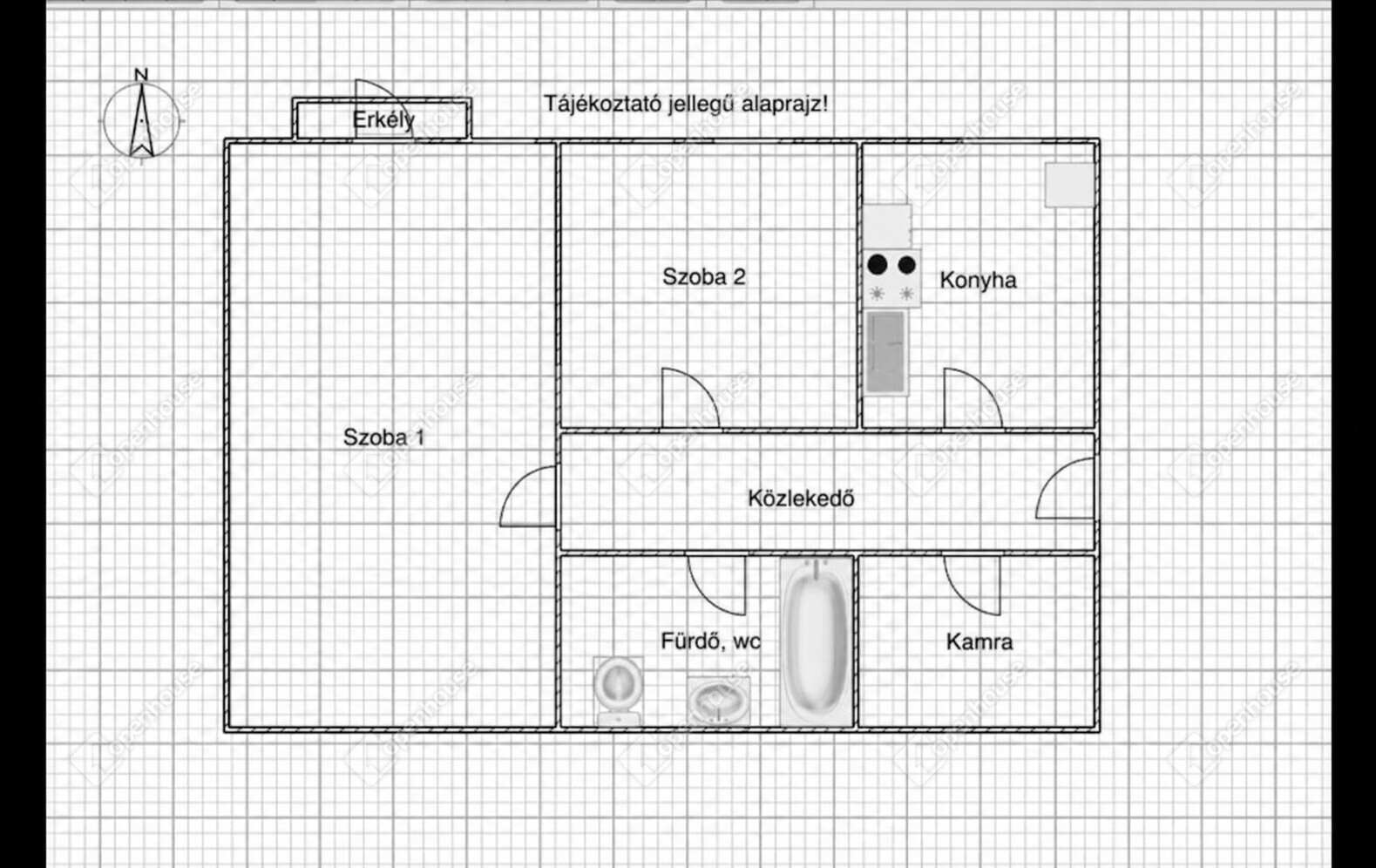
Keszthely , nyugodt részén, a Szent Miklós utcában kínálunk megvételre egy 43 m²-es, 1,5 szobás, téglaépítésű lakást, amely kiváló lehetőség akár saját otthonnak, akár befektetésnek.
Az ingatlan központi elhelyezkedésének köszönhetően minden fontos intézmény és szolgáltatás könnyen elérhető, mégis csendes, élhető környezetet biztosít. A lakás részben felújított állapotú, műanyag nyílászárókkal felszerelt, valamint klímaberendezéssel is rendelkezik, így a komfort adott a mindennapokhoz. A fűtésről konvektorok gondoskodnak, ami kedvező fenntartási költségeket tesz lehetővé.
A fürdőszoba jelenleg teljes felújítást igényel, ami egyben remek lehetőséget kínál arra, hogy az új tulajdonos saját ízlése szerint alakítsa ki ezt a teret. Az ingatlanhoz külön tároló is tartozik, ami praktikus megoldást nyújt a mindennapi használat során.
Kinek ajánljuk?
Ideális választás:
- fiatal pároknak vagy első lakásvásárlóknak,
- egyedülállóknak, akik egy jól alakítható otthont keresnek,
- befektetőknek, akik értéknövelő lehetőséget látnak egy jó elhelyezkedésű ingatlanban.
Ha felkeltette érdeklődését ez az eladó keszthelyi társasházi lakás, vagy bármely más társasházi lakás és bővebb információt szeretne, keressen bizalommal.
Hivatkozási szám: #181352
Az Openhouse Zalaegerszeg Ingatlaniroda tagjaként várom Önt az országos hálózatunk teljes kínálatával.
A társasházi lakás vásárláshoz hitelt igényelne? Ingyenes hitelközvetítéssel segít Önnek bankfüggetlen hitelszakértőnk.
További szolgáltatásainkkal (pl. értékbecslés, energetikai tanúsítvány, jogi háttér) is segítjük Önt a vásárlásban.
Az otthon érték. Az ingatlan üzlet.
Helyiségek
| Helyiség | Alapterület | Padlóburkolat |
|---|---|---|
| Előszoba | 4.29 m2 | Járólap |
| Konyha | 5.41 m2 | Járólap |
| Kamra | 0.98 m2 | Járólap |
| Fürdő | 3.36 m2 | Járólap |
| Szoba | 6.64 m2 | Laminált padló |
| Szoba | 21.32 m2 | Márvány |
| Erkély | 1.00 m2 | Járólap |
Alaprajz




















Magyar 
