Győr, Eladó Társasházi lakás (#181320)
Modern lakóépület Győr Belvárosában - prémium életérzés kiváló lokációban.
Az Openhouse Mosonmagyaróvár Ingatlaniroda kínálatában eladó a #181320 hivatkozási számú győri társasházi lakás.
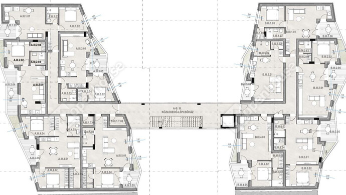
Győr történelmi belvárosában valósul meg ez a modern, magas műszaki tartalommal rendelkező 34 korszerű lakásból és 3 utcafronti üzlethelyiségből álló öt szintes liftes társasház. Az épület felső szintjén két penthouse lakás kerül kialakításra.
A.III.5 lakás a társasház 3. emeletén található 53,51 m2 lakótér + 5.07 m2 terasz.
A lakáshoz teremgarázsban elhelyezkedő gépkocsi beálló vásárlása kötelező.
A garázsszinten saját tároló vásárolható.
Az épület kialakításánál kiemelt szerepet kap a minőségi kivitelezés, az energia hatékony megoldások alkalmazása valamint az esztétikus időtálló építészeti megjelenés.
Ez az ingatlan nem csupán egy lakás, hanem értékálló befektetés és élhető városi otthon Győr egyik legkeresettebb részén.
Az építkezés várható kezdési időpontja: 2026. IV. negyedév
Az átadás várható időpontja: 2028. augusztus 31.
Ha felkeltette érdeklődését ez az eladó győri társasházi lakás, vagy bármely más társasházi lakás és bővebb információt szeretne, keressen bizalommal.
Hivatkozási szám: #181320
Az Openhouse Mosonmagyaróvár Ingatlaniroda tagjaként várom Önt az országos hálózatunk teljes kínálatával.
A társasházi lakás vásárláshoz hitelt igényelne? Ingyenes hitelközvetítéssel segít Önnek bankfüggetlen hitelszakértőnk.
További szolgáltatásainkkal (pl. értékbecslés, energetikai tanúsítvány, jogi háttér) is segítjük Önt a vásárlásban.
Az otthon érték. Az ingatlan üzlet.
Helyiségek
| Helyiség | Alapterület | Padlóburkolat |
|---|---|---|
| Amerikai konyha | 34.88 m2 | Burkolat nélküli |
| Szoba | 10.09 m2 | Burkolat nélküli |
| Fürdő | 4.39 m2 | Burkolat nélküli |
| Tároló | 4.15 m2 | Burkolat nélküli |
| Terasz | 5.07 m2 | Kőburkolat |
Alaprajz









Magyar 
