Debrecen, Eladó Ikerház (#181317)
Debrecen Boldogfalvikertben frekventált helyen új építésű ikerházak eladók.
Az Openhouse Debrecen Hadházi úti Ingatlaniroda kínálatában eladó a #181317 hivatkozási számú debreceni ikerház.
Debrecen Boldogfalvikertben új építésű prémium kategóriás ikerház eladó.
– Debrecen Boldogfalvikert egyik frekventált, aszfaltozott utcájában új építésű, prémium kategóriás ikerházak kerülnek megépítésre.
– Az átgondolt kialakítás miatt az ingatlan gyermekes családok, valamint nagy alapterületet kereső vásárlók számára is ideális választás.
– Az ikerházas kivitel lehetőséget biztosít akár kétgenerációs együttélésre is, a megfelelő szeparáltság megtartása mellett.
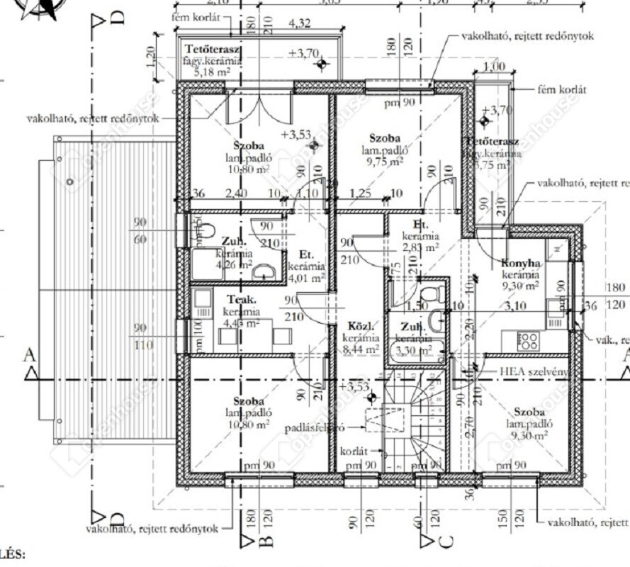
– Az épületek 460 nm-es telken helyezkednek el, nettó 165 nm lakóterülettel, szintes kialakításban.
– Az otthonokban amerikai konyhás nappali, összesen négy szoba, két fürdőszoba, külön WC és garázs kerül kialakításra.
– Minden lakáshoz saját kertkapcsolat tartozik, a gépkocsibeállók térkövezett úton közelíthetők meg.
– A tetőszerkezet hagyományos fa ácsszerkezettel és cserépfedéssel készül.
– A fűtést és a melegvíz-el hőszivattyús rendszer gondoskodik.
– Az épületek osztrák passzívház-minősítésű, Isospan technológiával készülnek, amely kiváló hő- és hangszigetelést, valamint optimális páraáteresztést és hőfelhalmozást biztosít.
– Beépítésre kerülnek hat légkamrás, háromrétegű üvegezéssel ellátott műanyag nyílászárók, redőnyökkel kiegészítve.
– A belső terek prémium minőségű hideg- és melegburkolatokkal kerülnek kialakításra.
– A kulcsrakész ár tartalmazza a 5 kW-os napelemes rendszert, az elektromos autó töltőt, valamint a kamerarendszer és riasztórendszer kiépítését is.
– A kialakítás a kivitelezés során még egyedi igények szerint módosítható, továbbá a burkolatok, szaniterek és beltéri ajtók szabadon választhatók.
– A közvilágítás kiépített, a környék nyugodt és családbarát.
– Az ingatlanok kulcsrakész átadása várhatóan 2026 őszén valósul meg.
Ha felkeltette érdeklődését ez az eladó debreceni ikerház, vagy bármely más ikerház és bővebb információt szeretne, keressen bizalommal.
Hivatkozási szám: #181317
Az Openhouse Debrecen Hadházi úti Ingatlaniroda tagjaként várom Önt az országos hálózatunk teljes kínálatával.
A ikerház vásárláshoz hitelt igényelne? Ingyenes hitelközvetítéssel segít Önnek bankfüggetlen hitelszakértőnk.
További szolgáltatásainkkal (pl. értékbecslés, energetikai tanúsítvány, jogi háttér) is segítjük Önt a vásárlásban.
Az otthon érték. Az ingatlan üzlet.
Helyiségek
| Helyiség | Alapterület | Padlóburkolat |
|---|---|---|
| Szoba | 12.00 m2 | Laminált padló |
| Szoba | 11.00 m2 | Laminált padló |
| Fürdő | 6.00 m2 | Járólap |
| Közlekedő | 8.00 m2 | Járólap |
| Nappali | 21.00 m2 | Járólap |
| Amerikai konyha | 17.00 m2 | Járólap |
| Előtér | 8.00 m2 | Járólap |
| Szoba | 11.00 m2 | Laminált padló |
| Szoba | 11.00 m2 | Laminált padló |
| Zuhanyzó | 5.00 m2 | Járólap |
| Gardrób | 5.00 m2 | Járólap |
| Szoba | 10.00 m2 | Járólap |
| Zuhanyzó | 5.00 m2 | Járólap |
| Közlekedő | 8.00 m2 | Járólap |
| Konyha | 10.00 m2 | Járólap |
| Nappali | 10.00 m2 | Járólap |
| Lépcsőház | 4.00 m2 | Járólap |
| Előtér | 5.00 m2 | Járólap |
| Garázs | 20.00 m2 | Járólap |
| Erkély | 5.00 m2 | Járólap |
| Terasz | 36.36 m2 | Járólap |
Alaprajz












Magyar 
