Székesfehérvár, Eladó Családi ház (#181298)
Eladó luxus családi ház a Harmatos-lakóparkban
Az Openhouse Székesfehérvár Ingatlaniroda kínálatában eladó a #181298 hivatkozási számú székesfehérvári családi ház.
Luxus családi ház eladó Székesfehérváron, a Harmatosvölgy lakóparkban
Székesfehérvári ingatlaniroda eladásra kínál egy modern, minimál stílusban épülő, önálló luxus családi házat Székesfehérváron, a Harmatosvölgy lakóparkban.
Lokáció
Az építkezés Székesfehérvár egyik csendes, új parcellázású részén található. A környéken kizárólag új építésű, esztétikus ingatlanok találhatók; a helyszín megközelítése új aszfaltos úton biztosított. A belváros autóval és tömegközlekedéssel egyaránt könnyedén elérhető.
Az ingatlanról
Az épület minőségi alapanyagok felhasználásával és modern technológia alkalmazásával készül, a lehető legmagasabb színvonalon, minimál stílusban. Az ingatlant tágas terek jellemzik:
-
Hatalmas amerikai konyhás nappali
-
4 hálószoba
-
2 fürdőszoba (WC-vel)
-
Tároló és garázs
-
Nagyméretű fedett terasz és egy tágas tetőterasz
A házhoz saját, 800 m²-es önálló telek tartozik, valamint 2 db térkövezett kocsibeálló és egy térkövezett gyalogos bejáró.
Műszaki paraméterek
-
Falazat: 30-as téglafal (Porotherm X-therm klímatégla), 10-es válaszfalak.
-
Szigetelés: 15 cm-es homlokzati hőszigetelés.
-
Fűtés: 12,5 kW-os Electrolux hőszivattyú + padlófűtés.
-
Melegvíz: 150 literes hőtárolós melegvíztartály.
-
Elektromos hálózat: H-tarifás mérőóra, 3x20 Amper.
-
Nyílászárók: Háromrétegű műanyag nyílászárók (antracit színben).
-
Előkészítés: Rejtett redőnytokok és klíma-védőcsövezés előkészítve.
-
Kültér: Homlokzati díszkőburkolat, kerti csap, oldalhatárokon 3D kerítés.
-
Testreszabhatóság: Választható beltéri ajtók, csaptelepek, szaniterek és burkolatok.
A kivitelező cégről
Az ingatlan építését egy több éve megbízhatóan működő, székesfehérvári bejegyzésű építőipari vállalkozás koordinálja. Számos referenciamunka megtekinthető a városban, így Ön személyesen is meggyőződhet a kivitelezés minőségéről.
Fizetési konstrukció
Rugalmas, a vásárló igényeihez igazított fizetési ütemezés biztosítja a gördülékeny együttműködést.
Ha felkeltette érdeklődését ez az eladó székesfehérvári családi ház, vagy bármely más családi ház és bővebb információt szeretne, keressen bizalommal.
Hivatkozási szám: #181298
Az Openhouse Székesfehérvár Ingatlaniroda tagjaként várom Önt az országos hálózatunk teljes kínálatával.
A családi ház vásárláshoz hitelt igényelne? Ingyenes hitelközvetítéssel segít Önnek bankfüggetlen hitelszakértőnk.
További szolgáltatásainkkal (pl. értékbecslés, energetikai tanúsítvány, jogi háttér) is segítjük Önt a vásárlásban.
Az otthon érték. Az ingatlan üzlet.
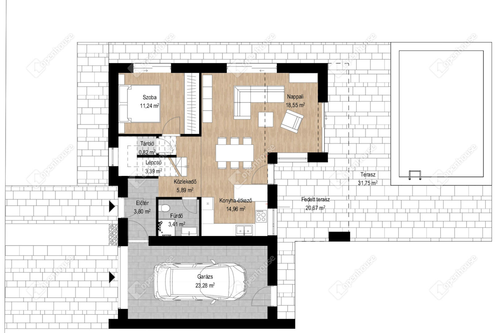
Helyiségek
| Helyiség | Alapterület | Padlóburkolat |
|---|---|---|
| Előtér | 3.80 m2 | Járólap |
| Közlekedő | 5.89 m2 | Laminált padló |
| Lépcsőház | 3.39 m2 | Járólap |
| Tároló | 0.82 m2 | Járólap |
| Amerikai konyha | 14.96 m2 | Laminált padló |
| Nappali | 18.55 m2 | Laminált padló |
| Szoba | 11.24 m2 | Laminált padló |
| Közlekedő | 3.32 m2 | Laminált padló |
| Fürdő | 9.10 m2 | Járólap |
| Szoba | 12.51 m2 | Laminált padló |
| Szoba | 11.51 m2 | Laminált padló |
| Szoba | 11.39 m2 | Laminált padló |
| Garázs | 23.28 m2 | Járólap |
| Tetőterasz | 30.00 m2 | Járólap |
| Terasz | 30.00 m2 | Járólap |









Magyar
Angol 
