Monor, Eladó Társasházi lakás (#181168)
Monoron kínálunk megvételre egy új építésű, ikerházat.
Az Openhouse Monor Ingatlaniroda kínálatában eladó a #181168 hivatkozási számú monori társasházi lakás.
Monoron kínálunk megvételre egy új építésű, ikerház jellegű lakóingatlant, amely 3 külön nyíló szobával és egy nappalival rendelkezik. Az ingatlanhoz egy körülbelül 250 nm-es telek tartozik, valamint a vételár részét képezi egy ajándék konyhabútor is. A hirdetésben szereplő fotók látványtervek, a várható átadás időpontja: 2026 szeptember.
Az ingatlan önálló helyrajzi számmal kerül kialakításra, így nem osztatlan közös tulajdon, társasházi alapítással. Már 10% önerő befizetésével leköthető.
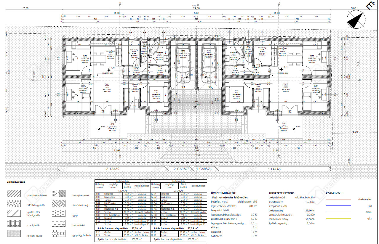
Az elrendezése praktikus és jól átgondolt, helyiségei a következők:
- 3 külön bejáratú szoba (9,75 nm, 9,36 nm, 10 nm)
- Teraszkapcsolatos nappali (18,18 nm)
- Konyha étkezővel (7,91 nm)
- Előszoba (4,95 nm)
- Közlekedő (3,68 nm)
- Fürdőszoba (5,07 nm)
- Külön WC (1,35 nm)
- Háztartási helyiség (5,04 nm)
- Kamra (2,05 nm)
- Garázs (13,49 nm)
- Nyitott terasz (15,20 nm)
Műszaki tartalom:
Az otthon fűtéséről egy Immergas Victrix 28-as kombi gázcirkó gondoskodik, padlófűtéssel minden helyiségben. Melegvíz-ellátást Ariston hőszivattyús bojler biztosít. A nappaliban Midea vagy Gree klímaberendezés kerül telepítésre. A szobák és a nappali elektromos alumínium redőnyöket kapnak. A konyhabútor egyedi igények szerint készül, háztartási gépek nélkül. A burkolatok 8.000 Ft/nm² értékig, a beltéri ajtók 80.000 Ft/db árig választhatók. A garázs szekcionált kapuval és elektromos vezérléssel készül.
Az épület Ytong téglából épül, 10 cm vastag grafitos hőszigeteléssel. A tető 30 cm üveggyapot szigetelést kap, a padló pedig 10 cm lépésálló szigeteléssel készül. A telek körül 3D kerítés kerül kialakításra. Az ár kulcsrakész állapotra vonatkozik.
A környék jól ellátott: 1 km-en belül elérhető pékség, cukrászda, gyógyszertár, posta, étterem, könyvtár, zöldséges, drogériák, élelmiszerboltok, hivatalok, bankok, piac, valamint bölcsőde, óvoda, iskola, gimnázium, uszoda és elektromos autótöltő is.
Monor a délkelet-pesti agglomeráció része, folyamatosan fejlődő település, amely kellemes lakókörnyezetet és egyre bővülő szolgáltatásokat kínál. Kiváló közlekedési adottságainak köszönhetően az ország számos pontja könnyen megközelíthető.
Ha felkeltette érdeklődésed, keress bizalommal, és tekintsük meg együtt ezt a remek lehetőséget!
Ha felkeltette érdeklődését ez az eladó monori társasházi lakás, vagy bármely más társasházi lakás és bővebb információt szeretne, keressen bizalommal.
Hivatkozási szám: #181168
Az Openhouse Monor Ingatlaniroda tagjaként várom Önt az országos hálózatunk teljes kínálatával.
A társasházi lakás vásárláshoz hitelt igényelne? Ingyenes hitelközvetítéssel segít Önnek bankfüggetlen hitelszakértőnk.
További szolgáltatásainkkal (pl. értékbecslés, energetikai tanúsítvány, jogi háttér) is segítjük Önt a vásárlásban.
Az otthon érték. Az ingatlan üzlet.
Helyiségek
| Helyiség | Alapterület | Padlóburkolat |
|---|---|---|
| Előszoba | 5.00 m2 | |
| Közlekedő | 4.00 m2 | |
| Tároló | 2.00 m2 | |
| Fürdő | 5.00 m2 | |
| WC | 1.00 m2 | |
| Háztartási helyiség | 5.00 m2 | |
| Szoba | 10.00 m2 | |
| Konyha | 8.00 m2 | |
| Nappali | 18.00 m2 | |
| Szoba | 10.00 m2 | |
| Szoba | 9.00 m2 |
Alaprajz


















Magyar
Angol 
