Iszkaszentgyörgy, Eladó Családi ház (#181146)
Eladó családi ház a Viola Lakóparkban
Az Openhouse Székesfehérvár Ingatlaniroda kínálatában eladó a #181146 hivatkozási számú iszkaszentgyörgyi családi ház.
Székesfehérvári ingatlan iroda eladásra kínál modern stílusban épülő önálló családi házat Iszkaszentgyörgyön.
Lokáció: Iszkaszentgyörgy egy csendes és új parcellázású részén található az építkezés. A környéken csak új és szép megjelenésű ingatlanok találhatóak, az építkezés megközelítése új aszfaltos úton biztosított. Székesfehérvár autóval és tömegközlekedéssel is egyaránt könnyedén megközelíthető.
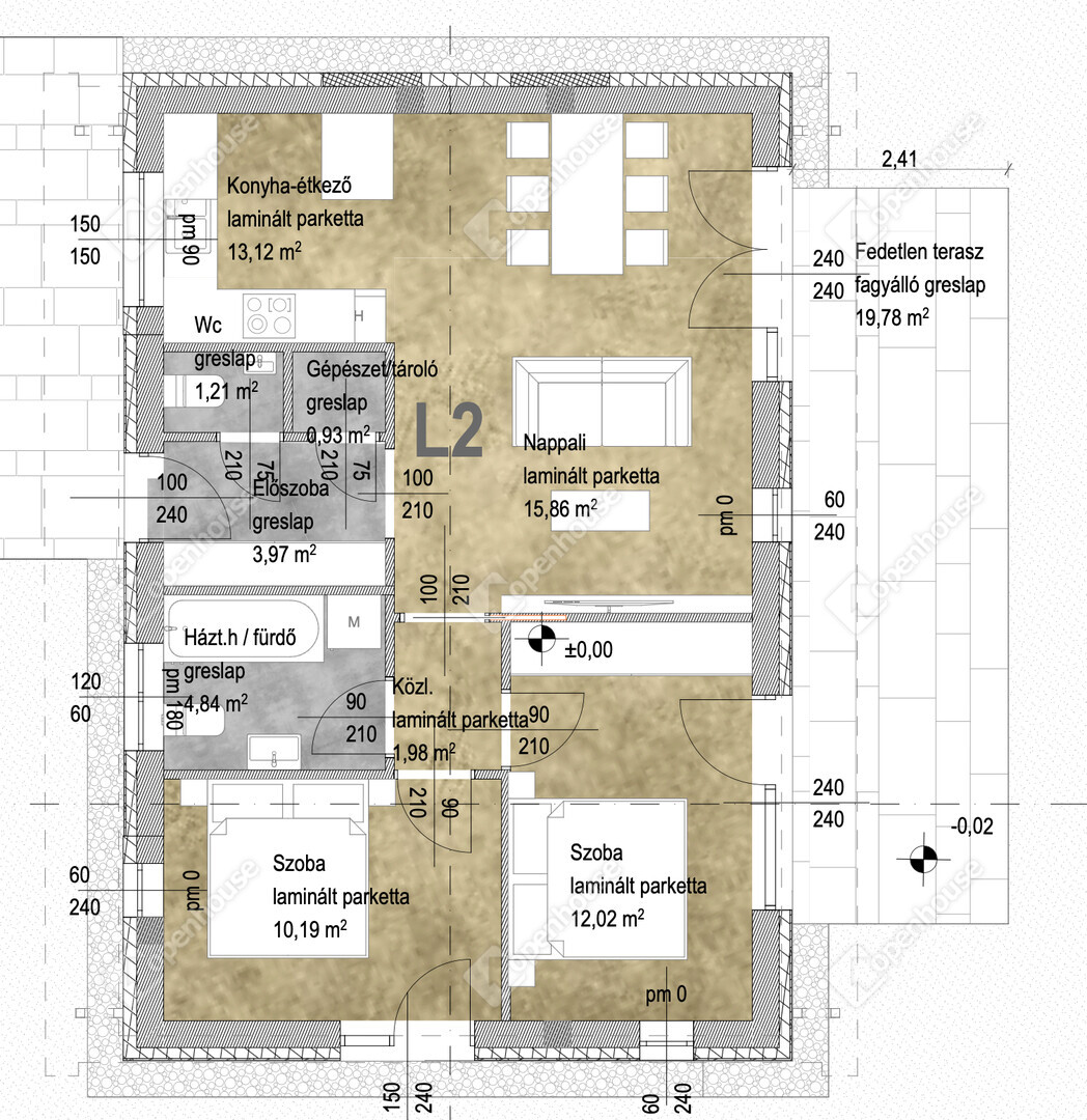
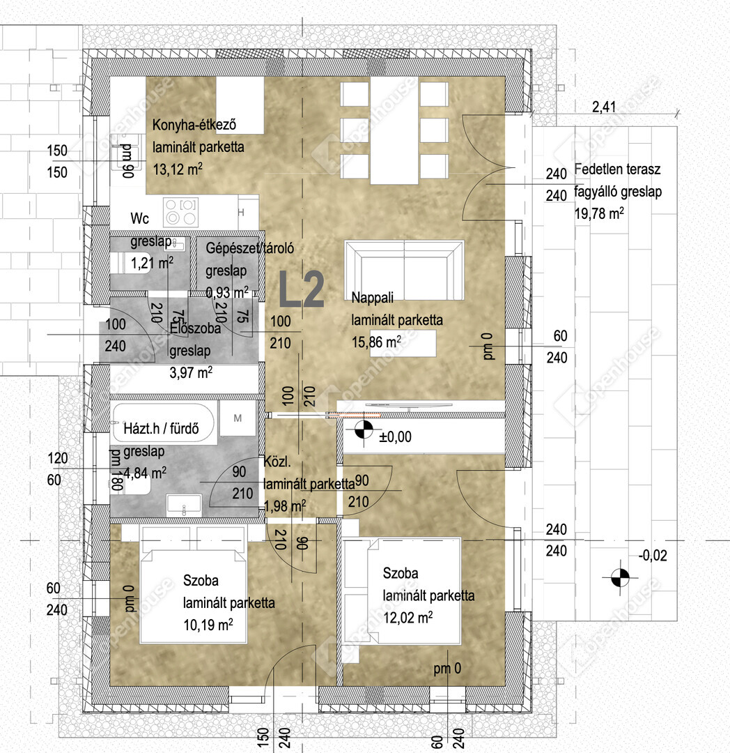
Az ingatlanról: Az ingatlan minőségi alapanyagok felhasználásával és a modern technológia alkalmazásával készül, a lehető legmagasabb színvonalon, minimás stílusban. A nettó alapterület 74m2, ami magába foglal egy nagy amerikai konyhás nappalit, 2 hálószobát, 1 fürdőszobát WC-vel, egy vendég WC-t és egy háztartási helyiséget. Továbbá az ingatlanhoz tartozik 1 db térkövezett kocsibeálló, egy nagy méretű 20m2-es épített terasz, továbbá az ingatlanhoz tartozik egy saját használatú 450m2-es kertrész is.
Műszaki paraméterek:
- 74m2-es családi ház
- 20m2 épített terasz (hidegburkolattal)
- 30-as téglafal (porotherm X-therm klíma tégla)
- 10-es válaszfalak + 15cm homlokzati hőszigetelés
- 450m2-es saját telek
- 8 kW-os ELECTROLUX hőszivattyú + padlófűtés
- 150-literes hőtárolós melegvíztartály
- H-tarifás mérőóra
- 3x16 Amper
- három rétegű műanyag nyílászárók
- rejtett redőny tok előkészítés
- 1db kerti csap
- homlokzati díszkőburkolat
- 1db térkövezett kocsibeálló
- oldalhatárokon 3D kerítés
- antracit beton tetőcserép
- választható beltéri ajtók
- választható csaptelepek és szaniterek
- választható burkolatok
A kivitelező cégről: Az ingatlan építését egy több éve megbízhatóan működő Székesfehérvári bejelentésű építőipari vállalkozás kordinálja. Több, már elkészült székesfehérváron is megtekinthető referencia ingatlant áll rendelkezésre, hogy Ön is meggyőződjön a megfelelő minőségű kivitelezésről.
FIzetési konstrukció: Rugalmas fizetési ütem biztosítja a gördülékeny együttműködést, ami minding a vásárló igényeihez megfelelően van igazítva.
Ha felkeltette érdeklődését ez az eladó iszkaszentgyörgyi családi ház, vagy bármely más családi ház és bővebb információt szeretne, keressen bizalommal.
Hivatkozási szám: #181146
Az Openhouse Székesfehérvár Ingatlaniroda tagjaként várom Önt az országos hálózatunk teljes kínálatával.
A családi ház vásárláshoz hitelt igényelne? Ingyenes hitelközvetítéssel segít Önnek bankfüggetlen hitelszakértőnk.
További szolgáltatásainkkal (pl. értékbecslés, energetikai tanúsítvány, jogi háttér) is segítjük Önt a vásárlásban.
Az otthon érték. Az ingatlan üzlet.
Helyiségek
| Helyiség | Alapterület | Padlóburkolat |
|---|---|---|
| Előszoba | 3.97 m2 | Járólap |
| Háztartási helyiség | 0.93 m2 | Járólap |
| WC | 1.21 m2 | Járólap |
| Amerikai konyha | 13.12 m2 | Laminált padló |
| Nappali | 15.86 m2 | Laminált padló |
| Fürdő | 4.84 m2 | Járólap |
| Közlekedő | 1.98 m2 | Laminált padló |
| Szoba | 12.02 m2 | Laminált padló |
| Szoba | 10.19 m2 | Laminált padló |
Alaprajz







Magyar
Angol 
