Komárom, Eladó Üzleti ingatlan (#180876)
Komárom belvárosában népszerű, állandó vevőkörrel rendelkező, kiváló helyen elhelyezkedő üzletház eladó!
Az Openhouse Mosonmagyaróvár Ingatlaniroda kínálatában eladó a #180876 hivatkozási számú komáromi üzleti ingatlan.
Páratlan befektetési lehetőség Komárom belvárosában – egy hely, ami üzlet, iroda, lakás és vendéglátó hely egyben!
A Nyugat-Dunántúl egyik leglátogatottabb városában, Komáromban, közvetlenül a Szlovákiába az Erzsébet hídon át vezető út mellett kínálunk megvételre egy 524 m²-es üzletházat, amelyben nagyon népszerű, látogatott üzletek mellett irodák találhatók, az udvarában pedig vendéglátóhely üzemeltetésére is van lehetőség! Az egyik emeleti iroda mérete lehetővé teszi, hogy egy stúdió-lakást alakítsanak ki benne!
A földszinti részen - melynek mérete 256 m² - többek között a kiváló lokációjának köszönhetően jelenleg is nagyon eredményesen működő üzletek találhatók, különböző alapterületekkel!
Az emeleten -melynek mérete 177 m² különböző méretű irodák mellett szolgáltató helység, mosdók, WC-k helyezkednek el, van amelyik bérlővel együtt, van amelyik bérlőre várva eladó!
Az alagsorban egy vendéglátásra alkalmas 91 m²-es üzlethelyiség található!
Az épületben minden rendelkezésre áll, ami egy üzletház működtetéséhez szükséges.
A fűtést gázkazán biztosítja, amely a meleg víz ellátásról is gondoskodik.
Az ingatlan adottságai és elhelyezkedése miatt számos lehetőséget rejt magában:
-
a jelenlegi üzletek továbbra is működhetnek
-
étterem, vendéglő kialakítható
-
söröző, bár kialakítására is alkalmas
-
street food üzemeltethető
-
apartmanház vagy panzió létesíthető benne
-
rendezvényhelyszínnek is kiváló lehet
-
turisztikai szolgáltató központként is működhet
Komárom elhelyezkedése különösen kedvező:
a város a Duna folyó mentén fekszik, a szlovákiai Komarno városával szinte egybe forrva, csupán a Duna választja el egymástól a két várost, egyben pedig az Erzsébet híd össze is köti őket! A szomszédos város közelsége, és kiváló közúti kapcsolata miatt páratlan lehetőségekkel rendelkezik. A település vasúton is elérhető a Budapest–Győr vonalon.
A két ország és a két város közelsége miatt az ingatlan folyamatos turisztikai forgalom mellett hasznosítható, így ideális választás lehet mindazok számára, akik üzlet üzemeltetésében, vendéglátásban vagy turizmusban gondolkodnak.
Ha egy jó helyen lévő, sokoldalúan hasznosítható ingatlant keres befektetéshez vagy vállalkozáshoz, annak érdemes ezt megnézni!
Ha felkeltette érdeklődését ez az eladó komáromi üzleti ingatlan, vagy bármely más üzleti ingatlan és bővebb információt szeretne, keressen bizalommal.
Hivatkozási szám: #180876
Az Openhouse Mosonmagyaróvár Ingatlaniroda tagjaként várom Önt az országos hálózatunk teljes kínálatával.
A üzleti ingatlan vásárláshoz hitelt igényelne? Ingyenes hitelközvetítéssel segít Önnek bankfüggetlen hitelszakértőnk.
További szolgáltatásainkkal (pl. értékbecslés, energetikai tanúsítvány, jogi háttér) is segítjük Önt a vásárlásban.
Az otthon érték. Az ingatlan üzlet.
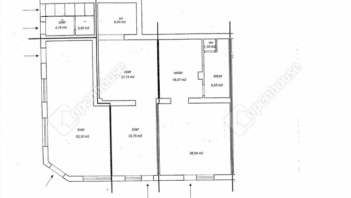
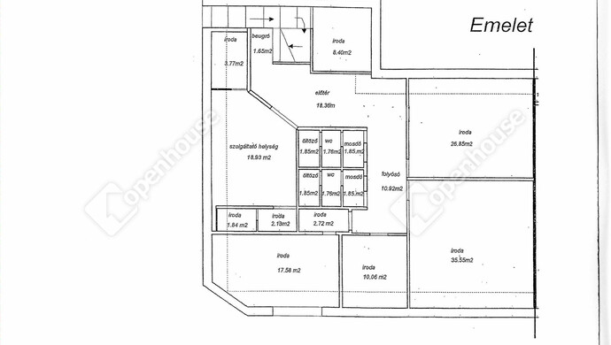
Helyiségek
| Helyiség | Alapterület | Padlóburkolat |
|---|---|---|
| Eladótér | 52.26 m2 | Járólap |
| Eladótér | 27.15 m2 | Járólap |
| Eladótér | 22.75 m2 | Járólap |
| Eladótér | 36.54 m2 | Járólap |
| Eladótér | 4.16 m2 | Járólap |
| Raktár | 18.57 m2 | Járólap |
| öltöző | 9.65 m2 | Járólap |
| WC | 9.04 m2 | Járólap |
| WC | 2.69 m2 | Járólap |
| WC | 1.10 m2 | Járólap |
| Iroda | 35.55 m2 | Laminált padló |
| Iroda | 26.85 m2 | Laminált padló |
| Iroda | 17.58 m2 | Laminált padló |
| Iroda | 10.06 m2 | Laminált padló |
| Iroda | 3.77 m2 | Laminált padló |
| Iroda | 2.72 m2 | Laminált padló |
| Iroda | 2.13 m2 | Laminált padló |
| Iroda | 1.84 m2 | Laminált padló |
| Iroda | 8.40 m2 | Laminált padló |
| Iroda | 18.93 m2 | Laminált padló |
| Előtér | 18.36 m2 | Járólap |
| Előszoba | 10.92 m2 | Járólap |
| Előtér | 1.65 m2 | Járólap |
| öltöző | 1.85 m2 | Járólap |
| öltöző | 1.85 m2 | Járólap |
| mosdó | 1.85 m2 | Járólap |
| mosdó | 1.85 m2 | Járólap |
| WC | 1.76 m2 | Járólap |
| WC | 1.76 m2 | Járólap |
| Eladótér | 38.99 m2 | Járólap |
| Eladótér | 14.17 m2 | Járólap |
| Konyha | 12.12 m2 | Járólap |
| Mosókonyha | 5.98 m2 | Járólap |
| Raktár | 2.57 m2 | Járólap |
| Raktár | 1.22 m2 | Járólap |
| Raktár | 3.64 m2 | Járólap |
| Raktár | 1.64 m2 | Járólap |
| öltöző | 2.75 m2 | Járólap |
| Előtér | 1.62 m2 | Járólap |
| WC | 1.20 m2 | Járólap |
| WC | 0.85 m2 | Járólap |
| WC | 1.35 m2 | Járólap |
Alaprajz


























Magyar 
