Máriakálnok, Eladó Családi ház (#180839)
Aranyosszigeti villaparkban kínálunk eladásra egy új építésű családi házat
Az Openhouse Mosonmagyaróvár Ingatlaniroda kínálatában eladó a #180839 hivatkozási számú máriakálnoki családi ház.
Mosonmagyaróvár határában - közigazgatásilag Máriakálnokhoz tartozik - természetközelben fekvő, jó ellátottságú, újonnan épülő lakóparkban, csendes, nyugodt utcában épülő, 4 szobás, kertkapcsolatos, 104 m²-es családi ház eladó.
A ház téglából épül, külső szigeteléssel, 3 rétegű üvegezésű, műanyag nyílászárókkal, cserép fedéssel.
Emelt szintű fűtéskész állapotban kínáljuk eladásra a 104 m²-es családi ház.
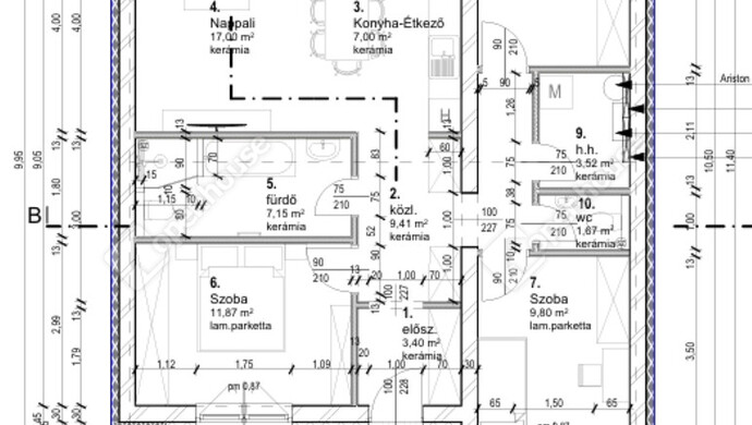
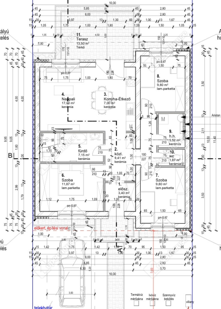
A ház egyszintes, előszoba, amerikai konyhás nappali, 3 hálószoba, fürdőszoba, WC, háztartási helyiség kialakítással, 13,5 m² terasszal.
A fűtést a legmodernebb, legzöldebb termálvizes távfűtés biztosítja, egyedi mérőkkel!
Ajánljuk családoknak ha egy jól élhető természetközeli környezetre vágynak.
CSOK Plusz igénybe vehető!
Ha felkeltette érdeklődését ez az eladó máriakálnoki családi ház, vagy bármely más családi ház és bővebb információt szeretne, keressen bizalommal.
Hivatkozási szám: #180839
Az Openhouse Mosonmagyaróvár Ingatlaniroda tagjaként várom Önt az országos hálózatunk teljes kínálatával.
A családi ház vásárláshoz hitelt igényelne? Ingyenes hitelközvetítéssel segít Önnek bankfüggetlen hitelszakértőnk.
További szolgáltatásainkkal (pl. értékbecslés, energetikai tanúsítvány, jogi háttér) is segítjük Önt a vásárlásban.
Az otthon érték. Az ingatlan üzlet.
Helyiségek
| Helyiség | Alapterület | Padlóburkolat |
|---|---|---|
| Előszoba | 4.00 m2 | Járólap |
| Amerikai konyha | 24.00 m2 | Járólap |
| Szoba | 12.00 m2 | Laminált padló |
| Szoba | 10.00 m2 | Laminált padló |
| Szoba | 10.00 m2 | Laminált padló |
| Közlekedő | 10.00 m2 | Járólap |
| Fürdő | 7.00 m2 | Járólap |
| WC | 2.00 m2 | Járólap |
| Háztartási helyiség | 4.00 m2 | Járólap |
| Terasz | 14.00 m2 | Kőburkolat |
Alaprajz













Magyar
Angol
Német 
