Zalaegerszeg, Eladó Családi ház (#180773)
Otthon, ahol a nyugalom és a minőség találkozik.
Az Openhouse Zalaegerszeg Ingatlaniroda kínálatában eladó a #180773 hivatkozási számú zalaegerszegi családi ház.
!!!FIGYELEM!!!
SZERETNE A ZALAGYÖNGYE LAKÓPARKBAN LAKNI? DE EL KELL ADNI HASZNÁLT INGATLANJÁT, HOGY KIFIZETHESSE?
!!!VAN MEGOLDÁS!!!
INGATLAN BESZÁMÍTÁS LEHETSÉGES!
RÉSZLETEKÉRT KERESSEN ELÉRHETŐSÉGEIMEN!
Zalaegerszeg egyik legnyugodtabb, mégis kiválóan megközelíthető részén egy olyan új otthon születik, ahol végre nem kell választanod a természet és a kényelem között.
Ez a lakópark nem a zsúfoltságról szól. Itt minden ház mögött valódi tér van – kert, csend, levegő. Reggel madárcsicsergés, este nyugalom, közben pedig pár perc alatt bent vagy a városban.
Az otthonok tervezése nem látványra, hanem élhetőségre épült. Tágas terek, jól használható elrendezések, és olyan műszaki megoldások, amelyek nemcsak ma, hanem hosszú távon is gazdaságosan működnek.
Nem egy „projektlakás”, hanem egy olyan ház, ahol tényleg el tudod képzelni az életed.
A kivitelezés célja egyszerű volt: olyan otthonokat létrehozni, ahol nem kell kompromisszumot kötni sem a minőségben, sem a fenntartási költségekben.
Ha fontos számodra a nyugalom, a kiszámíthatóság és az, hogy egy valóban élhető környezetbe költözz – akkor ezt érdemes megnézni.
Zalaegerszeg – Nekeresd városrészében, nyugodt zöld környezetben, új építésű, energiahatékony családi házak elérhetők kulcsrakész kivitelben.
Modern műszaki tartalom, tágas kertkapcsolat, jól átgondolt alaprajzok – mindez pár percre a belvárostól.
Ide nem csak hazajössz – itt tényleg lelassul az élet.
MŰSZAKI LEÍRÁS
Szerkezet és falazat:
- Teherhordó falazat: korszerű, nagy szilárdságú kerámia falazóelem (pl. Porotherm rendszer)
- Homlokzati hőszigetelés a korszerű energetikai előírásoknak megfelelően
- Monolit vasbeton födémszerkezet
Tetőszerkezet:
- Hagyományos ácsszerkezet
- Cserépfedés
- Teljes hőszigetelés és fóliázás
Nyílászárók:
- Többrétegű hőszigetelt műanyag nyílászárók
- Korszerű hőátbocsátási értékek
- Redőny előkészítés / opcionálisan beépítve
Gépészet:
- Hőszivattyús fűtési rendszer
- Alacsony fenntartási költségű, energiatakarékos működés
- Padlófűtés (jellemzően)
- Melegvíz ellátás hőszivattyúról
Energetika:
- Korszerű hőszigetelési rendszer
- Energiahatékony üzemeltetés
- Alacsony rezsiköltség
Belső kialakítás:
- Kulcsrakész átadás
- Burkolatok, szaniterek, beltéri ajtók
- Festett falak, kész állapot
Telek és környezet:
- Önálló telkek, kb. 600 m² körüli méret
- Kertkapcsolatos kialakítás
- Csendes, családi házas övezet
Egyéb:
- Kis léptékű lakópark (nem zsúfolt beépítés)
- Modern, élhető alaprajzok
- Hosszú távra tervezett kivitelezés
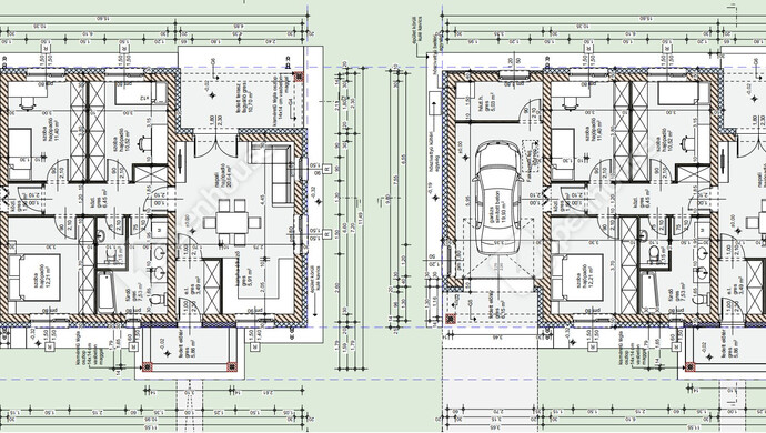
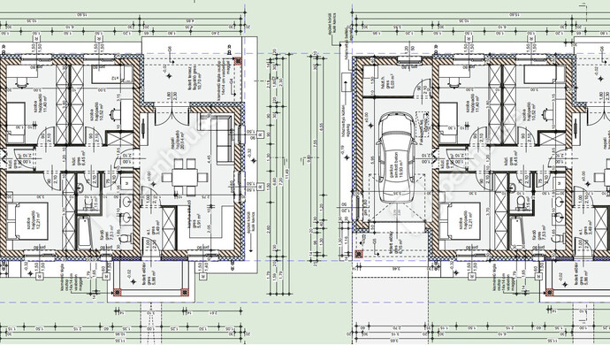
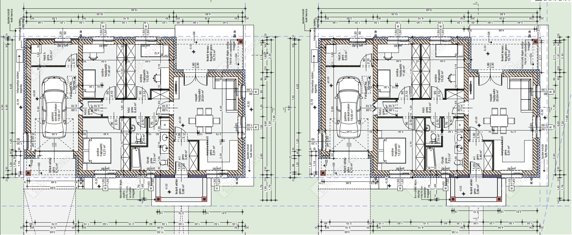
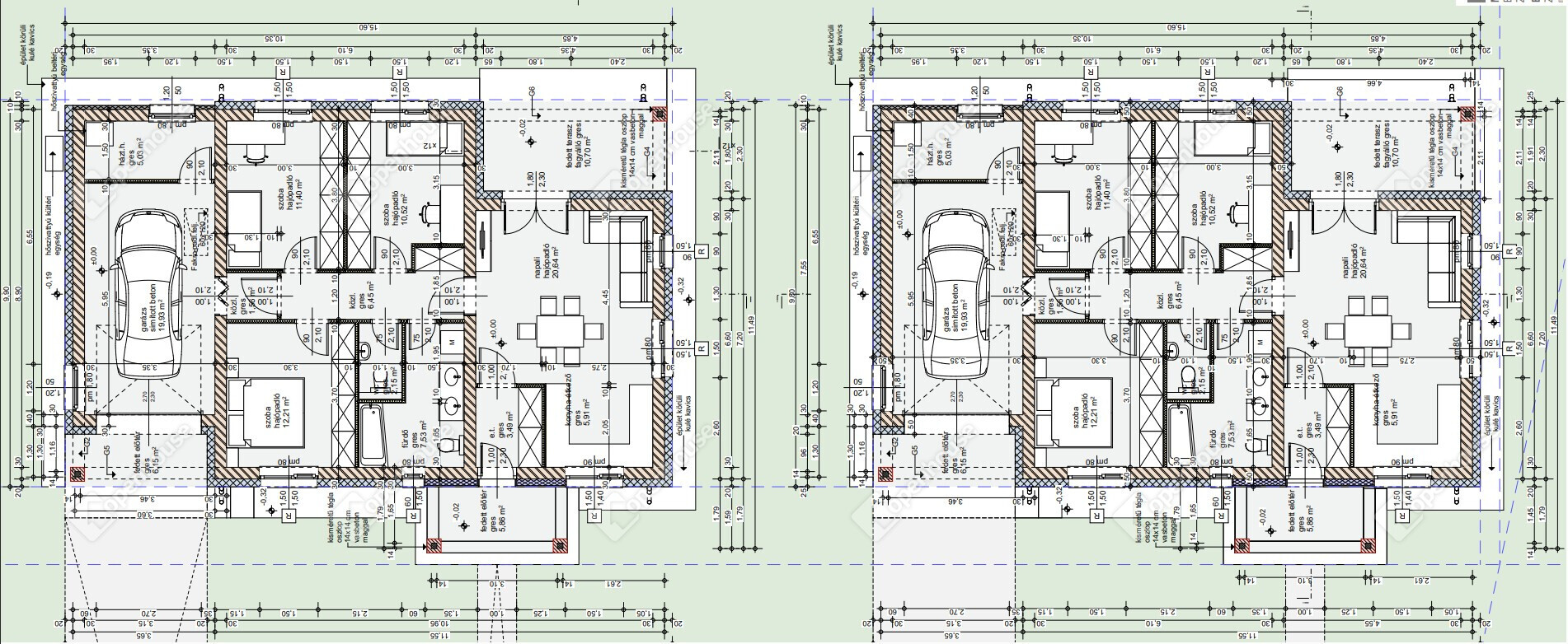
KŐRIS HÁZ – LEÍRÁS
A Kőris ház egy tágasabb, jól tagolt családi otthon, amelynél az egyik legnagyobb erősség a funkcionális elrendezés és a különálló életterek tudatos kialakítása.
A ház központi tere a közel 30 m²-es nappali–étkező–konyha egység, amely egyértelműen a mindennapi élet központja. A tér nagy üvegfelületekkel kapcsolódik a fedett teraszhoz, így a nappali vizuálisan és használatban is kibővül – ez különösen értékes tavasztól őszig.
A hálószobák elkülönített blokkban helyezkednek el, ami kifejezetten jól működik a gyakorlatban:
- 3 külön szoba (gyerekszoba / dolgozószoba / vendégszoba funkcióval is)
- jól szeparált privát zóna
- csendes, nyugodt elhelyezés
A fürdőszoba mérete és kialakítása (kád + dupla mosdó) egyértelműen családi használatra lett tervezve, ráadásul külön WC is rendelkezésre áll, ami jelentősen növeli a komfortot.
Ami igazán kiemeli ezt az alaprajzot:
- külön háztartási/gépészeti helyiség
- praktikus közlekedő, minimális „elveszett térrel”
- jól bútorozható, szabályos szobák
A garázs közvetlen kapcsolatban áll a házzal, így a mindennapi használat kényelmes és időjárástól független.
Összességében ez az alaprajz:
- családokra optimalizált
- hosszú távon is jól használható
- átgondolt, nem túlzsúfolt
- és könnyen értékesíthető
Ez nem csak egy új építésű ház – ez egy jól működő otthon.
MŰSZAKI LEÍRÁS – HIRDETÉSBE ILLESZTVE
A Kőris ház korszerű építési technológiával és magas műszaki tartalommal készül, amely biztosítja az energiahatékony és gazdaságos üzemeltetést.
A teherhordó homlokzati falak Porotherm 30 N+F neo Rapid Dryfix téglából épülnek, melyekre 20 cm vastagságú XPS hőszigetelés kerül. Ez a szerkezet kiemelkedő hőszigetelési értékeket biztosít, hozzájárulva az alacsony fenntartási költségekhez.
A nyílászárók háromrétegű hőszigetelő üvegezéssel ellátott műanyag szerkezetek, külső oldalon esztétikus barna fóliázással. A redőnyök a homlokzatba süllyesztve kerülnek kialakításra, beépített szúnyoghálóval.
A tetőfedés Bramac Tectura Novo antracit cseréppel készül, amely modern megjelenést és hosszú élettartamot biztosít.
A fűtést és a használati melegvíz-ellátást Bosch hőszivattyús rendszer biztosítja, padlófűtéssel kombinálva. Ez a megoldás nemcsak komfortos, hanem kifejezetten gazdaságos üzemeltetést tesz lehetővé.
A fürdőszobai szaniterek Ravak és Grohe termékcsaládból választhatók, így a belső tér részben személyre szabható. A burkolatok szintén választhatók, 5.000–10.000 Ft/m² értékhatárig.
Az ingatlan kulcsrakész állapotban kerül átadásra, amely tartalmazza:
- belső burkolatokat és szerelvényeket
- teljes festést
- járdák és kocsibejáró térkövezését
Várható átadás: 2026. november 30.
Ha felkeltette érdeklődését ez az eladó zalaegerszegi családi ház, vagy bármely más családi ház és bővebb információt szeretne, keressen bizalommal.
Hivatkozási szám: #180773
Az Openhouse Zalaegerszeg Ingatlaniroda tagjaként várom Önt az országos hálózatunk teljes kínálatával.
A családi ház vásárláshoz hitelt igényelne? Ingyenes hitelközvetítéssel segít Önnek bankfüggetlen hitelszakértőnk.
További szolgáltatásainkkal (pl. értékbecslés, energetikai tanúsítvány, jogi háttér) is segítjük Önt a vásárlásban.
Az otthon érték. Az ingatlan üzlet.
Helyiségek
| Helyiség | Alapterület | Padlóburkolat |
|---|---|---|
| Nappali | 20.64 m2 | |
| Amerikai konyha | 5.91 m2 | |
| Szoba | 10.52 m2 | |
| Fürdő | 7.53 m2 | |
| WC | 2.15 m2 | |
| Szoba | 12.21 m2 | |
| Szoba | 11.40 m2 | |
| Közlekedő | 6.45 m2 | |
| Közlekedő | 1.56 m2 | |
| Garázs | 19.93 m2 | |
| Háztartási helyiség | 5.03 m2 | |
| Terasz | 10.07 m2 | |
| Terasz | 5.86 m2 | |
| Terasz | 6.15 m2 |
Alaprajz






























Magyar 
