Zalaegerszeg, Eladó Családi ház (#180772)
Otthon, ahol a nyugalom és a minőség találkozik.
Az Openhouse Zalaegerszeg Ingatlaniroda kínálatában eladó a #180772 hivatkozási számú zalaegerszegi családi ház.
!!!FIGYELEM!!!
SZERETNE A ZALAGYÖNGYE LAKÓPARKBAN LAKNI? DE EL KELL ADNI HASZNÁLT INGATLANJÁT, HOGY KIFIZETHESSE?
!!!VAN MEGOLDÁS!!!
INGATLAN BESZÁMÍTÁS LEHETSÉGES!
RÉSZLETEKÉRT KERESSEN ELÉRHETŐSÉGEIMEN!
Zalaegerszeg egyik legnyugodtabb, mégis kiválóan megközelíthető részén egy olyan új otthon születik, ahol végre nem kell választanod a természet és a kényelem között.
Ez a lakópark nem a zsúfoltságról szól. Itt minden ház mögött valódi tér van – kert, csend, levegő. Reggel madárcsicsergés, este nyugalom, közben pedig pár perc alatt bent vagy a városban.
Az otthonok tervezése nem látványra, hanem élhetőségre épült. Tágas terek, jól használható elrendezések, és olyan műszaki megoldások, amelyek nemcsak ma, hanem hosszú távon is gazdaságosan működnek.
Nem egy „projektlakás”, hanem egy olyan ház, ahol tényleg el tudod képzelni az életed.
A kivitelezés célja egyszerű volt: olyan otthonokat létrehozni, ahol nem kell kompromisszumot kötni sem a minőségben, sem a fenntartási költségekben.
Ha fontos számodra a nyugalom, a kiszámíthatóság és az, hogy egy valóban élhető környezetbe költözz – akkor ezt érdemes megnézni.
Zalaegerszeg – Nekeresd városrészében, nyugodt zöld környezetben, új építésű, energiahatékony családi házak elérhetők kulcsrakész kivitelben.
Modern műszaki tartalom, tágas kertkapcsolat, jól átgondolt alaprajzok – mindez pár percre a belvárostól.
Ide nem csak hazajössz – itt tényleg lelassul az élet.
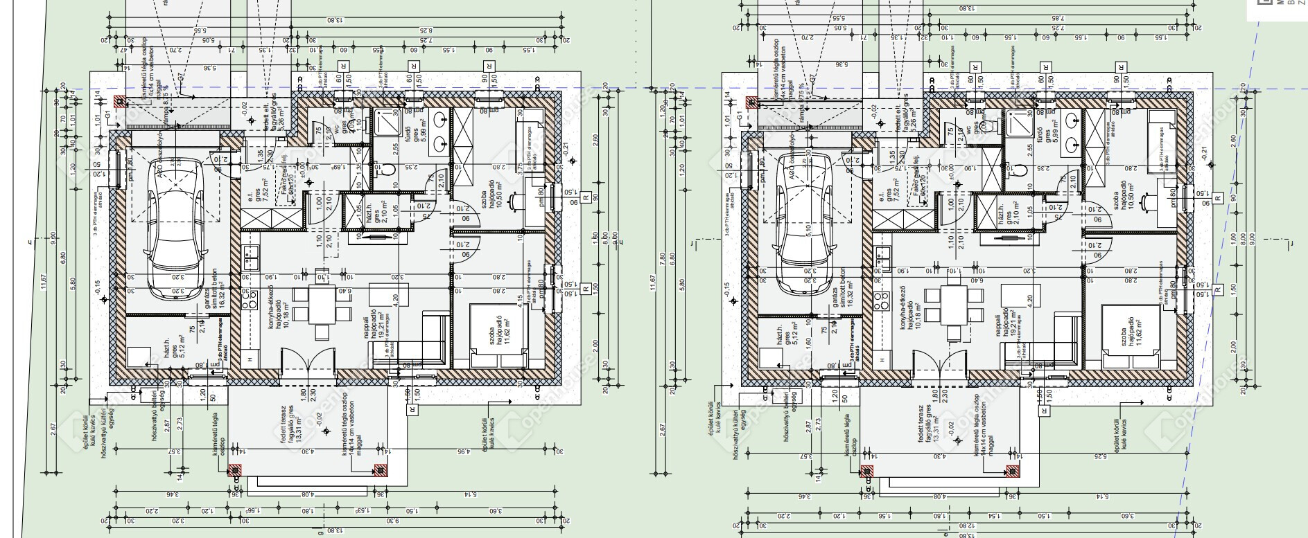
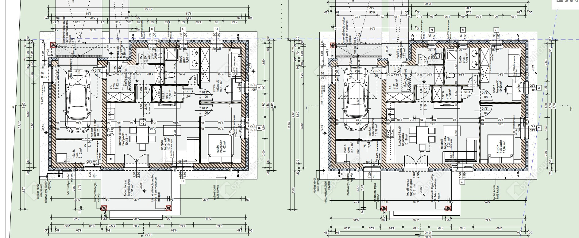
MŰSZAKI LEÍRÁS
Szerkezet és falazat:
- Teherhordó falazat: korszerű, nagy szilárdságú kerámia falazóelem (pl. Porotherm rendszer)
- Homlokzati hőszigetelés a korszerű energetikai előírásoknak megfelelően
- Monolit vasbeton födémszerkezet
Tetőszerkezet:
- Hagyományos ácsszerkezet
- Cserépfedés
- Teljes hőszigetelés és fóliázás
Nyílászárók:
- Többrétegű hőszigetelt műanyag nyílászárók
- Korszerű hőátbocsátási értékek
- Redőny előkészítés / opcionálisan beépítve
Gépészet:
- Hőszivattyús fűtési rendszer
- Alacsony fenntartási költségű, energiatakarékos működés
- Padlófűtés (jellemzően)
- Melegvíz ellátás hőszivattyúról
Energetika:
- Korszerű hőszigetelési rendszer
- Energiahatékony üzemeltetés
- Alacsony rezsiköltség
Belső kialakítás:
- Kulcsrakész átadás
- Burkolatok, szaniterek, beltéri ajtók
- Festett falak, kész állapot
Telek és környezet:
- Önálló telkek, kb. 600 m² körüli méret
- Kertkapcsolatos kialakítás
- Csendes, családi házas övezet
Egyéb:
- Kis léptékű lakópark (nem zsúfolt beépítés)
- Modern, élhető alaprajzok
- Hosszú távra tervezett kivitelezés
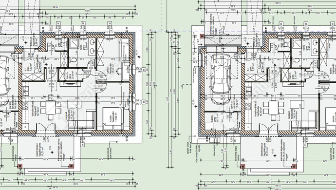
JUHAR HÁZ – LEÍRÁS
A Juhar ház egy átgondolt, praktikus elrendezésű, modern családi otthon, ahol minden négyzetméternek funkciója van. Az alaprajz egyik legnagyobb előnye, hogy a nappali élettér és a privát zóna jól elkülönül, így egyszerre biztosít közösségi teret és nyugodt visszavonulási lehetőséget.
A lakótér központja a tágas, amerikai konyhás nappali–étkező, amely közvetlen kapcsolatban áll a terasszal. Ez a tér ideális családi élethez, vendégfogadáshoz, és a mindennapi együttléthez. A nagy üvegfelületeknek köszönhetően világos, élhető, „kifelé nyitott” tér jön létre.
A hálószobák a ház külön részében kaptak helyet, ami kifejezetten előnyös:
- a szülői háló és a gyerekszobák nem zavarják a nappali életet
- jól szeparált, csendes zóna alakul ki
- ideális családosoknak vagy akár home office használatra is
A fürdőszoba dupla mosdós kialakítása ritka ebben a kategóriában, és kifejezetten praktikus a mindennapokban. Emellett külön WC is kialakításra került, ami szintén növeli a komfortot.
A házhoz kapcsolódó garázs közvetlen bejárattal rendelkezik, így esőben, télen is kényelmesen használható. A háztartási helyiség külön helyet kapott, ami segít a gépészet és tárolás rendezett elhelyezésében.
Összességében ez az alaprajz:
- jól élhető
- logikus
- családbarát
- és hosszú távon is praktikus
Nem látványra készült, hanem használatra.
MŰSZAKI LEÍRÁS – HIRDETÉSBE SZERKESZTVE
A Juhar ház korszerű, energiahatékony műszaki tartalommal készül, amely hosszú távon alacsony fenntartási költséget és magas komfortot biztosít.
A teherhordó homlokzati falak Porotherm 30 N+F neo Rapid Dryfix téglából épülnek, melyekre 20 cm vastagságú XPS hőszigetelés kerül. Ez a szerkezet kiemelkedő hőtechnikai tulajdonságokat biztosít, hozzájárulva az energiahatékony működéshez.
A nyílászárók korszerű, háromrétegű hőszigetelő üvegezéssel ellátott műanyag szerkezetek, külső oldalon esztétikus barna fóliázással. A redőnyök a homlokzatba süllyesztve kerülnek kialakításra, beépített szúnyoghálóval, ami egyszerre biztosít árnyékolást és rovarvédelmet.
A tetőfedés Bramac Tectura Novo antracit cseréppel készül, amely modern megjelenést és hosszú élettartamot garantál.
A fűtést és a használati melegvíz-ellátást korszerű Bosch hőszivattyús rendszer biztosítja, padlófűtéssel kombinálva. Ez nemcsak komfortos hőérzetet ad, hanem jelentősen csökkenti a rezsiköltségeket is.
A fürdőszobai szaniterek Ravak és Grohe termékcsaládból választhatók, így a belső kialakítás részben személyre szabható. A burkolatok szintén választhatók, 5.000–10.000 Ft/m² értékhatárig.
Az ingatlan kulcsrakész állapotban kerül átadásra, amely tartalmazza:
- belső burkolatokat és szerelvényeket
- teljes festést
- járdák és kocsibejáró térkövezését
A várható átadás: 2026. november 30.
Ha felkeltette érdeklődését ez az eladó zalaegerszegi családi ház, vagy bármely más családi ház és bővebb információt szeretne, keressen bizalommal.
Hivatkozási szám: #180772
Az Openhouse Zalaegerszeg Ingatlaniroda tagjaként várom Önt az országos hálózatunk teljes kínálatával.
A családi ház vásárláshoz hitelt igényelne? Ingyenes hitelközvetítéssel segít Önnek bankfüggetlen hitelszakértőnk.
További szolgáltatásainkkal (pl. értékbecslés, energetikai tanúsítvány, jogi háttér) is segítjük Önt a vásárlásban.
Az otthon érték. Az ingatlan üzlet.
Helyiségek
| Helyiség | Alapterület | Padlóburkolat |
|---|---|---|
| Szoba | 11.62 m2 | |
| Szoba | 10.50 m2 | |
| Fürdő | 5.99 m2 | |
| Háztartási helyiség | 2.10 m2 | |
| Nappali | 19.21 m2 | |
| Amerikai konyha | 10.18 m2 | |
| WC | 2.09 m2 | |
| Szélfogó | 7.52 m2 | |
| Garázs | 16.32 m2 | |
| Háztartási helyiség | 5.12 m2 | |
| Terasz | 13.31 m2 |
Alaprajz





























Magyar 
