Siófok, Eladó Telek (#180766)
Kiváló befektetés Siófok belvárosában!
Az Openhouse Siófok kínálatában eladó a #180766 hivatkozási számú siófoki telek.
Siófok belvárosában JOGERŐS építési engedéllyel rendelkező projekt beruházási lehetősége eladó!
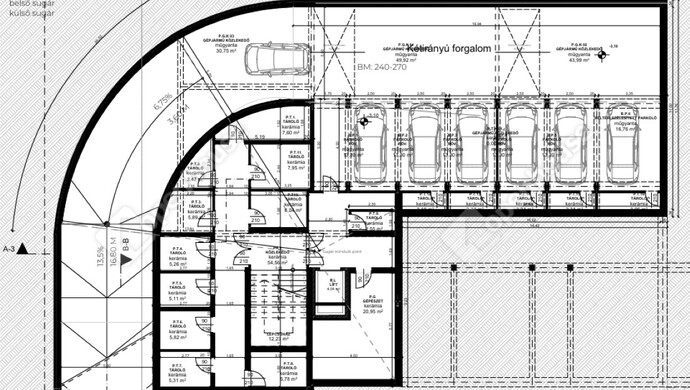
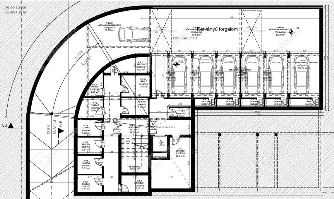
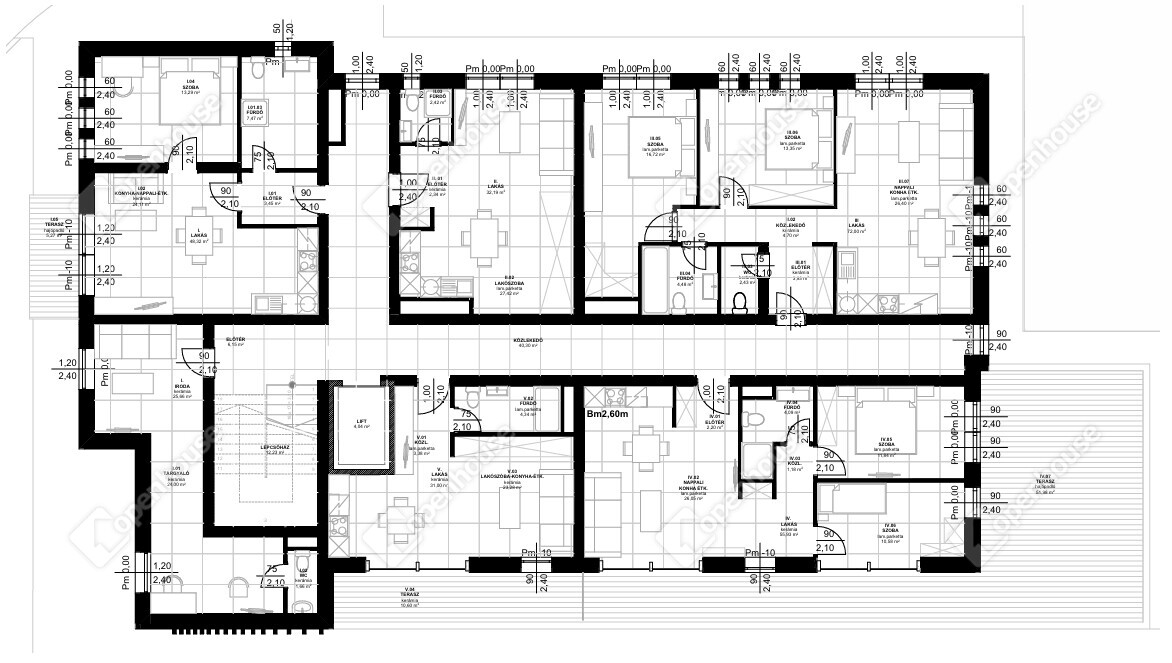
Az ingatlan 3 szinten kerülne megépítésre, mélygarázzsal és felszíni parkolási lehetőséggel.
Telekterület 1800 m2.
A pinceszinten 60,67 m2 tároló (16 darab), 230,84 közösségi tér, illetve 83,26 m2 parkoló (6 darab) kerül kialakításra, összesen 372,38 m2. Az épület összes szintje lifttel megközelíthető.
A földszinten 271,7 rendelő, illetve üzlet, ezenkívül 91,09 m2 közösségi tér kerül kialakításra, ami összesen
362,79 m2. Az egészségügyi szolgáltatásra ezt a részt kötelező kiépíteni.
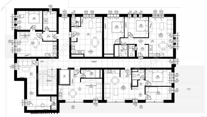
Az 1. emeleten 264,57 m2 lakás és iroda (plusz teraszok), valamint 58,68 m2 közösségi tér kerül kialakításra, ami összesen 323,25 m2.
A 2. emeleten 265,01 m2 lakás és iroda (plusz teraszok), valamint 59,50 m2 közösségi tér kerül kialakításra, ami összesen 324,51 m2.
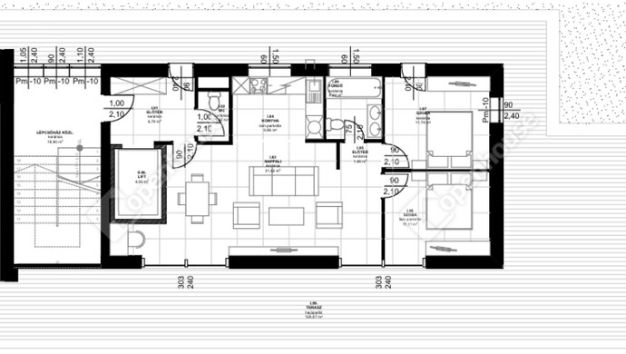
A 3. emeleten 75,45 m2 lakás (plusz terasz), illetve 18,90 m2 közösségi tér kerül kialakításra, ami összesen: 94,35 m2.
A földszinti részen kívül 11 db lakás és 2 db iroda épülne a tervek szerint.
Az épület összes nettó alapterülete: 1477,28 m2 plusz teraszok.
A beruházás azonnal megkezdhető!
Településen belüli elhelyezkedés:
Az értékelt ingatlan Siófok egyik kiemelt városrészén található, melynek alappillére a közvetlenül szomszédos Siófoki Kórház Rendelőintézet. Ez a tényező alapvetően befolyásolja az értékelt ingatlan hasznosítási formáját a jelenlegi hatályos építési szabályzat szerint.
Megközelíthetőség
Szilárd burkolat, aszfaltozott úton, az áruszállítás, a tömegközlekedés és a gyalogos
forgalom számára is közvetlenül megközelíthető. A 7-es főútvonal közvetett módon,
az M7-es autópálya 1,5 km-en belül elérhető.
Kiemelt befektetési lehetőség!!!
Ha felkeltette érdeklődését ez az eladó siófoki telek, vagy bármely más telek és bővebb információt szeretne, keressen bizalommal.
Hivatkozási szám: #180766
Az Openhouse Siófok tagjaként várom Önt az országos hálózatunk teljes kínálatával.
A telek vásárláshoz hitelt igényelne? Ingyenes hitelközvetítéssel segít Önnek bankfüggetlen hitelszakértőnk.
További szolgáltatásainkkal (pl. értékbecslés, energetikai tanúsítvány, jogi háttér) is segítjük Önt a vásárlásban.
Az otthon érték. Az ingatlan üzlet.












Magyar 
