Székesfehérvár, Eladó Társasházi lakás (#180747)
Újszerű társasházi lakás a Harmatosvölgyben
Az Openhouse Székesfehérvár Ingatlaniroda kínálatában eladó a #180747 hivatkozási számú székesfehérvári társasházi lakás.
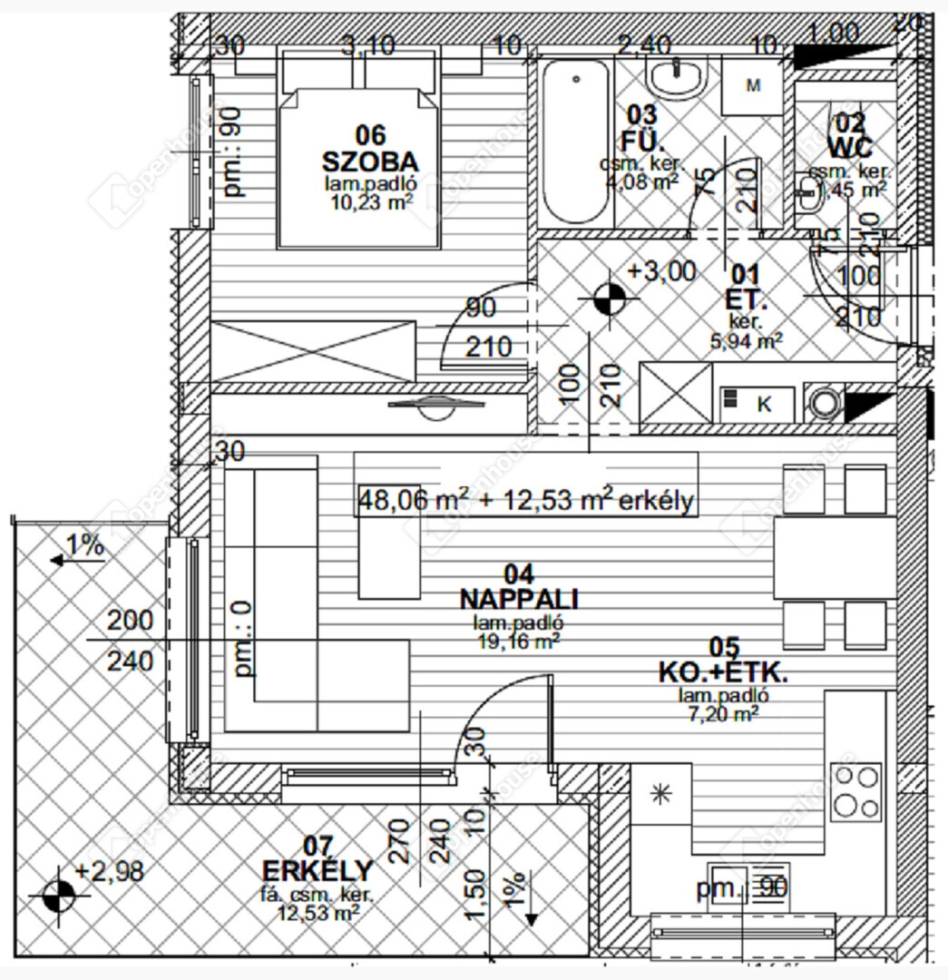
Eladásra kínálunk Székesfehérvár legdinamikusabban fejlődő városrészében egy 2018-ban átadott, ízlésesen kialakított, 2 szobás, 48 négyzetméteres, társasházi lakást a Harmatosvölgyben, akár azonnali költözéssel.
A lakás a 2. ütemben található, a második emeleti, teraszos ingatlanba belépve a folyosóról nappaliba érve tárul elénk a világos, tágas amerikai konyhás fő lakótér. Szintén innen elérhető egy kiváló méretű hálószoba és az igényesen kialakított fürdőszoba, valamint a különálló mellékhelyiség is. A terasz méretéből adódóan remek lehetőséget kínál pihenésre, vagy esti borozáshoz. A lakáshoz kocsibeálló tartozik. Egy zárt, önálló, földszinti, 0,9 m2-es tároló, valamint egy tágas garázs vásárolható. A tároló vételára 1 millió, a garázs vételára 17 millió forint. A környéken minden megtalálható, ami egy család életéhez szükséges lehet, a lakóközösség fiatalos, kedves, a környezet szépen karbantartott, a modern lakás költségei minimálisak.
Amennyiben hirdetésünk felkeltette érdeklődését, keressen bizalommal.
Ha felkeltette érdeklődését ez az eladó székesfehérvári társasházi lakás, vagy bármely más társasházi lakás és bővebb információt szeretne, keressen bizalommal.
Ha felkeltette érdeklődését ez az eladó székesfehérvári társasházi lakás, vagy bármely más társasházi lakás és bővebb információt szeretne, keressen bizalommal.
Hivatkozási szám: #180747
Az Openhouse Székesfehérvár Ingatlaniroda tagjaként várom Önt az országos hálózatunk teljes kínálatával.
A társasházi lakás vásárláshoz hitelt igényelne? Ingyenes hitelközvetítéssel segít Önnek bankfüggetlen hitelszakértőnk.
További szolgáltatásainkkal (pl. értékbecslés, energetikai tanúsítvány, jogi háttér) is segítjük Önt a vásárlásban.
Az otthon érték. Az ingatlan üzlet.
Helyiségek
| Helyiség | Alapterület | Padlóburkolat |
|---|---|---|
| Amerikai konyha | 7.20 m2 | Járólap |
| Nappali | 19.16 m2 | Laminált padló |
| Szoba | 10.00 m2 | Laminált padló |
| Fürdő | 4.00 m2 | Járólap |
| WC | 1.45 m2 | Járólap |
| Előtér | 5.94 m2 | Járólap |
Alaprajz



















Magyar 
