Székesfehérvár, Eladó Családi ház (#180723)
Új építésű családi ház Székesfehérvár Maroshegyen – természetközeli, energiatakarékos otthon
Az Openhouse Székesfehérvár Ingatlaniroda kínálatában eladó a #180723 hivatkozási számú székesfehérvári családi ház.
Új építésű családi ház Székesfehérvár Maroshegyen – természetközeli, energiatakarékos otthon
Képzelje el, hogy reggel madárcsicsergésre ébred, és az ablakon kinézve az erdő nyugalma fogadja.
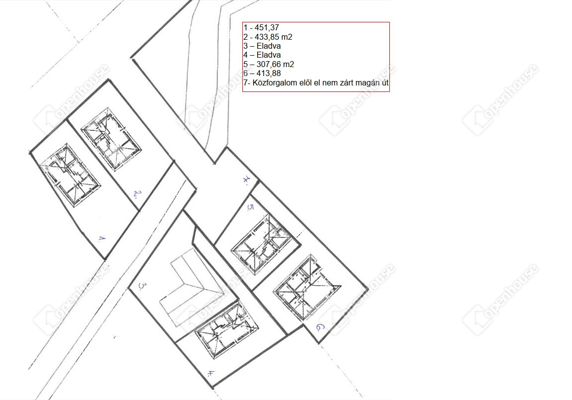
Maroshegy egyik csendes utcájában most lehetőség nyílik arra, hogy modern, energiatakarékos családi ház tulajdonosa legyen, saját, privát kerttel – a kertrészek mérete 308–451 nm között változik, így mindenki megtalálja a neki ideális területet.
Miért ez az otthon a tökéletes választás?
-
Természet közelsége: közvetlen erdőszomszédság, nyugodt környezet
-
Élhető családi terek: 3 külön nyíló szoba, tágas nappali, külön konyha, fürdőszoba, előszoba, gépészeti helyiség
-
Energiatakarékos megoldások: modern hőszivattyús rendszer, alacsony fenntartási költség
-
Kiváló infrastruktúra: bevásárlás, iskola, óvoda, orvosi rendelő, sport- és szabadidős lehetőségek a közelben
Házak mérete és kialakítása
-
80 nm alapterület
-
Praktikus, családbarát alaprajz
-
Átgondolt terek, ideális családoknak, fiatal pároknak, vagy bárkinek, aki értékálló és fenntartható otthont keres
Projekt előnyei
-
Csendes, kertvárosi utca, nincs átmenő forgalom
-
Rendezett tulajdoni viszonyok, építésre előkészített telkek
-
Kulcsrakész kivitelezés tapasztalt szakemberekkel, minőségi anyagokkal
-
Kiváló elérhetőség a belváros és az M7-es autópálya irányába
Műszaki kivonat – főbb jellemzők
Szerkezet és falazat:
-
Sávalap, lábazati fal ZS-30 zsalukőből, tömöríthető feltöltés.
-
Teherhordó fal: kerámia 30, válaszfalak: kerámia 25 vagy gipszkarton.
-
Tető: alacsony hajlású, cserép fedéssel, gipszkarton borítás alulról.
Szigetelés:
-
Vízszigetelés a vasalt aljzaton és falak alatt, fürdőben kent szigetelés.
-
Padlón lépésálló hőszigetelés + hőtükrös fólia, külső falakon 15 cm nikecel.
Nyílászárók:
-
Műanyag, 7 kamrás, Uw=0,96 W/m²K, 3 rétegű üvegezés, résszellőző.
-
Bejárati ajtó: 5 pontos záródás, biztonsági üvegbetéttel.
-
Beltéri ajtók: fóliázott vagy festett, kilinccsel.
Villamosság:
-
Falba süllyesztett vezetékek, csillagpontos gyengeáramú hálózat.
-
Konyhában elektromos sütő, főzőlap, mosogatógép előkészítés.
-
Igény szerint riasztó és klíma előkészítés.
Gépészet:
-
Levegő-víz hőszivattyú HMV tartállyal, biztonsági fűtőpatronnal.
-
Padlófűtés oxigéndiffúzió-mentes csővel.
Burkolatok és szaniterek:
-
Hideg padló: 5 500 Ft/m², fal: 5 000 Ft/m²
-
Laminált padló: 4 000 Ft/m²
-
Porcelán szaniterek, krómozott csaptelepek, kád 170x70 cm.
Felületképzés:
-
Főfal: vakolt cement-mészhabarcs, kétszeri glettelés, fehér festés.
-
Válaszfal: gipszkarton, szigeteléssel, festve.
Kiegészítők:
-
Redőny, napelem előkészítés, légkondicionálás előkészítés igény szerint.
Általános információ:
-
3 bejárás biztosított a kivitelezés alatt, változtatás többletköltséggel.
-
Megfelel a hatályos jogszabályoknak és a 2021-től érvényes energiaelőírásoknak.
-
Árak ÁFA-val, CSOK és családtámogatás igénybe vehető.
Ha felkeltette érdeklődését ez az eladó székesfehérvári családi ház, vagy bármely más családi ház és bővebb információt szeretne, keressen bizalommal.
Hivatkozási szám: #180723
Az Openhouse Székesfehérvár Ingatlaniroda tagjaként várom Önt az országos hálózatunk teljes kínálatával.
A családi ház vásárláshoz hitelt igényelne? Ingyenes hitelközvetítéssel segít Önnek bankfüggetlen hitelszakértőnk.
További szolgáltatásainkkal (pl. értékbecslés, energetikai tanúsítvány, jogi háttér) is segítjük Önt a vásárlásban.
Az otthon érték. Az ingatlan üzlet.
Helyiségek
| Helyiség | Alapterület | Padlóburkolat |
|---|---|---|
| Előszoba | 3.50 m2 | Járólap |
| Háztartási helyiség | 3.90 m2 | Járólap |
| Amerikai konyha | 36.00 m2 | Járólap |
| Szoba | 11.00 m2 | Laminált padló |
| Szoba | 10.50 m2 | Laminált padló |
| Szoba | 9.00 m2 | Laminált padló |
| Fürdő | 6.30 m2 | Járólap |









Magyar 
