Siófok, Eladó Családi ház (#180698)
ELADÓ PRÉMIUM CSALÁDI HÁZ SIÓFOK EZÜSTPARTON!!
Az Openhouse Siófok kínálatában eladó a #180698 hivatkozási számú siófoki családi ház.
ELADÓ PRÉMIUM CSALÁDI HÁZ SIÓFOK EZÜSTPARTON – MEDITERRÁN ÉLETÉRZÉS A BALATON KÖZELÉBEN
Siófok Ezüstpart egyik legkedveltebb részén, mindössze két utcányira a Balatontól, új tulajdonosát várja ez a 2022-ben épült, exkluzív megjelenésű, kétszintes családi ház egy 551 m²-es saroktelken.
A mediterrán hangulatot árasztó ingatlan nemcsak esztétikájával, hanem praktikus kialakításával is kiemelkedik. A saroktelek adottságainak köszönhetően két irányból megközelíthető, így több autó számára is kényelmes parkolási lehetőséget biztosít – fedett és nyitott, zárt udvari beállókkal egyaránt.
A gondosan parkosított, teljes egészében térkövezett udvar tökéletes helyszíne a kikapcsolódásnak és vendéglátásnak. A szabadtéri élményeket egy jól felszerelt kültéri konyha teszi teljessé, amely ideális baráti és családi összejövetelekhez. A hosszabbra nyúló estékhez különálló, teljes komforttal rendelkező vendégház is rendelkezésre áll.
A telken továbbá egy tágas, külön épületrész szolgál kerékpárok, motorok és egyéb eszközök biztonságos tárolására.
Telefonról vezérelhető okosotthon, kamerarendszerrel.
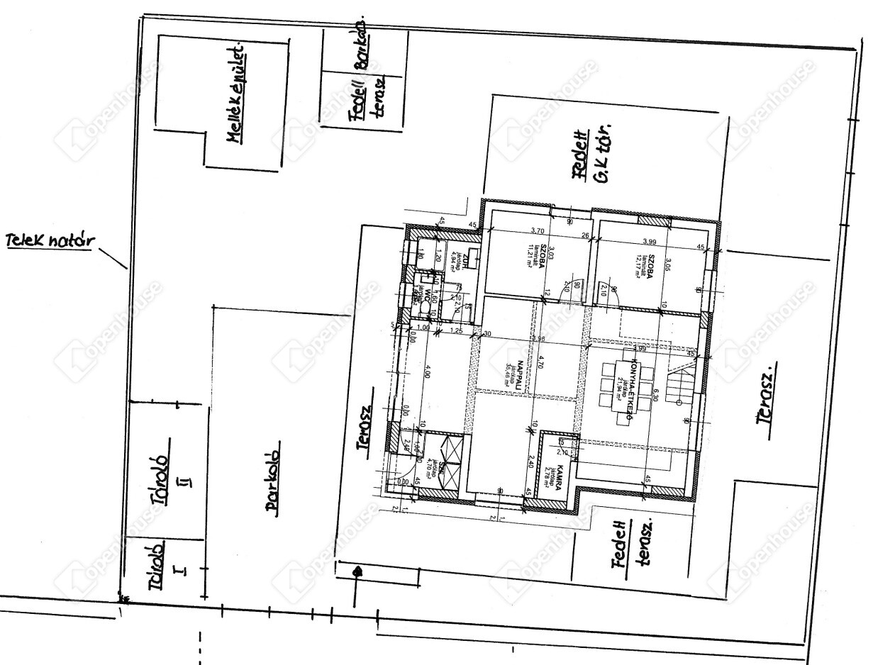
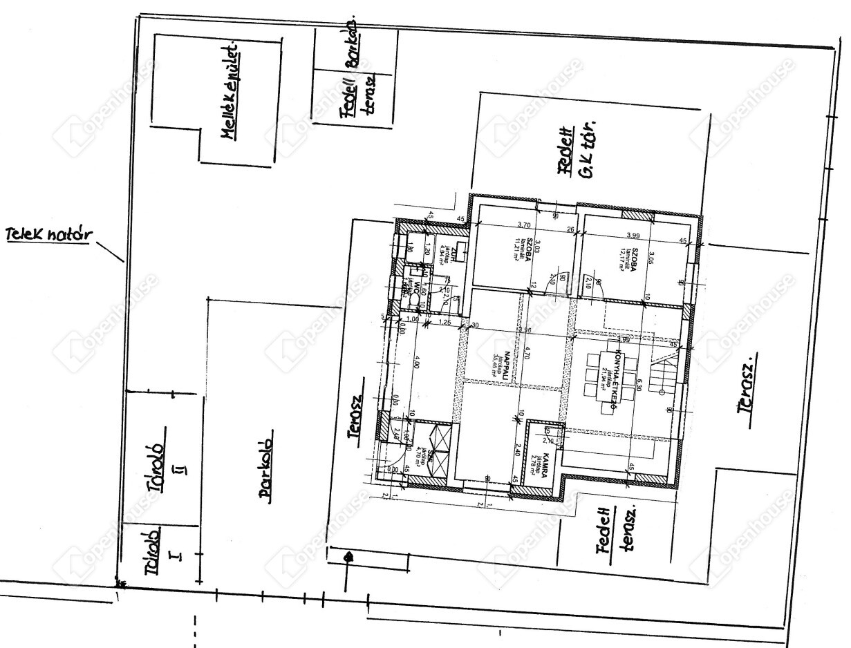
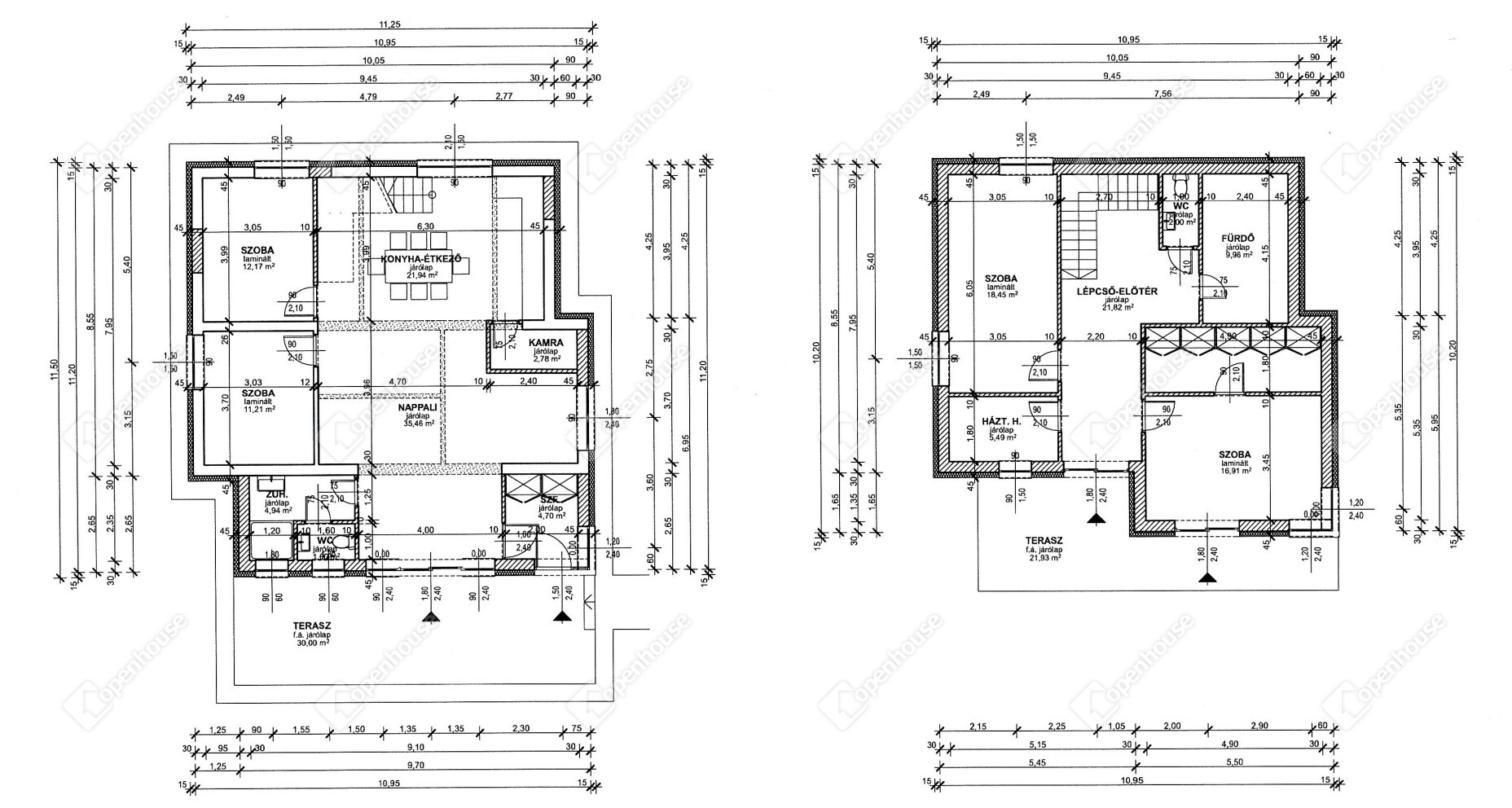
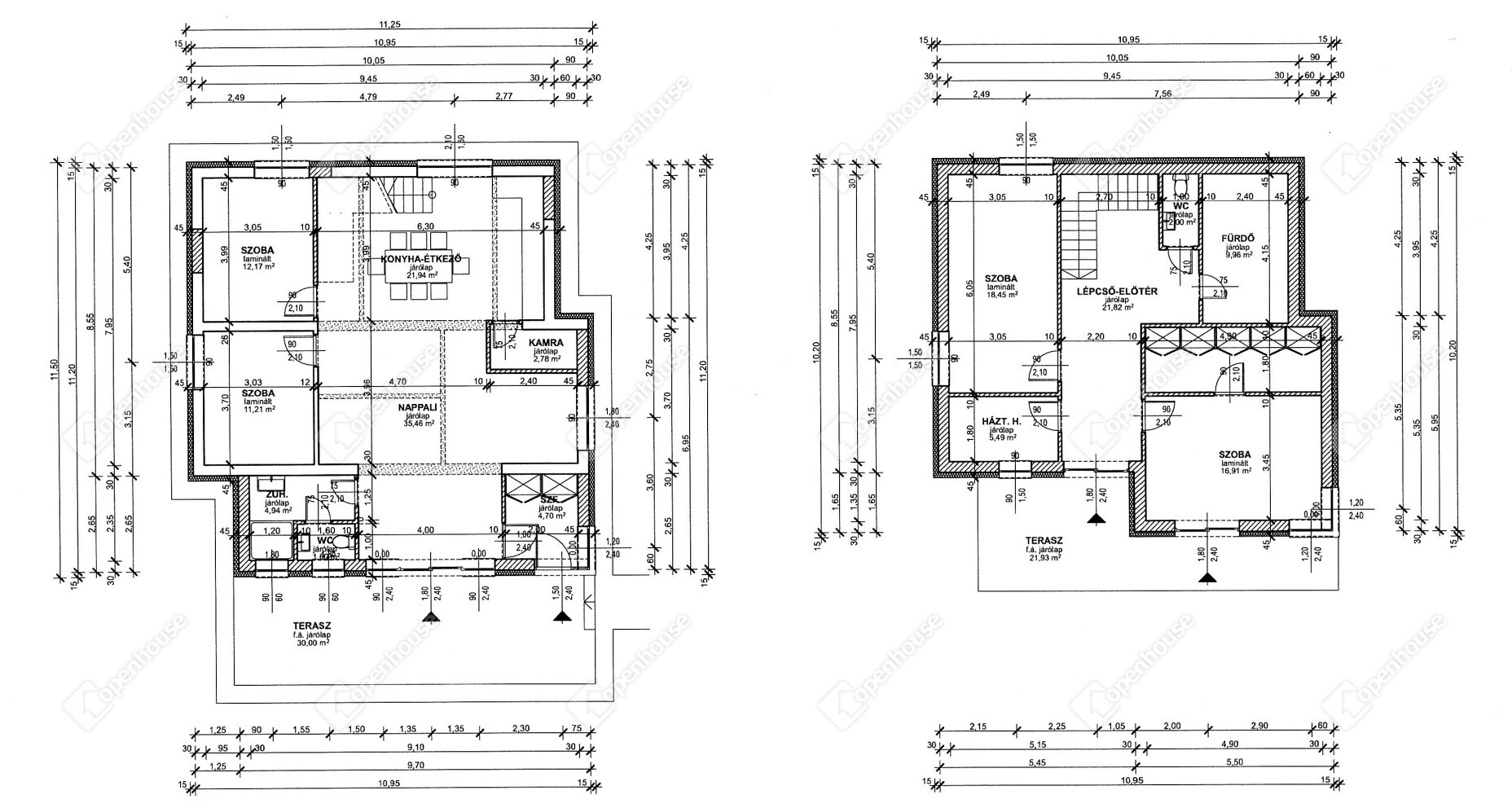
A 330 m2-es főépület elrendezése:
Földszint:
- Előszoba / szélfogó
- Tágas, amerikai konyhás nappali
- 2 Hálószoba
- Fürdőszoba és külön WC
- Lépcső alatti praktikus tároló a maximális helykihasználásért
Emelet:
- Világos, tágas közlekedő-erkély kapcsolattal
- 2 fürdőszoba
- Hálószoba/ gardróbszoba-erkélykapcsolattal
- Wellness és kondiszoba
- Dolgozószoba
- Külön mosókonyha
Műszaki jellemzők:
- Masszív téglaépítés
- 20 cm-es Dryvit hőszigetelés
- 3 rétegű, korszerű nyílászárók
- Hőszivattyús fűtési rendszer padlófűtéssel
- Hűtő-fűtő klímaberendezés a maximális komfortért
- 8 kW-os napelemes rendszer energiatárolóval
- 3x32 Amperes elektromos hálózat
Az öntözőrendszer a teljes kert gondozását automatikusan biztosítja, fúrt kútról működtetve, így a fenntartási költségek is kedvezőek.
Ez az ingatlan tökéletes választás mind állandó otthonnak, mind nyaralónak vagy befektetésnek, ahol a modern technológia, a prémium kivitelezés és a balatoni életérzés harmonikusan találkozik.
Nyerjen bepillantást videónk megtekintésével.
Az alábbi linken Youtube link elérhető: https://youtu.be/JDzbbibVC_A
Engedje meg magának ezt az életérzést – hívjon bizalommal a megtekintésért!
Ez nem csupán egy ház, hanem egy életstílus – legyen az Öné!
Tapasztalja meg személyesen is ezt a kivételes otthont – várjuk hívását!
Ha felkeltette érdeklődését ez az eladó siófoki családi ház, vagy bármely más családi ház és bővebb információt szeretne, keressen bizalommal.
Hivatkozási szám: #180698
Az Openhouse Siófok tagjaként várom Önt az országos hálózatunk teljes kínálatával.
A családi ház vásárláshoz hitelt igényelne? Ingyenes hitelközvetítéssel segít Önnek bankfüggetlen hitelszakértőnk.
További szolgáltatásainkkal (pl. értékbecslés, energetikai tanúsítvány, jogi háttér) is segítjük Önt a vásárlásban.
Az otthon érték. Az ingatlan üzlet.
Alaprajz
























































































Magyar 
