Zalaegerszeg, Eladó Családi ház (#180643)
Zalaegerszeg – Helikon utca | 3 generációs családi ház külön lakrésszel, vállalkozásra is
Az Openhouse Zalaegerszeg Ingatlaniroda kínálatában eladó a #180643 hivatkozási számú zalaegerszegi családi ház.
Zalaegerszeg egyik csendes, rendezett, családi házas övezetében, a Helikon utcában kínálok megvételre egy nettó 245 m² alapterületű, háromszintes, masszív tégla szerkezetű családi házat, amely méretéből, elrendezéséből és adottságaiból fakadóan a piacon ritkán elérhető lehetőséget képvisel. Az ingatlan nem csupán egy klasszikus értelemben vett lakóház, hanem olyan komplex ingatlan, amely egyaránt alkalmas több generáció kényelmes együttélésére, befektetési célú hasznosításra, vagy akár lakhatás és vállalkozás egy helyen történő kialakítására.
A ház három szinten kínál jól strukturált, egymástól akár szeparálható élettereket, amelyek lehetőséget adnak arra, hogy az ingatlan több, önálló funkcionális egységként működjön. A nettó 245 m²-es lakótér valódi, jól kihasználható alapterületet jelent, amely nem kompromisszumos tetőtéri megoldásokból adódik, hanem élhető, arányos tereket biztosít. A hat szoba és a több vizesblokk jelenlegi kialakítása is jól tükrözi az ingatlan többgenerációs jellegét, ugyanakkor a belső elrendezés igény szerint tovább alakítható, korszerűsíthető.
Az ingatlan egyik kiemelkedő értéke az udvarban található különálló, teljes értékű lakrész, amely önálló lakhatásra alkalmas, így ideális lehet akár családtag részére, akár bérbeadás céljára. Ez a megoldás jelentősen növeli az ingatlan funkcionalitását és piaci értékét, hiszen egyszerre biztosít külön életteret és bevételi potenciált.
A 417 m²-es telek mérete optimális, könnyen karbantartható, ugyanakkor elegendő teret biztosít a mindennapi használathoz, parkoláshoz és a garázsok kényelmes megközelítéséhez. Az ingatlanhoz több garázs is tartozik, köztük dupla garázs, amely a mai igényeknek megfelelő parkolási és tárolási lehetőséget biztosít.
A ház az 1970-es években épült, stabil tégla szerkezettel, amely kiváló alapot ad egy korszerű, értéknövelő felújításhoz. Jelenlegi állapotában felújítást igényel, azonban ez egyben lehetőséget is jelent arra, hogy az új tulajdonos saját igényei szerint alakítsa ki az ingatlant, legyen szó több lakás kialakításáról, modern családi otthonról vagy akár üzleti célú hasznosításról. A konvektoros fűtés jelenleg működő rendszer, ugyanakkor a korszerűsítés során könnyen továbbfejleszthető.
Elhelyezkedését tekintve az ingatlan kiváló, hiszen Zalaegerszeg belvárosa mindössze néhány perc alatt elérhető autóval, miközben a környezet nyugodt, családi házas jellegű, élhető lakókörnyezetet biztosít. A lokáció és az ingatlan paramétereinek együttese különösen vonzóvá teszi mind saját célú, mind befektetési felhasználás esetén.
Ez az ingatlan ideális választás mindazok számára, akik nem egy átlagos családi házat keresnek, hanem olyan lehetőséget, amelyben egyszerre van jelen a méret, a rugalmasság és a jövőbeni értéknövekedés potenciálja. Ritka adottság, hogy egy ingatlan ekkora alapterülettel, külön lakrésszel és ilyen sokrétű hasznosíthatósággal rendelkezzen egy jól megközelíthető, mégis nyugodt városi környezetben.
Ha felkeltette érdeklődését ez az eladó zalaegerszegi családi ház, vagy bármely más családi ház és bővebb információt szeretne, keressen bizalommal.
Hivatkozási szám: #180643
Az Openhouse Zalaegerszeg Ingatlaniroda tagjaként várom Önt az országos hálózatunk teljes kínálatával.
A családi ház vásárláshoz hitelt igényelne? Ingyenes hitelközvetítéssel segít Önnek bankfüggetlen hitelszakértőnk.
További szolgáltatásainkkal (pl. értékbecslés, energetikai tanúsítvány, jogi háttér) is segítjük Önt a vásárlásban.
Az otthon érték. Az ingatlan üzlet.
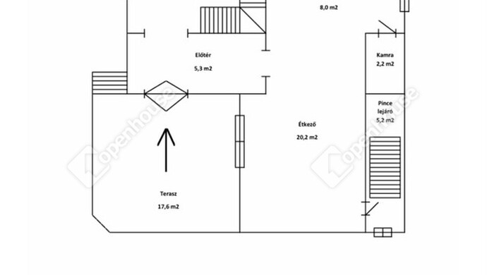
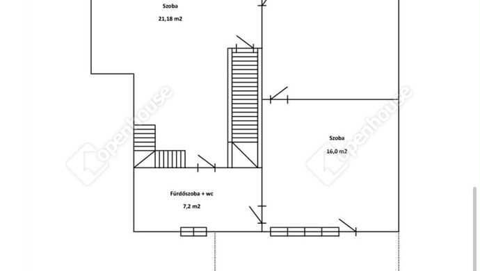
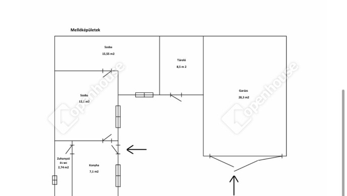
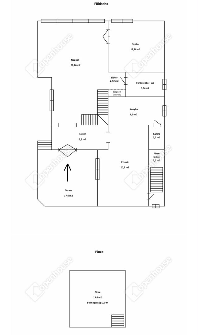
Helyiségek
| Helyiség | Alapterület | Padlóburkolat |
|---|---|---|
| Terasz | 17.60 m2 | Járólap |
| Előtér | 5.30 m2 | Járólap |
| Étkező | 20.20 m2 | Járólap |
| Konyha | 8.00 m2 | Járólap |
| Kamra | 2.20 m2 | Járólap |
| Fürdő | 5.04 m2 | Járólap |
| Nappali | 20.16 m2 | Laminált padló |
| Előtér | 2.52 m2 | Laminált padló |
| Szoba | 13.86 m2 | Laminált padló |
| Közlekedő | 5.20 m2 | Laminált padló |
| Pince | 13.00 m2 | Beton |
| Szoba | 21.18 m2 | Laminált padló |
| Szoba | 21.60 m2 | Laminált padló |
| Szoba | 16.00 m2 | Laminált padló |
| Fürdő | 7.20 m2 | Járólap |
| Erkély | 9.60 m2 | Járólap |
| Tetőterasz | 19.60 m2 | Járólap |
| Szoba | 30.12 m2 | Laminált padló |
| Fürdő | 7.60 m2 | Járólap |
| Erkély | 5.70 m2 | Járólap |
| Konyha | 7.10 m2 | Járólap |
| Fürdő | 2.74 m2 | Járólap |
| Szoba | 12.10 m2 | Laminált padló |
| Szoba | 15.55 m2 | Laminált padló |
| Tároló | 8.50 m2 | Járólap |
| Garázs | 28.30 m2 | Beton |
































Magyar 
