Debrecen, Eladó Családi ház (#180568)
Az Openhouse Debrecen Hadházi úti Ingatlaniroda kínálatában eladó a #180568 BO azonosítójú debreceni Családi ház.
PRÉMIUM BEFEKTETÉSI LEHETŐSÉG DEBRECEN ÓVÁROSÁBAN!
Eladásra kínálunk egy teljeskörűen felújított, önálló családi házat Debrecen egyik patinás városrészében az Óvárosban.
Ez az ingatlan a modern kényelem és a kiváló lokáció ötvözete, amely méretéből és elosztásából adódóan számtalan hasznosítási lehetőséget rejt magában.
Főbb paraméterek:
Alapterület: 180 nm nettó
Építőanyag: tégla
Elosztás: 8 szoba + 4 modern fürdőszoba
Állapot: Teljeskörű műszaki és esztétikai felújításon esett át és a benne lévő összes berendezés a vételár részét képezi!!
Miért érdemes ezt választania?
Kiváló lokáció: Az Óváros csendes, mégis központi részén helyezkedik el, karnyújtásnyira a Belvárostól és a főbb közlekedési csomópontoktól.
Üzleti potenciál: A 8 szobás kialakítás ideálissá teszi irodaháznak, magánklinikának vagy panziónak is.
Hosszú távú kiadás: A szobák és fürdőszobák száma miatt kiválóan alkalmas magas hozamú munkásszállásként vagy diákok számára történő bérbeadásra.
Fenntarthatóság: A felújítás során korszerűsített gépészet és hőszigetelés biztosítja az alacsony rezsiköltséget.
Ne maradjon le erről a lehetőségről! Az Óvárosban az ilyen típusú, azonnal hasznosítható ingatlanok rendkívül gyorsan gazdára találnak.
Megtekintéssel kapcsolatban, kérem hívjon és megmutatom ezt az ingatlant!
Ön is ingatlant keres? Válassza Irodánkat!
Amennyiben a #180568 BO azonosítójú, debreceni eladó Családi ház vagy bármely, az Openhouse hálózat kínálatában található ingatlan felkeltette érdeklődését, kérem, hívjon bizalommal!
SEGÍTÜNK, INTÉZZEN VELÜNK MINDENT EGY HELYEN!
Már megtalálta vagy még keresi „álmai otthonát”, de nem rendelkezik a megvásárlásához szükséges teljes vételárral?
Ne járjon bankról bankra!
Hitelszakértőnk, legyen szó akár piaci, akár államilag támogatott hitelről vagy vissza nem térítendő támogatásról, megtalálja az Önnek legmegfelelőbb egyedi konstrukciót.
Bankfüggetlen hitelügyintézőnk nagy szakmai tapasztalattal és a bankok ajánlatánál kedvezőbb lehetőségekkel segíti a Családi ház finanszírozását. Támogatja Önt a legkedvezőbb konstrukció kiválasztásában. Teljeskörűen összeállítja a hitelkérelmet, és a hitel folyósításáig végigkíséri az egész folyamatot.
CSOK-kal és Babaváró hitellel kapcsolatban is keressen minket bizalommal!
Kereső ügyfeleinknek a hitelközvetítői szolgáltatásaink ingyenesek.
Az otthon érték. Az ingatlan üzlet.
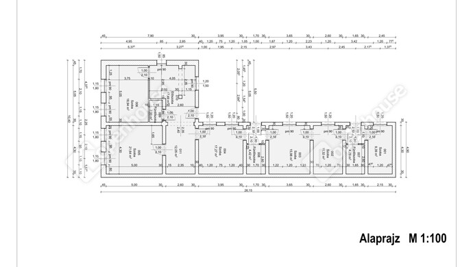
Helyiségek
| Helyiség | Alapterület | Padlóburkolat |
|---|---|---|
| Szoba | 21.00 m2 | |
| Szoba | 19.00 m2 | |
| Szoba | 17.30 m2 | |
| Szoba | 16.00 m2 | |
| Szoba | 11.30 m2 | |
| Szoba | 9.40 m2 | |
| Fürdő | 4.40 m2 | |
| Fürdő | 4.30 m2 | |
| Fürdő | 2.33 m2 | |
| Amerikai konyha | 12.00 m2 | |
| Közlekedő | 11.50 m2 | |
| Szoba | 16.40 m2 | |
| Szoba | 14.60 m2 | |
| Fürdő | 3.60 m2 | |
| Közlekedő | 16.40 m2 | |
| Háztartási helyiség | 12.70 m2 |
Alaprajz

















Magyar 
