Bocskaikert, Eladó Családi ház (#180475)
Az Openhouse Debrecen Hadházi úti Ingatlaniroda kínálatában eladó a #180475 BO azonosítójú bocskaikerti Családi ház.
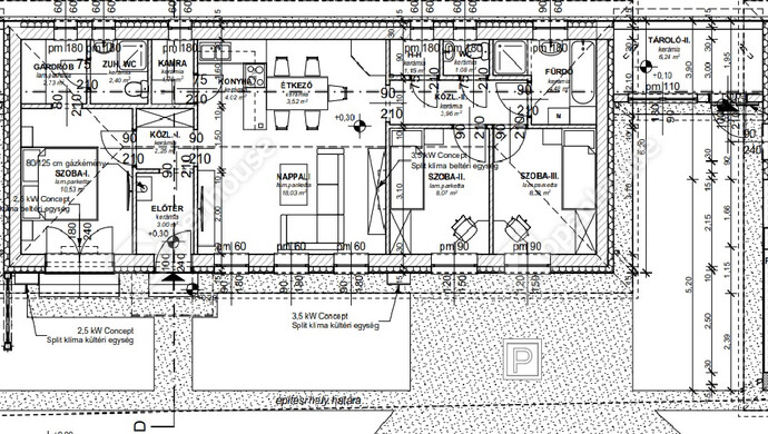
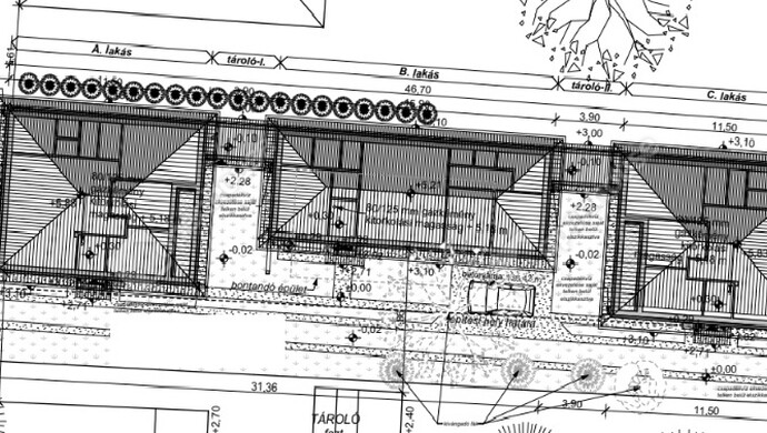
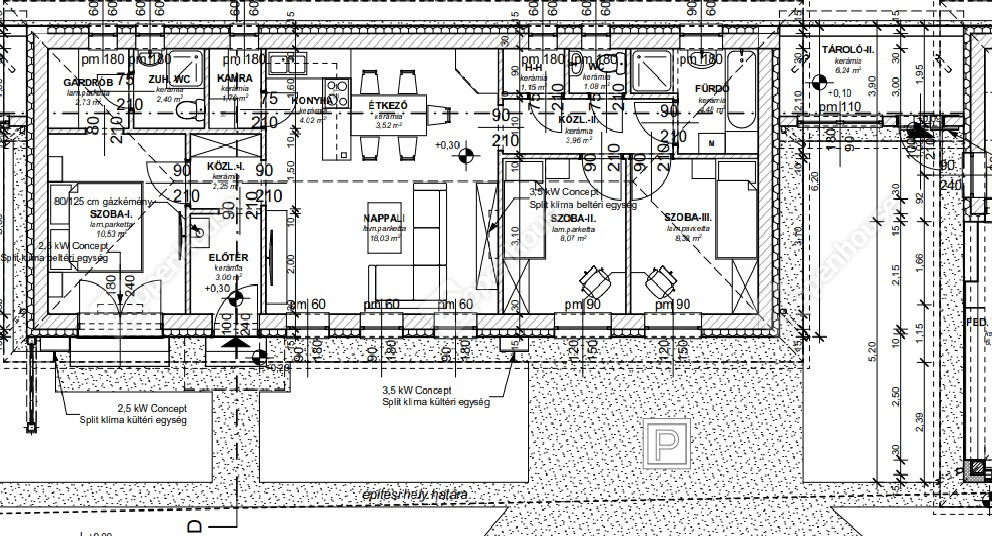
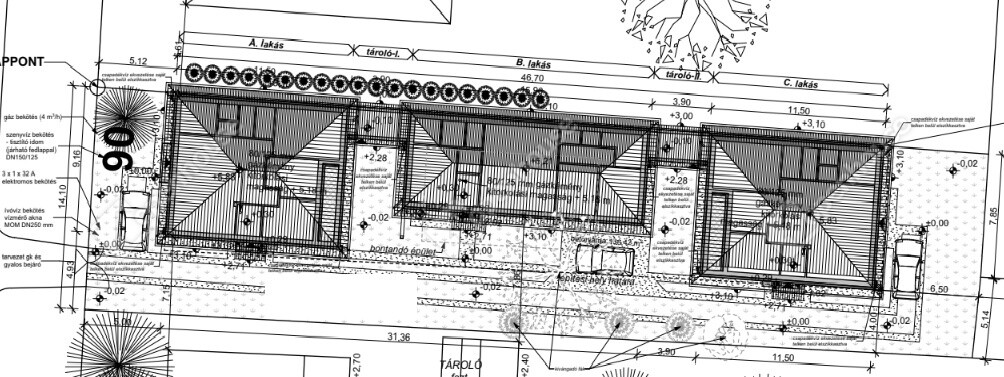
Bocskaikert központjában 2026. II. negyedévi átadással eladó egy nettó 84 m2-es, földszintes, nappali-amerikai konyha - étkező + 3 külön nyíló szobás ház, saját kis kertrésszel, gépkocsibeállóval, az alábbi paraméterekkel:
-Nappali-amerikai konyha + 3 külön nyíló szoba
-Földszintes kialakítás
-Porotherm 30 falazóblokkból + 15 cm hőszigetelés
-Gázcirkó fűtés, igény szerint padlófűtés
-Betoncserép fedés
-Fedett terasz, épített tároló
-Saját kertrész, gépkocsibeállási lehetőséggel
-Második gépkocsinak van hely az épület előtt
-Klíma, 3 rétegű, hőszigetelt műanyag nyílászárók, minimális rezsi
-Társasház alapító okirattal, önálló helyrajzi számra kerülő lakások, CSOK+ alkalmasak
-A lakóegységek csak a tárolóknál csatlakoznak, ebből fakadóan a lakások teljesen különálló épületek, külön tetőszerkezettel
-Az átgondolt tervezésnek köszönhetően dupla komfortos ingatlanok épülnek, a szülői hálóból külön zuhanyzó és WC nyílik a közös fürdőszoba mellett. A különálló 2. WC mellett még egy háztartási helyiség is helyet kapott.
-A tárolónak vasbeton alap készül, egybe lesz öntve az épülettel, igényesen kerül kivitelezésre
-A középső lakásban a szülői hálóban master bedroom kerül kialakításra, gardrób és fürdő épül, a konyhából pedig egy kamra és háztartási helyiség is nyílik.
Minden helyi célpont kényelmes sétatávolságra található, Debrecen központja még a reggeli csúcsban is 13 perc alatt elérhető.
Az építkezés elkezdődött, 2026. nyarán költözhető, hitel, CSOK+ igényelhető.
Részletes műszaki tartalommal, megtekintési időponttal kapcsolatban várjuk hívását a hét minden napján!
Ön is ingatlant keres? Válassza Irodánkat!
Amennyiben a #180475 BO azonosítójú, bocskaikerti eladó Családi ház vagy bármely, az Openhouse hálózat kínálatában található ingatlan felkeltette érdeklődését, kérem, hívjon bizalommal!
SEGÍTÜNK, INTÉZZEN VELÜNK MINDENT EGY HELYEN!
Már megtalálta vagy még keresi „álmai otthonát”, de nem rendelkezik a megvásárlásához szükséges teljes vételárral?
Ne járjon bankról bankra!
Hitelszakértőnk, legyen szó akár piaci, akár államilag támogatott hitelről vagy vissza nem térítendő támogatásról, megtalálja az Önnek legmegfelelőbb egyedi konstrukciót.
Bankfüggetlen hitelügyintézőnk nagy szakmai tapasztalattal és a bankok ajánlatánál kedvezőbb lehetőségekkel segíti a Családi ház finanszírozását. Támogatja Önt a legkedvezőbb konstrukció kiválasztásában. Teljeskörűen összeállítja a hitelkérelmet, és a hitel folyósításáig végigkíséri az egész folyamatot.
CSOK-kal és Babaváró hitellel kapcsolatban is keressen minket bizalommal!
Kereső ügyfeleinknek a hitelközvetítői szolgáltatásaink ingyenesek.
Az otthon érték. Az ingatlan üzlet.
Helyiségek
| Helyiség | Alapterület | Padlóburkolat |
|---|---|---|
| Szoba | 10.53 m2 | |
| Szoba | 8.38 m2 | |
| Szoba | 8.07 m2 | |
| Előszoba | 3.00 m2 | |
| Étkező | 3.52 m2 | |
| Konyha | 4.02 m2 | |
| Nappali | 18.03 m2 | |
| Fürdő | 2.40 m2 | |
| Háztartási helyiség | 1.15 m2 | |
| WC | 1.08 m2 | |
| Fürdő | 4.48 m2 | |
| Kamra | 1.76 m2 | |
| Közlekedő | 6.21 m2 | |
| Gardrób | 2.73 m2 | |
| Tároló | 6.24 m2 |
Alaprajz




















Magyar 
