Sopron, Eladó Családi ház (#180422)
Panorámás prémium családi ház Sopron Kutyahegyen
Az Openhouse Sopron Ingatlaniroda kínálatában eladó a #180422 hivatkozási számú soproni családi ház.
Eladó Sopron egyik legszebb részén, Kutyahegyen egy háromszintes, modern családi ház, amely lakhatásra és vállalkozásra is kiváló lehetőséget kínál.
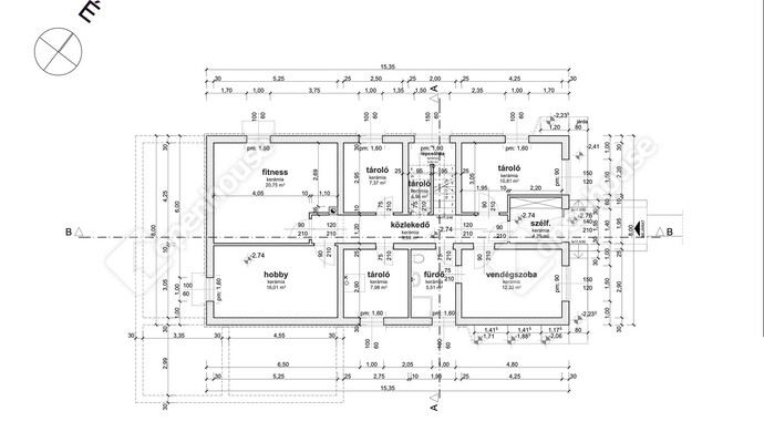
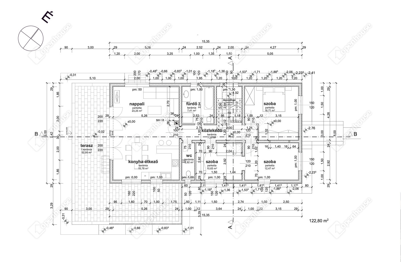
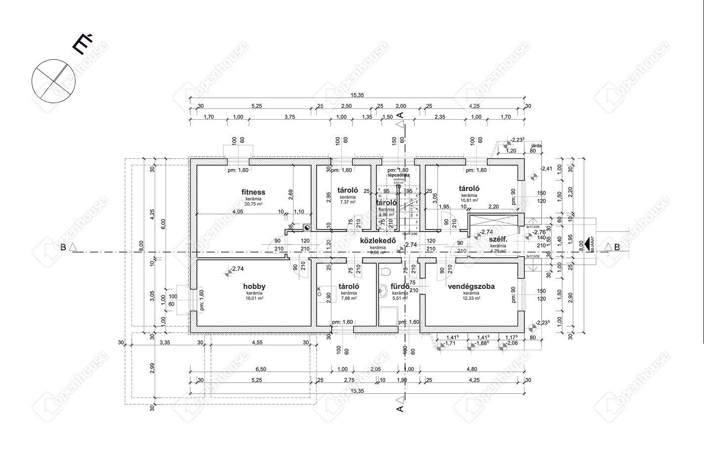
Az ingatlan kb. 310 m² potenciális hasznos területtel rendelkezik, három szinten.
Főbb jellemzők
• pince szint ~100 m² (fitness / hobby / vendégtér)
• lakószint ~102 m²
• tetőtér ~110 m² (szerkezet kész)
• 53 m² terasz motoros télikerttetővel
• panorámás telek
• kondenzációs kazán + padlófűtés
• kandalló lehetőség
• 3 rétegű Rába nyílászárók
• elektromos redőnyök
A földszint vállalkozásra is alkalmas (iroda, szalon vagy szolgáltatás).
Írj üzenetet és elküldöm a teljes alaprajzot és részleteket.
Ha felkeltette érdeklődését ez az eladó soproni családi ház, vagy bármely más családi ház és bővebb információt szeretne, keressen bizalommal.
Hivatkozási szám: #180422
Az Openhouse Sopron Ingatlaniroda tagjaként várom Önt az országos hálózatunk teljes kínálatával.
A családi ház vásárláshoz hitelt igényelne? Ingyenes hitelközvetítéssel segít Önnek bankfüggetlen hitelszakértőnk.
További szolgáltatásainkkal (pl. értékbecslés, energetikai tanúsítvány, jogi háttér) is segítjük Önt a vásárlásban.
Az otthon érték. Az ingatlan üzlet.
Helyiségek
| Helyiség | Alapterület | Padlóburkolat |
|---|---|---|
| Tároló | 2.00 m2 | Járólap |
| Tároló | 7.00 m2 | Járólap |
| Szélfogó | 4.00 m2 | Járólap |
| Előszoba | 10.00 m2 | Járólap |
| Tároló | 11.00 m2 | Járólap |
| Szabadidős helyiség | 21.00 m2 | Járólap |
| Wellness részleg | 16.00 m2 | Járólap |
| Tároló | 8.00 m2 | Járólap |
| Fürdő | 6.00 m2 | Járólap |
| Szoba | 12.00 m2 | Járólap |
| Előszoba | 6.00 m2 | Faparketta |
| Előtér | 7.00 m2 | Járólap |
| Fürdő | 7.00 m2 | Járólap |
| Nappali | 23.00 m2 | Hajópadló |
| Konyha | 16.00 m2 | Járólap |
| WC | 3.00 m2 | Járólap |
| Szoba | 11.00 m2 | Faparketta |
| Szoba | 13.00 m2 | Faparketta |
| Szoba | 17.00 m2 | Faparketta |
Alaprajz





















Magyar
Angol
Német 
