Ebes, Eladó Fejlesztési terület (#180333)
Ebesen sokoldalúan hasznosítható ingatlanfejlesztési lehetőség!
Az Openhouse Debrecen Hadházi úti Ingatlaniroda kínálatában eladó a #180333 hivatkozási számú ebesi fejlesztési terület.
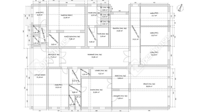
Ebesen eladó egy 596 m²-es szerkezetkész épület óriási, 3004 m²-es telken!
Intézményi övezet. Ritka, sokoldalúan hasznosítható ingatlanfejlesztési lehetőség!
- Ebes központi részén, kiváló megközelíthetőséggel eladó egy 596 m²-es, szerkezetkész épület, ami egy összközműves, 3004 m²-es telken helyezkedik el.
- Az ingatlan intézményi besorolású, így számos funkció megvalósítására alkalmas, valódi fejlesztői lehetőség!
- A beton alapra épült, téglafalazatú épület stabil szerkezettel rendelkezik, így a befejezés már az új tulajdonos igényei szerint alakítható.
Lehetséges funkciók (intézményi övezet)
Az övezeti besorolás lehetővé teszi többek között:
-
igazgatási, oktatási, nevelési intézmény
-
egészségügyi vagy szociális létesítmény
-
idősek otthona
-
irodaépület
-
kulturális, közösségi vagy szórakoztató funkció
-
kereskedelmi vagy szolgáltató egység
-
sportlétesítmény
-
hitéleti épület
Ez az ingatlan tehát szinte bármilyen intézményi vagy szolgáltatói célra átalakítható.
Telek és beépítési paraméterek
-
Telekméret: 3004 m²
-
Legnagyobb beépíthetőség: 40%
-
Legkisebb kialakítható telekterület: 600 m²
-
Legkisebb zöldfelület: 50%
-
Maximális épületmagasság: 7,5 m
A telek mérete és az övezeti előírások jelentős fejlesztési potenciált biztosítanak.
Miért különleges ez az ingatlan?
-
Ritka, nagy méretű intézményi telek
-
Már meglévő, masszív szerkezetkész épület
-
Teljes közműellátottság
-
Széles körű hasznosítási lehetőségek
-
Fejlesztőknek, vállalkozóknak, intézményfenntartóknak ideális
-
Kiváló ár-érték arányú beruházási alap
Ha felkeltette érdeklődését ez az eladó ebesi fejlesztési terület, vagy bármely más fejlesztési terület és bővebb információt szeretne, keressen bizalommal.
Hivatkozási szám: #180333
Az Openhouse Debrecen Hadházi úti Ingatlaniroda tagjaként várom Önt az országos hálózatunk teljes kínálatával.
A fejlesztési terület vásárláshoz hitelt igényelne? Ingyenes hitelközvetítéssel segít Önnek bankfüggetlen hitelszakértőnk.
További szolgáltatásainkkal (pl. értékbecslés, energetikai tanúsítvány, jogi háttér) is segítjük Önt a vásárlásban.
Az otthon érték. Az ingatlan üzlet.
Alaprajz











Magyar 
