Debrecen, Eladó Ikerház (#180332)
Új építés az energiatakarékosság jegyében!
Az Openhouse Debrecen Hadházi úti Ingatlaniroda kínálatában eladó a #180332 hivatkozási számú debreceni ikerház.
Debrecenben Felsőjózsán magas színvonalú ikerház eladó!
- A ház ikerház jelleggel épült, nappali és 5 hálószobás kivitelezéssel.
- A családi ház bruttó 150 m2, a hozzá tartozó telek 910 m2.
- A ház központi része az impozáns belmagasságú nappali és a hozzá tartozó Amerikai konyha.
- A nappali egy 35 m2 - es teraszra nyílik.
- A családi házban 5 hálószoba, és 3 fürdőszoba található.
- A fürdőszobákból az egyik kádas, míg kettő zuhanyzós kivitelezésű.
- A családi házban egy háztartási helyiség is ki lett alakítva, amit mosókonyhánk is lehet használni.
- A ház fűtése hőszivattyús rendszerrel történik, padlófűtésen keresztül.
- Központi szellőző rendszer és mennyezet hűssel van ellátva.
- 5 kW napelem
- H-tarifa
- Nyílászárók: 5 légkamrás műanyag nyílászárók, elektromosredőny előkészítéssel.
- A házhoz elektromos kapuval ellátott garázs tartozik, de a garázs előtt több autó parkolására is van lehetőség.
A családi ház kulcsrakész!
Ha felkeltette érdeklődését ez az eladó debreceni ikerház, vagy bármely más ikerház és bővebb információt szeretne, keressen bizalommal.
Hivatkozási szám: #180332
Az Openhouse Debrecen Hadházi úti Ingatlaniroda tagjaként várom Önt az országos hálózatunk teljes kínálatával.
A ikerház vásárláshoz hitelt igényelne? Ingyenes hitelközvetítéssel segít Önnek bankfüggetlen hitelszakértőnk.
További szolgáltatásainkkal (pl. értékbecslés, energetikai tanúsítvány, jogi háttér) is segítjük Önt a vásárlásban.
Az otthon érték. Az ingatlan üzlet.
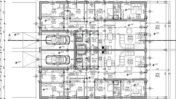
Helyiségek
| Helyiség | Alapterület | Padlóburkolat |
|---|---|---|
| Nappali | 28.00 m2 | Járólap |
| Amerikai konyha | 15.50 m2 | Járólap |
| Szoba | 9.92 m2 | Laminált padló |
| Szoba | 9.92 m2 | Laminált padló |
| Szoba | 9.70 m2 | Laminált padló |
| Szoba | 9.90 m2 | Laminált padló |
| Szoba | 12.90 m2 | Laminált padló |
| Fürdő | 5.70 m2 | Járólap |
| Zuhanyzó | 2.87 m2 | Járólap |
| Zuhanyzó | 3.75 m2 | Járólap |
| Közlekedő | 12.00 m2 | Járólap |
| Előszoba | 5.85 m2 | Járólap |
| Háztartási helyiség | 4.50 m2 | Járólap |
| Terasz | 34.00 m2 | Járólap |
| Garázs | 18.81 m2 | Járólap |
Alaprajz









Magyar 
