Mosonmagyaróvár, Eladó Társasházi lakás (#180290)
Mosonmagyaróváron eladó egy 47 m²-es, téglaépítésű, újszerű, amerikai konyha nappalis és 1 külön hálószobás lakás
Az Openhouse Mosonmagyaróvár Ingatlaniroda kínálatában eladó a #180290 hivatkozási számú mosonmagyaróvári társasházi lakás.
Mosonmagyaróvár belváros közeli, legjobb helyen lévő részén eladó egy 47 m²- es, stílusos, modern, fiatalos hangulatú társasházi lakás, amely kiváló elosztásával igazán kellemes, harmonikus otthont kínál.
A téglaépítésű, újszerű, amerikai konyha nappalis és 1 külön hálószobás lakás egy 2008. évben épült társasház földszintjén található. A napfényes terek, az amerikai konyhás nappali és a külön hálószoba kényelmes, jól élhető lakóteret biztosítanak.
A lakás központi élettere a tágas amerikai konyha–nappali, ahol a természetes fény, a nyitott tér kellemes, barátságos hangulatot teremt, a főzés, a beszélgetések és a mindennapi élet természetes találkahelye!
A nappali és a teljes lakás kellemes hőmérsékletét még a legmelegebb nyári napokon is biztosítja a pár éve üzembe helyezett hűtő-fűtő klíma.
A fűtésről és a melegvíz ellátásáról a legmodernebb, leggazdaságosabb saját kondenzációs kazán gondoskodik!
A lakás kiváló benapozottságának köszönhetően pedig a helyiségek egész nap világosak és barátságosak.
Praktikus megoldás, hogy a WC külön helyiségben található, ami a mindennapos komfortot tovább növeli.
A teljes méretű ablakkal rendelkező külön hálószoba nyugodt elvonulási lehetőséget, meghitt pihenést biztosít!
A lakás felújított állapotú, azonnal költözhető!
-
Tágas konyha étkezővel, nappalival
-
Fürdőszoba zuhanyzóval
-
Külön WC
-
Külön hálószoba
-
Hűtő - fűtő klíma
-
Tégla falazat és beton födém
A társasház előtt ingyenes parkolást biztosító parkoló található a gépkocsik számára, amely különösen értékes ebben a városban.
Lokáció szempontjából kiváló választás:
- Belvárosi lakás
- Közelben található több élelmiszerüzlet
- Iskola, óvoda, bölcsőde sétatávolságra található
- Lajta folyó 50 méterre csörgedezik
- A Vár közvetlen közelében helyezkedik el
- Éttermek, kávézók, cukrászdák, fagyizók a közelben
- Sétálóutca a szomszéd utcában
- Buszmegálló kettő perc sétára van, így a logisztika, közlekedés és életminőség szempontjából is ideális választás
A lakás ideális választás lehet első otthonnak, egyedülállóknak, fiatal pároknak, egy gyermekes családoknak, vagy akár befektetőknek, hiszen a jól kihasználható terek és a barátságos hangulat hosszú távon is értéket képviselnek.
Ha egy stílusos, modern, fiatalos hangulatú, napfényes, könnyen szerethető otthont keres, amely azonnal harmonikus hangulatot áraszt, érdemes személyesen is megtekinteni!
Ha felkeltette érdeklődését ez az eladó mosonmagyaróvári társasházi lakás, vagy bármely más társasházi lakás és bővebb információt szeretne, keressen bizalommal.
Hivatkozási szám: #180290
Az Openhouse Mosonmagyaróvár Ingatlaniroda tagjaként várom Önt az országos hálózatunk teljes kínálatával.
A társasházi lakás vásárláshoz hitelt igényelne? Ingyenes hitelközvetítéssel segít Önnek bankfüggetlen hitelszakértőnk.
További szolgáltatásainkkal (pl. értékbecslés, energetikai tanúsítvány, jogi háttér) is segítjük Önt a vásárlásban.
Az otthon érték. Az ingatlan üzlet.
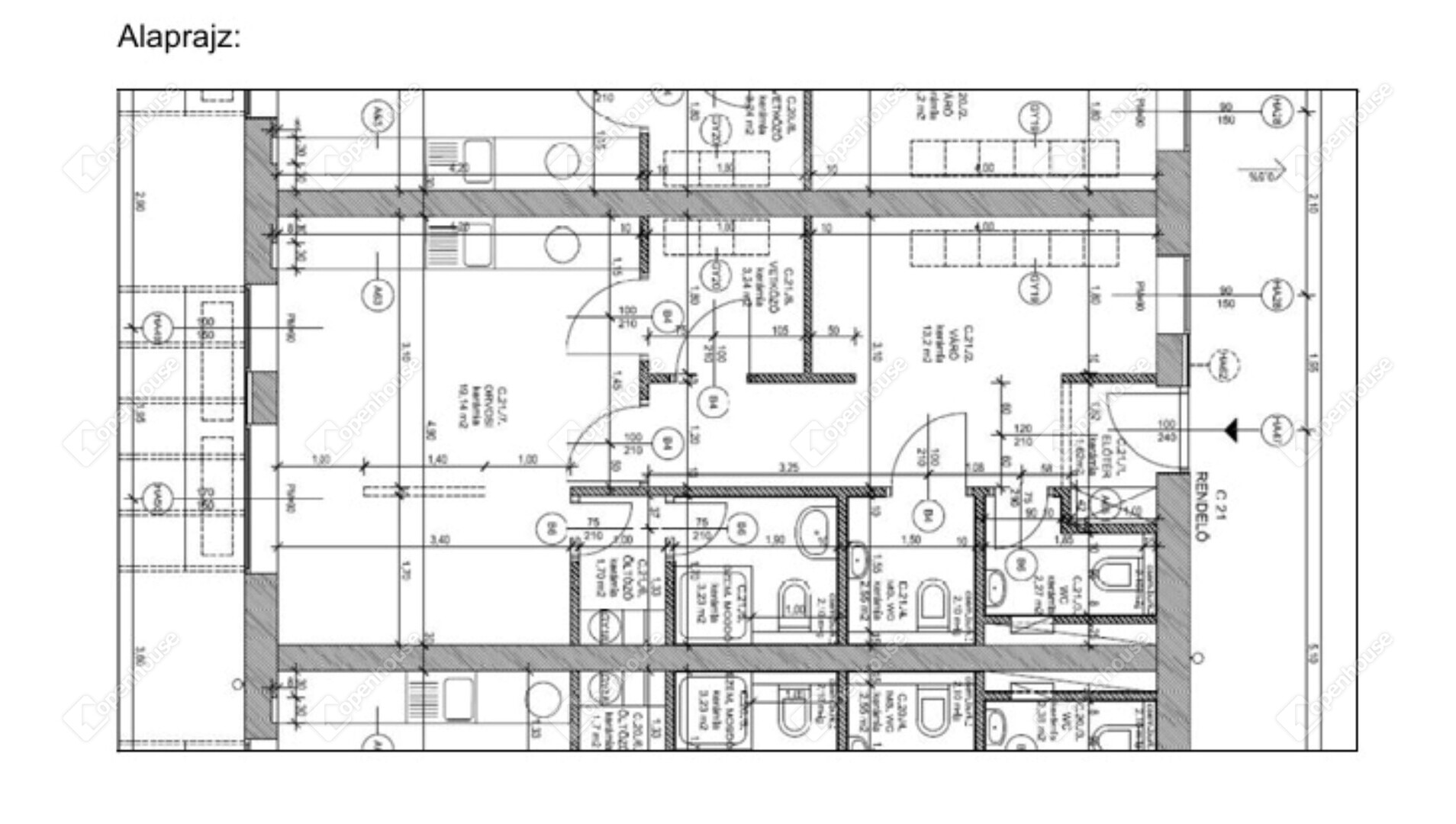
Helyiségek
| Helyiség | Alapterület | Padlóburkolat |
|---|---|---|
| Iroda | 19.14 m2 | |
| Iroda | 13.20 m2 | |
| Előtér | 1.62 m2 | |
| Előtér | 1.70 m2 | |
| mosdó | 3.23 m2 | |
| WC | 2.38 m2 | |
| WC | 2.55 m2 | |
| Tároló | 3.24 m2 |
Alaprajz


















Magyar 
