Győr, Eladó Családi ház (#180051)
Eladó családi ház Likócson!
Az Openhouse Győr - Belváros Ingatlaniroda kínálatában eladó a #180051 hivatkozási számú győri családi ház.
Új építésű, A+ energetikájú sorházi lakás Győr-Likócson
Győr-Likócs csendes, új kialakítású utcájában kínáljuk megvételre ezt a modern, kétszintes sorházi lakóegységet.
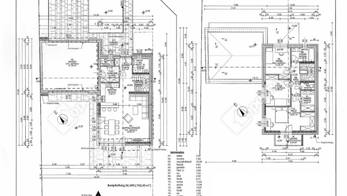
A lakás nettó 179,54 m² hasznos alapterületű, praktikus, családbarát elosztással:
-
tágas, 33 m²-es nappali-étkező
-
külön konyha + kamra
-
3 hálószoba
-
2 fürdőszoba + külön WC
-
gardrób és háztartási helyiség
-
loggia
-
egyállásos, közel 42 m²-es garázs
A telek területe 539 m², a tervezett zöldfelület aránya közel 60%, így valódi kertkapcsolatos otthonról beszélünk.
Műszaki tartalom:
-
levegő–víz hőszivattyús rendszer
-
padlófűtés
-
1x32 A nappali + 1x20 A H-tarifa
-
korszerű, rejtett villamos hálózat
Az ingatlan A+ energetikai besorolású, az összesített energetikai jellemző 67,24 kWh/m²/év, megfelel a közel nulla energiaigény követelményeinek.
Letisztult, lapostetős, modern megjelenés, zártsorú beépítés, nyugodt, falusias lakóövezetben.
Ideális választás családok számára, akik új építésű, korszerű, alacsony rezsijű otthont keresnek Győr egyik fejlődő városrészében.
Ha felkeltette érdeklődését ez az eladó győri családi ház, vagy bármely más családi ház és bővebb információt szeretne, keressen bizalommal.
Hivatkozási szám: #180051
Az Openhouse Győr - Belváros Ingatlaniroda tagjaként várom Önt az országos hálózatunk teljes kínálatával.
A családi ház vásárláshoz hitelt igényelne? Ingyenes hitelközvetítéssel segít Önnek bankfüggetlen hitelszakértőnk.
További szolgáltatásainkkal (pl. értékbecslés, energetikai tanúsítvány, jogi háttér) is segítjük Önt a vásárlásban.
Az otthon érték. Az ingatlan üzlet.
Helyiségek
| Helyiség | Alapterület | Padlóburkolat |
|---|---|---|
| Előtér | 7.27 m2 | Járólap |
| Konyha | 7.35 m2 | Járólap |
| Nappali | 32.89 m2 | Laminált padló |
| WC | 1.53 m2 | Járólap |
| Háztartási helyiség | 3.49 m2 | Járólap |
| Lépcsőház | 4.91 m2 | Járólap |
| Gardrób | 4.45 m2 | Járólap |
| Közlekedő | 4.32 m2 | Laminált padló |
| Szoba | 11.03 m2 | Faparketta |
| Fürdő | 5.11 m2 | Járólap |
| Szoba | 11.09 m2 | Laminált padló |
| Szoba | 18.81 m2 | Laminált padló |
| Fürdő | 4.42 m2 | Járólap |
| WC | 1.53 m2 | Járólap |
| Loggia | 4.49 m2 | |
| Garázs | 41.76 m2 | Járólap |
| Tornác | 15.09 m2 |
Alaprajz







Magyar 
