Siófok, Eladó Családi ház (#180045)
Az Openhouse Siófok kínálatában eladó a #180045 BO azonosítójú siófoki Családi ház.
Siófok új arcát keresed? Itt a lehetőség, ami nem vár örökké.
Eladó egy újépítésű, földszintes családi ház, ami messze túlmutat az átlagon.
Kulcsrakészen, minden részletében a minőség jegyében épült – nemcsak otthon, hanem tudatos választás, aki okosan költ, az most lép.
Itt nem marketing bullshit van, hanem tények, amik számítanak:
76 m² + terasz, 3 szoba + nappali-amerikai konyha
Fürdőszoba + külön WC, praktikus elrendezés, ahol minden négyzetcentiméter számít
Tartós 30-as porotherm falak, 15 cm homlokzati szigetelés, 25 cm födém szigetelés
Monoblock levegő-víz hőszivattyú, padlófűtéssel, 6 légkamrás, 3 rétegű üveges nyílászárók
Miért nem átlagos?
Saját kerítés, 2 autóbeálló, teljes tereprendezés
Mindegyik ház külön karakter, saját bejárattal
5 ház épül a telken, kivitelezés folyamatban, anyagok már a helyükön
Balaton 15 perc séta – de a zajtól távol, csendes, nyugodt környezet
Ez nem a szokásos ajánlat:
Modern technológia, energiatakarékos megoldások
Állandó otthonnak, nyaralónak vagy befektetésnek tökéletes
Játék a lehetőségekkel:
Balaton 15 perc séta – a naplementét élvezheted, de a nyugalom a tied marad
Maradsz a sablonos, unalmas ajánlatoknál, vagy megszerzed, ami tényleg érték?
Elég bátor vagy ahhoz, hogy ne a tömeg döntse el, milyen otthonban élsz?
Készen állsz a lépésre, vagy hagyod, hogy mások ragadják meg a lehetőséget előtted?
A tervdokumentáció és műszaki tartalom rendelkezésre áll – a játék kezdete a te kezedben van.
#eladasra_kinalunk #siofok #belvaros #aranyparti #szabadstrand #ujepitesu #foldszintes #onallo #csaladihaz #kulcsrakesz_atadas #eladohaz #siofok #eladohazsiofok
Ön is ingatlant keres? Válassza Irodánkat!
Amennyiben a #180045 BO azonosítójú, siófoki eladó Családi ház vagy bármely, az Openhouse hálózat kínálatában található ingatlan felkeltette érdeklődését, kérem, hívjon bizalommal!
SEGÍTÜNK, INTÉZZEN VELÜNK MINDENT EGY HELYEN!
Már megtalálta vagy még keresi „álmai otthonát”, de nem rendelkezik a megvásárlásához szükséges teljes vételárral?
Ne járjon bankról bankra!
Hitelszakértőnk, legyen szó akár piaci, akár államilag támogatott hitelről vagy vissza nem térítendő támogatásról, megtalálja az Önnek legmegfelelőbb egyedi konstrukciót.
Bankfüggetlen hitelügyintézőnk nagy szakmai tapasztalattal és a bankok ajánlatánál kedvezőbb lehetőségekkel segíti a Családi ház finanszírozását. Támogatja Önt a legkedvezőbb konstrukció kiválasztásában. Teljeskörűen összeállítja a hitelkérelmet, és a hitel folyósításáig végigkíséri az egész folyamatot.
CSOK-kal és Babaváró hitellel kapcsolatban is keressen minket bizalommal!
Kereső ügyfeleinknek a hitelközvetítői szolgáltatásaink ingyenesek.
Az otthon érték. Az ingatlan üzlet.
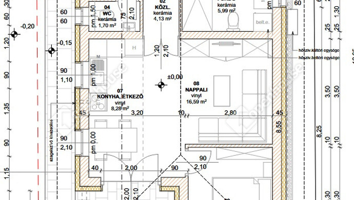
Helyiségek
| Helyiség | Alapterület | Padlóburkolat |
|---|---|---|
| Előszoba | 2.34 m2 | |
| Közlekedő | 6.47 m2 | |
| Fürdő | 5.99 m2 | |
| WC | 1.70 m2 | |
| Szoba | 9.24 m2 | |
| Szoba | 9.00 m2 | |
| Amerikai konyha | 8.28 m2 | |
| Nappali | 16.61 m2 | |
| Terasz | 17.00 m2 |
Alaprajz













Magyar 
