Siófok, Eladó Családi ház (#179986)
Az Openhouse Siófok kínálatában eladó a #179986 BO azonosítójú siófoki Családi ház.
Siófokon házat venni többféleképpen lehet.
Az egyik:
Vesz egy 20–30 éves ingatlant, majd felújítja. Idő, ideg, plusz költség.
A másik:
Belép egy társasházi projektbe, ahol falon túl is élnek.
És van a harmadik lehetőség.
Önálló, új építésű ház Siófok belvárosában. 15 perc sétára a Balatontól.
Nem lakás.
Nem iker.
Nem osztatlan közös telek.
Saját ház. Saját kerítés. Saját bejárat.
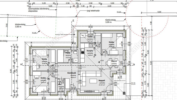
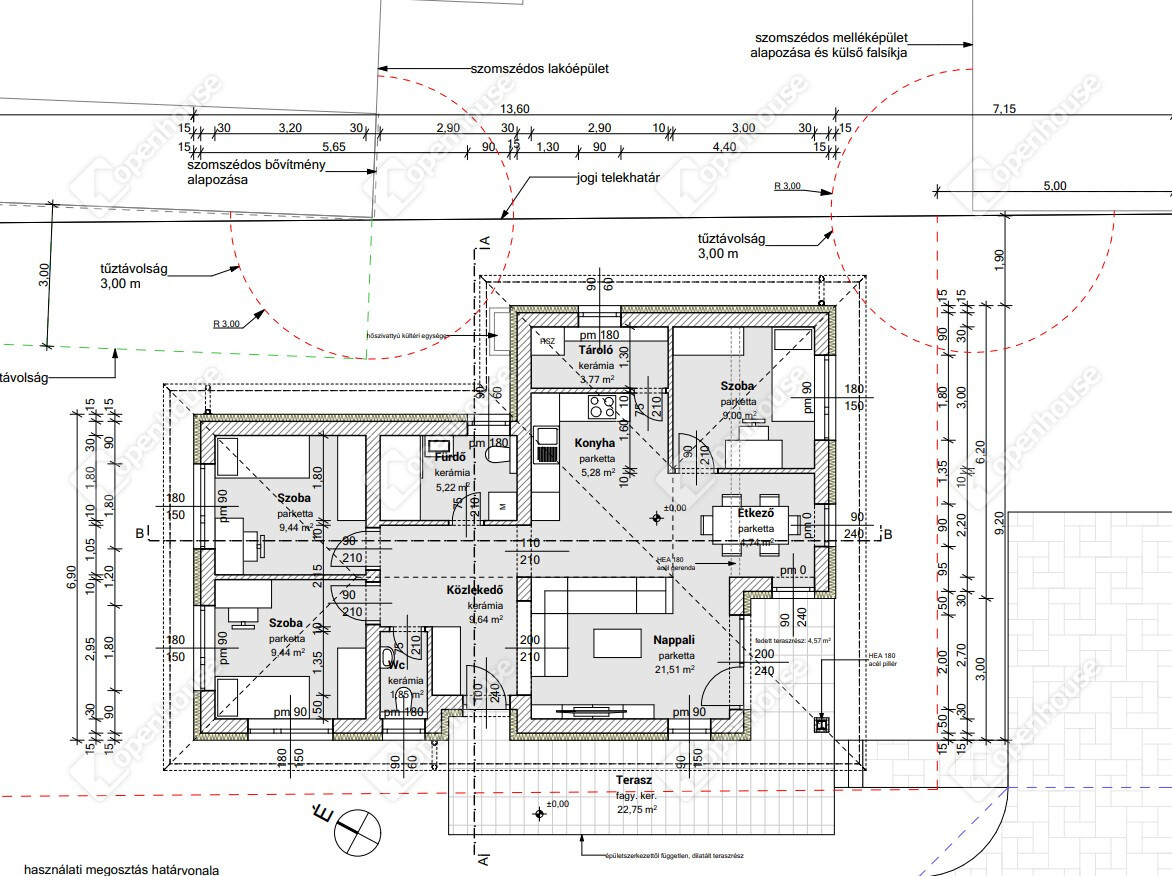
79,89 m²alapterület, átgondolt térszervezés + 22,75 m² terasz.
3 hálószoba.
Nappali–konyha-étkező valódi központként.
Fürdő + külön WC.
Tároló
Pont akkora, amekkorára valóban szükség van.
Fenntartható. Kiadásra is ideális. Állandó lakhatásra is kényelmes.
Ami számít (és ami a rezsiben látszik majd)
30 cm Porotherm falazat.
15 cm homlokzati szigetelés.
25 cm födémszigetelés.
3 rétegű nyílászárók.
Levegő–víz hőszivattyú.
Padlófűtés.
Ez nem marketinglista.
Ez hosszú távú költségkontroll.
A projekt léptéke tudatos:
- Öt darab önálló ház egy telken. saját kerttel, privát bejárattal.
- Nem lakópark.
- Nem tömeges beruházás.
Mindegyik:
– külön kerítéssel
– 2 autóbeállóval
– rendezett tereppel
A lokáció csendes erő:
Belváros.
Sétatávolság a Balaton.
Intézmények, üzletek perceken belül.
Mégsem főút mellett.
Mégsem turisztikai zajban.
Ez a fajta pozíció nem harsány —hanem időtálló.
Kinek szól?
Annak, aki:
– balatoni jelenlétet szeretne, nem balatoni kompromisszumot
– új építésű házat keres, nem felújítási projektet
– értékálló, jól kiadható ingatlant szeretne
– vagy egyszerűen egy elegáns, modern otthont Siófokon
Átadás: 2026 II. negyedév.
Az alapok elkészültek, az építőanyagok rendelkezésre állnak.
A burkolatok, szaniterek választhatók – a végső karakter az Ön döntése.
Ez nem a legnagyobb ház a piacon.
Nem is a leghangosabb.
Viszont azoknak szól, akik tudják:
a presztízs nem feltűnő — hanem magától értetődő.
#eladasra_kinalunk #siofok #belvaros #aranyparti #szabadstrand #ujepitesu #foldszintes #onallo #csaladihaz #kulcsrakesz_atadas #eladohaz #siofok #eladohazsiofok
Ön is ingatlant keres? Válassza Irodánkat!
Amennyiben a #179986 BO azonosítójú, siófoki eladó Családi ház vagy bármely, az Openhouse hálózat kínálatában található ingatlan felkeltette érdeklődését, kérem, hívjon bizalommal!
SEGÍTÜNK, INTÉZZEN VELÜNK MINDENT EGY HELYEN!
Már megtalálta vagy még keresi „álmai otthonát”, de nem rendelkezik a megvásárlásához szükséges teljes vételárral?
Ne járjon bankról bankra!
Hitelszakértőnk, legyen szó akár piaci, akár államilag támogatott hitelről vagy vissza nem térítendő támogatásról, megtalálja az Önnek legmegfelelőbb egyedi konstrukciót.
Bankfüggetlen hitelügyintézőnk nagy szakmai tapasztalattal és a bankok ajánlatánál kedvezőbb lehetőségekkel segíti a Családi ház finanszírozását. Támogatja Önt a legkedvezőbb konstrukció kiválasztásában. Teljeskörűen összeállítja a hitelkérelmet, és a hitel folyósításáig végigkíséri az egész folyamatot.
CSOK-kal és Babaváró hitellel kapcsolatban is keressen minket bizalommal!
Kereső ügyfeleinknek a hitelközvetítői szolgáltatásaink ingyenesek.
Az otthon érték. Az ingatlan üzlet.
Helyiségek
| Helyiség | Alapterület | Padlóburkolat |
|---|---|---|
| Terasz | 22.75 m2 | |
| Nappali | 21.25 m2 | |
| WC | 1.85 m2 | |
| Közlekedő | 9.64 m2 | |
| Szoba | 9.44 m2 | |
| Fürdő | 5.22 m2 | |
| Konyha | 5.28 m2 | |
| Étkező | 4.74 m2 | |
| Szoba | 9.00 m2 | |
| Tároló | 3.77 m2 |
Alaprajz










Magyar 
