Nagykovácsi, Eladó Családi ház (#179976)
Az Openhouse Budapest City Home Ingatlaniroda kínálatában eladó a #179976 BO azonosítójú nagykovácsi Családi ház.
Pest vármegyében, Nagykovácsi egyik keresett, nyugodt lakóövezetében kínálunk megvételre egy 209 m² hasznos alapterületű, korszerű kialakítású családi házat, 987 m²-es, parkosított telken. Az ingatlan kiváló választás nagycsaládosok, többgenerációs együttélésben gondolkodók vagy otthoni munkavégzéshez tágas életteret igénylők számára.
Ingatlan paraméterei:
2 nappali, 5 külön nyíló hálószoba, 3 fürdőszoba, 32,2 m²-es, kertkapcsolatos terasz, 16 m²-es és 11,5 m²-es erkély, déli tájolás, tehermentes jogi státusz.
Elrendezés és belső kialakítás:
A ház átgondolt alaprajzi struktúrával rendelkezik. A két nappali elkülöníthető funkciókat tesz lehetővé: reprezentatív fogadótér, családi élettér, dolgozószoba vagy hobbihelyiség egyaránt kialakítható. Az amerikai konyhás nappali tágas, természetes fénnyel bőségesen ellátott, közvetlen kapcsolatban áll a terasszal és a kerttel. A hálószobák szeparáltan helyezkednek el, biztosítva az intimitást és a zavartalan pihenést. A három fürdőszoba kényelmes használatot garantál akár nagyobb létszámú család számára is.
A déli fekvésnek köszönhetően a lakóterek egész nap világosak, energiahatékonysági szempontból is kedvező adottságúak.
Műszaki tartalom: gáz cirkó fűtési rendszer, split klímaberendezés, jó műszaki és esztétikai állapot.
Külső terek:
A gondozott, intim kert ideális gyermekes családok számára, valamint szabadtéri pihenésre, kerti rendezvényekre. A terasz és a két erkély további használható életteret biztosít, panorámás kilátással a zöld környezetre.
Ön is ingatlant keres? Válassza Irodánkat!
Amennyiben a #179976 BO azonosítójú, nagykovácsi eladó Családi ház vagy bármely, az Openhouse hálózat kínálatában található ingatlan felkeltette érdeklődését, kérem, hívjon bizalommal!
SEGÍTÜNK, INTÉZZEN VELÜNK MINDENT EGY HELYEN!
Már megtalálta vagy még keresi „álmai otthonát”, de nem rendelkezik a megvásárlásához szükséges teljes vételárral?
Ne járjon bankról bankra!
Hitelszakértőnk, legyen szó akár piaci, akár államilag támogatott hitelről vagy vissza nem térítendő támogatásról, megtalálja az Önnek legmegfelelőbb egyedi konstrukciót.
Bankfüggetlen hitelügyintézőnk nagy szakmai tapasztalattal és a bankok ajánlatánál kedvezőbb lehetőségekkel segíti a Családi ház finanszírozását. Támogatja Önt a legkedvezőbb konstrukció kiválasztásában. Teljeskörűen összeállítja a hitelkérelmet, és a hitel folyósításáig végigkíséri az egész folyamatot.
CSOK-kal és Babaváró hitellel kapcsolatban is keressen minket bizalommal!
Kereső ügyfeleinknek a hitelközvetítői szolgáltatásaink ingyenesek.
Az otthon érték. Az ingatlan üzlet.
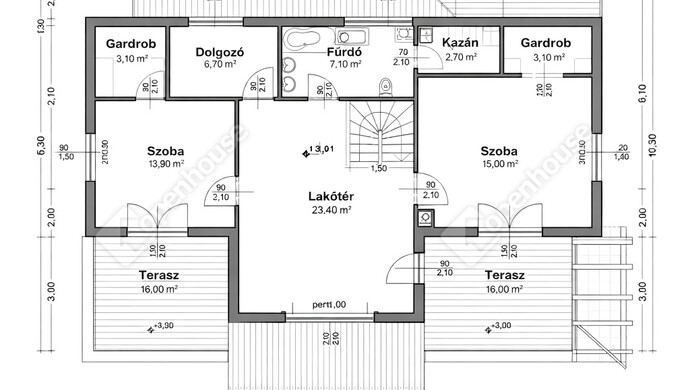
Helyiségek
| Helyiség | Alapterület | Padlóburkolat |
|---|---|---|
| Nappali | 25.20 m2 | |
| Étkező | 10.90 m2 | |
| Konyha | 10.90 m2 | |
| Szoba | 17.80 m2 | |
| Szoba | 9.70 m2 | |
| Fürdő | 7.60 m2 | |
| Fürdő | 3.60 m2 | |
| Gardrób | 4.80 m2 | |
| Előszoba | 10.70 m2 | |
| Kamra | 1.20 m2 | |
| Garázs | 19.20 m2 | |
| Nappali | 23.40 m2 | |
| Szoba | 13.90 m2 | |
| Szoba | 16.00 m2 | |
| Szoba | 6.70 m2 | |
| Fürdő | 7.10 m2 | |
| Gardrób | 3.10 m2 | |
| Gardrób | 4.00 m2 | |
| Háztartási helyiség | 2.50 m2 | |
| Erkély | 16.00 m2 | |
| Erkély | 11.50 m2 | |
| Tároló | 10.90 m2 |
Alaprajz




















Magyar
Angol 
