Hajdúsámson, Eladó Ikerház (#179708)
Sámsonkertben ikerház eladó
Az Openhouse Debrecen Hadházi úti Ingatlaniroda kínálatában eladó a #179708 hivatkozási számú hajdúsámsoni ikerház.
Prémium minőségű, új építésű ikerház Sámsonkertben, exkluzív otthon nyugodt környezetben
-
A 492 m²-es saját telekrész rendezett, térkövezett kocsibeállóval és kialakított közlekedőfelületekkel várja új tulajdonosát.
-
Építési módja, tégla, 12cm grafitos szigeteléssel, a tető héjazata cseréppel ellátott.
-
Gázkazános fűtési rendszer, a közös helyiségekben padlófűtés, a privát hálószobákban radiátoros hőleadás kerül kiépítésre.
-
Korszerű, hőszigetelt nyílászárók, energiahatékony megoldás az alacsony rezsiköltség érdekében.
-
Napelem előkészítés az egyszerűbb kiépítés érdekében
-
Kémény megépítése, amennyiben kandallót szeretnének építeni a nappaliban
-
A kertkapcsolat ideális lehetőséget nyújt pihenésre, kertészkedésre vagy családi programok szervezésére.
-
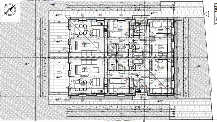
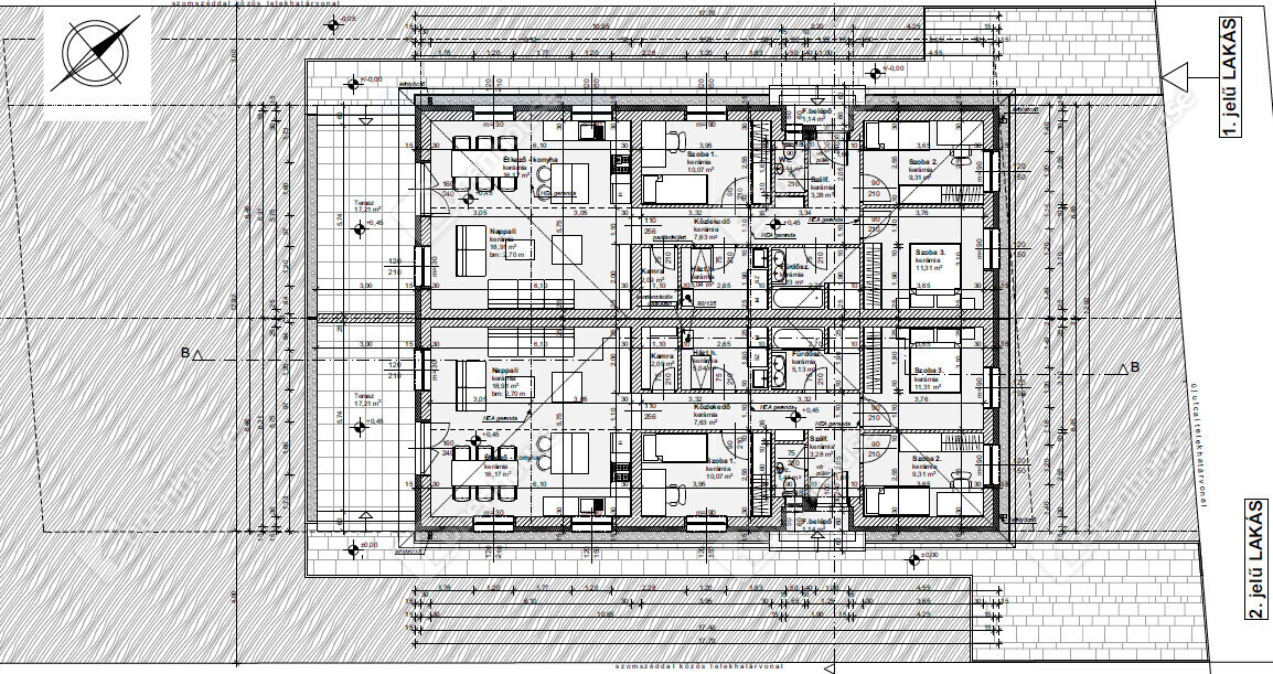
A lakótér 90m2 hasznos alapterülettel rendelkezik
-
A központi térben egy világos, 35m2-es amerikai konyhás nappali kap helyet, amely a családi élet központja lehet.
-
Található a házban 3 hálószoba, aminek méretei : 10m2, 9.3m2, illetve 11.3m2.
-
Megtalálható egy fürdőszoba Wc-vel és egy külön Wc.
-
Helyet kapott egy 2m2-es kamra és egy 5m2-es háztartási helyiség is házban.
-
Az ikerház részét képezi még egy 17m2-es terasz, ami tökéletes helyszínt biztosít a mindennapokhoz és a vendégfogadáshoz egyaránt, miközben a beltéri és a kültéri terek harmonikusan összekapcsolódnak.
-
A műszaki megoldások célja nem csak a kényelem, hanem a hosszú távú gazdaságos fenntarthatóság is.
-
Ez az ikerház nem csupán egy ingatlan, hanem egy tudatosan megtervezett élettér, amely megfelel a modern elvárásoknak, miközben értékálló befektetésként is megállja a helyét.
-
Keressen bizalommal, ha egy nyugodt, meleg otthont keres családja számára.
Ha felkeltette érdeklődését ez az eladó hajdúsámsoni ikerház, vagy bármely más ikerház és bővebb információt szeretne, keressen bizalommal.
Hivatkozási szám: #179708
Az Openhouse Debrecen Hadházi úti Ingatlaniroda tagjaként várom Önt az országos hálózatunk teljes kínálatával.
A ikerház vásárláshoz hitelt igényelne? Ingyenes hitelközvetítéssel segít Önnek bankfüggetlen hitelszakértőnk.
További szolgáltatásainkkal (pl. értékbecslés, energetikai tanúsítvány, jogi háttér) is segítjük Önt a vásárlásban.
Az otthon érték. Az ingatlan üzlet.
Helyiségek
| Helyiség | Alapterület | Padlóburkolat |
|---|---|---|
| Amerikai konyha | 35.00 m2 | Járólap |
| Szoba | 10.00 m2 | Laminált padló |
| Szoba | 9.00 m2 | Laminált padló |
| Szoba | 11.00 m2 | Laminált padló |
| Fürdő | 5.00 m2 | Járólap |
| WC | 1.00 m2 | Járólap |
| Kamra | 2.00 m2 | Járólap |
| Háztartási helyiség | 5.00 m2 | Járólap |
| Terasz | 17.00 m2 | Járólap |
Alaprajz







Magyar 
