Budapest XII. Ker., Eladó Téglaépítésű lakás (#179673)
Az Openhouse Budapest City Home Ingatlaniroda kínálatában eladó a #179673 BO azonosítójú Budapest XII. kerületi Téglaépítésű lakás.
Fényben élő terek, zöldre nyíló reggelek és egy otthon, amely egyszerre ad lendületet és nyugalmat. Üdv itthon!
RÖVID ÖSSZEFOGLALÓ
Budapesten, a XII. kerületben, a Városmajor mellett, az Ignotus utcában, egy felújított, liftes, klasszikus társasház felső szintjén található, 2018-ban ráépítéssel kialakított, 102 m²-es + 7 m² teraszos, kétszintes (duplex) lakás, praktikus pinceszinti tárolóval.
LOKÁCIÓ
A lakás Budapest XII. kerületében, a Városmajor közvetlen környezetében, az Ignotus utcában helyezkedik el – ott, ahol a városi infrastruktúra és a zöldfelületek ritka egyensúlyban vannak. A Városmajor Park néhány lépésre található, így a mindennapok üdítő része lehet a park közelsége, miközben a Széll Kálmán tér mindössze pár perc sétával elérhető.
A környék kiváló közlekedési kapcsolatokkal rendelkezik (M2 metró, villamos- és buszhálózat), a Mammut Bevásárlóközpont szolgáltatásai pedig szintén gyalogos távolságon belül vannak. A Budai Várnegyed közelsége tovább erősíti a lokáció hosszú távú értékállóságát és élhetőségét.
LAKÁS
Kétszintes (duplex) kialakításával, tágas és szellős lakótereivel, valamint teraszával ez az otthon 2018-ban, ráépítéssel készült, tudatos tervezéssel, világos struktúrával és jól működő térarányokkal. A nagy belmagasság és a nagyméretű nyílászárók természetes fényt engednek be egész nap, ami érzetben lendületet és átláthatóságot ad a lakás minden pontján – különösen az alsó szint nyitott nappali–étkező–konyha terében.
Az alsó szinten egy olyan élettér alakul ki, ahol könnyű mozogni, együtt lenni és döntéseket hozni. Logikusan kapcsolódik egymáshoz a modern, teljesen gépesített konyha, az étkező és a nappali, így a tér egyszerre hatékony és befogadó. Meleg hangulati fókuszpontként jelenik meg a fatüzelésű kandalló, amely karaktert ad a térnek, miközben a nappali továbbra is jól használható marad vendégfogadáshoz vagy egy csendesebb estére.
Üvegfallal leválasztott szoba szolgál vendégszobaként vagy dolgozótérként – elkülöníthető, mégis vizuálisan kapcsolódó megoldásként, amely rugalmasan alkalmazkodik az aktuális élethelyzethez. Ezen a szinten található a zuhanyzós fürdőszoba padlófűtéssel és bidével, valamint egy külön háztartási/tároló helyiség, amely rendet, kontrollt és kényelmet visz a mindennapokba.
Felül már egyértelműen a visszavonulás és a fókusz kap szerepet. A galériás dolgozótér után érkezünk a hálószobába, ahonnan panorámás kilátás nyílik a Városmajor zöldjére és a Budai-hegyekre – egyszerre inspiráló és megnyugtató perspektívát adva. A walk-in gardrób és a második, ablakos, zuhanyzós fürdőszoba tisztán elkülöníti a privát zónát, miközben a tér érzetében továbbra is nyitott marad.
Végig tölgyfa parketta ad természetes, időtálló alapot a belső tereknek, harmonikus összhangban a fürdőszobák letisztult, modern burkolataival.
A mindennapi komfortot gázos padlófűtés, szintenként 2-2 klímaberendezés, elektromos redőnyök és tetőtéri ablakok biztosítják – minden ott van, ami szükséges, felesleges túlzás nélkül.
Pinceszinti tároló, riasztórendszer és ajtónyitós kaputelefon gondoskodnak a biztonságról és a kiszámíthatóságról, miközben az otthon egységes rendszerként, magabiztosan működik.
FONTOS!
- A lakás hangulata, téraránya és valódi miliője videón keresztül érzékelhető igazán.
Érdemes megtekinteni a bemutatóvideót, mert sokkal pontosabban adja vissza a terek arányait, a fények játékát és azt az atmoszférát, amely élőben is meghatározza ezt az otthont.
- A vételár tartalma:
A vételár kizárólag a beépített bútorokat és beépített gépeket tartalmazza.
Az ingatlanban található egyéb berendezési és használati tárgyak – beleértve a nem beépített gépeket, lámpákat, bútorokat és dekorációs elemeket – külön megállapodás alapján megvásárolhatók.
Ha olyan otthont keres, amely élhető, átgondolt és hosszú távon is értékálló, érdemes ezt a lakást személyesen is megnézni – időpont-egyeztetésért keressen bizalommal.
------------------------------------------------------------
Díjmentes, bankfüggetlen hiteltanácsadással támogatjuk vevő ügyfeleinket a számukra legelőnyösebb finanszírozási döntések meghozatalában. Opcionálisan igénybe vehető kiegészítő szolgáltatásainkkal – mint ügyvédi közreműködés, energetikai tanúsítvány vagy villamos biztonsági felülvizsgálat – teljes körű szakmai támogatást nyújtunk az adásvétel folyamatának minden egyes lépésénél.
------------------------------------------------------------
A hirdetésben szereplő információk tájékoztató jellegűek. A tévedés és az árváltoztatás jogát fenntartjuk. Az esetleges elírásokért és technikai hibákért felelősséget nem vállalunk.
Ön is ingatlant keres? Válassza Irodánkat!
Amennyiben a #179673 BO azonosítójú, Budapest XII. kerületi eladó Téglaépítésű lakás vagy bármely, az Openhouse hálózat kínálatában található ingatlan felkeltette érdeklődését, kérem, hívjon bizalommal!
SEGÍTÜNK, INTÉZZEN VELÜNK MINDENT EGY HELYEN!
Már megtalálta vagy még keresi „álmai otthonát”, de nem rendelkezik a megvásárlásához szükséges teljes vételárral?
Ne járjon bankról bankra!
Hitelszakértőnk, legyen szó akár piaci, akár államilag támogatott hitelről vagy vissza nem térítendő támogatásról, megtalálja az Önnek legmegfelelőbb egyedi konstrukciót.
Bankfüggetlen hitelügyintézőnk nagy szakmai tapasztalattal és a bankok ajánlatánál kedvezőbb lehetőségekkel segíti a Téglaépítésű lakás finanszírozását. Támogatja Önt a legkedvezőbb konstrukció kiválasztásában. Teljeskörűen összeállítja a hitelkérelmet, és a hitel folyósításáig végigkíséri az egész folyamatot.
CSOK-kal és Babaváró hitellel kapcsolatban is keressen minket bizalommal!
Kereső ügyfeleinknek a hitelközvetítői szolgáltatásaink ingyenesek.
Az otthon érték. Az ingatlan üzlet.
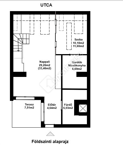
Helyiségek
| Helyiség | Alapterület | Padlóburkolat |
|---|---|---|
| Előszoba | 4.60 m2 | |
| Fürdő | 6.00 m2 | |
| Terasz | 7.50 m2 | |
| Nappali | 29.20 m2 | |
| Gardrób | 6.60 m2 | |
| Szoba | 10.10 m2 | |
| Lépcsőház | 3.71 m2 | |
| Közlekedő | 13.26 m2 | |
| Gardrób | 5.25 m2 | |
| Fürdő | 4.70 m2 | |
| Szoba | 18.05 m2 |
Alaprajz























Magyar
Angol 
