Budapest VI. Ker., Eladó Téglaépítésű lakás (#179578)
Az Openhouse Budapest City Home Ingatlaniroda kínálatában eladó a #179578 BO azonosítójú Budapest VI. kerületi Téglaépítésű lakás.
VI.ker. Karnyújtásnyira az Operaháztól, a Zichy Jenő utcában eladó igényesen, ötletesen felújított otthon.
A pesti Broadway közelében élvezze a pezsgő városi életet és az otthon nyugalmát egyszerre!
- 63 nm-es loft lakás,
- teljeskörűen, igényesen felújított,
- földszinti,
- utcai nézetű,
- cirkó fűtéses, (a kazán 2025-ben cserélve)
- 1 nappali + 1 hálószoba + 1 galéria
- 1 fürdőszoba + 1 WC,
- DK-i tájolás,
- közös költség 28.000 Ft
- azonnal költözhető.,
- tehermentes,
Az ingatlan tömegközlekedéssel könnyen megközelíthető.
Az Andrássy út 1 percre séta, a Kisföldalatti, a 70-es és 78-as trolibuszok, a 4-es, 6-os villamosok is pár perc alatt elérhetők
Ön is ingatlant keres? Válassza Irodánkat!
Amennyiben a #179578 BO azonosítójú, Budapest VI. kerületi eladó Téglaépítésű lakás vagy bármely, az Openhouse hálózat kínálatában található ingatlan felkeltette érdeklődését, kérem, hívjon bizalommal!
SEGÍTÜNK, INTÉZZEN VELÜNK MINDENT EGY HELYEN!
Már megtalálta vagy még keresi „álmai otthonát”, de nem rendelkezik a megvásárlásához szükséges teljes vételárral?
Ne járjon bankról bankra!
Hitelszakértőnk, legyen szó akár piaci, akár államilag támogatott hitelről vagy vissza nem térítendő támogatásról, megtalálja az Önnek legmegfelelőbb egyedi konstrukciót.
Bankfüggetlen hitelügyintézőnk nagy szakmai tapasztalattal és a bankok ajánlatánál kedvezőbb lehetőségekkel segíti a Téglaépítésű lakás finanszírozását. Támogatja Önt a legkedvezőbb konstrukció kiválasztásában. Teljeskörűen összeállítja a hitelkérelmet, és a hitel folyósításáig végigkíséri az egész folyamatot.
CSOK-kal és Babaváró hitellel kapcsolatban is keressen minket bizalommal!
Kereső ügyfeleinknek a hitelközvetítői szolgáltatásaink ingyenesek.
Az otthon érték. Az ingatlan üzlet.
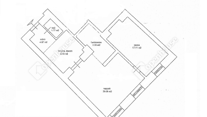
Helyiségek
| Helyiség | Alapterület | Padlóburkolat |
|---|---|---|
| Előszoba | 4.07 m2 | |
| WC | 1.77 m2 | |
| Fürdő | 6.93 m2 | |
| Amerikai konyha | 9.43 m2 | |
| Szoba | 17.11 m2 | |
| Nappali | 25.05 m2 | |
| 6.93 m2 |
Alaprajz






















Magyar 
