Székesfehérvár, Eladó Társasházi lakás (#179364)
Indul a 4. ütem a Harmatosvölgy Déli oldalán!!!
Az Openhouse Székesfehérvár Ingatlaniroda kínálatában eladó a #179364 hivatkozási számú székesfehérvári társasházi lakás.
Eladó új építésű Otthon Start kompatibilis, tégla lakások, Székesfehérvár újonnan épülő városrészén, a déli oldalon 4. ütemében, a Harmatosvölgyben.
A folyamatosan fejlődő családi házas lakópark közepén, 2026. májusi kezdéssel, 39 lakás fog megépülni az 4. ütemben.
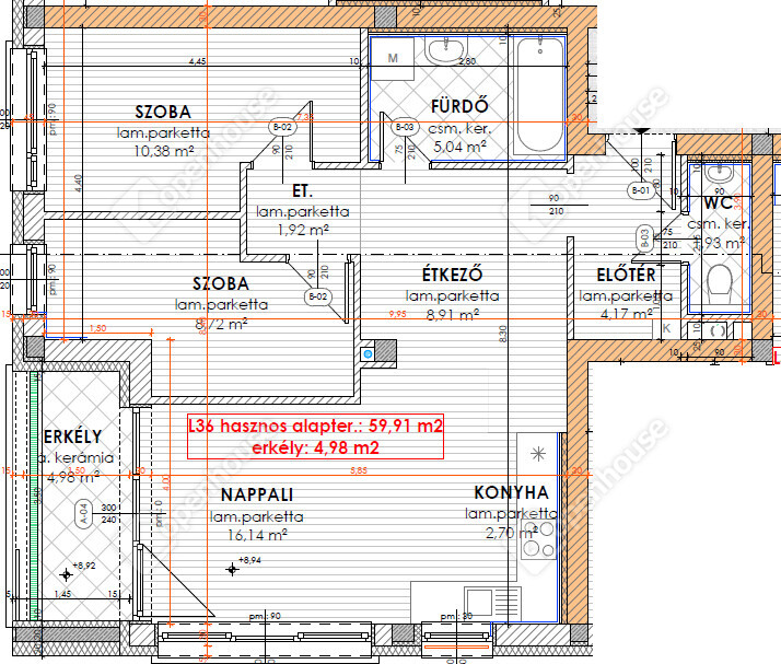
L36- es társasházi lakás jellemzői:
- 30 cm tégla falak, 10 cm tégla válaszfalak,
- saját kondenzációs gázkazán, radiátoros hőleadással
- háromrétegű műanyag nyílászárók, 10 cm-es hőszigetelés
- egy beállóhely jár a lakáshoz, ez benne van az árban
- modern megjelenés
Lakás:
- nettó 59,91 m2-es lakás + 4,98 m2-es fedett erkély
- nappali-konyha-étkező, 2 hálószoba, fürdő és wc
- III. emeleti, liftes, zárt lépcsőház
Ha nagyobbat vagy kisebbet keresne, abban is tudok segíteni!
Ha szívesebben lakna Székesfehérvár egyik zöldebb részében, inkább elkerülné a zsúfolt, panel lakótelepeket és nem szeretne egy 40 éves társasházban lévő lakás felújításával vesződni, ez a 2026-be épülő társasházas kiváló választás Önnek! Befektetőknek és igazából minden korosztály számára megfelelő, a kislakásoktól a 3 szobásig terjedően minden igényt kielégít. Itt ötvözve van az új, modern dizájn a mai igényeknek megfelelő kialakítással, az Ön álmai otthonának megvalósításához!
Székesfehérvári ingatlaniroda eladásra kínálja a Harmatosvölgyben épülő, 39 lakásos, társasházi lakásait!
Ha felkeltette érdeklődését ez az eladó székesfehérvári társasházi lakás, vagy bármely más társasházi lakás és bővebb információt szeretne, keressen bizalommal.
Hivatkozási szám: #179364
Az Openhouse Székesfehérvár Ingatlaniroda tagjaként várom Önt az országos hálózatunk teljes kínálatával.
A társasházi lakás vásárláshoz hitelt igényelne? Ingyenes hitelközvetítéssel segít Önnek bankfüggetlen hitelszakértőnk.
További szolgáltatásainkkal (pl. értékbecslés, energetikai tanúsítvány, jogi háttér) is segítjük Önt a vásárlásban.
Az otthon érték. Az ingatlan üzlet.
Helyiségek
| Helyiség | Alapterület | Padlóburkolat |
|---|---|---|
| Előtér | 4.17 m2 | Laminált padló |
| Nappali | 16.14 m2 | Laminált padló |
| Konyha | 2.70 m2 | Laminált padló |
| Étkező | 8.91 m2 | Laminált padló |
| Előtér | 1.92 m2 | Laminált padló |
| Szoba | 10.38 m2 | Laminált padló |
| Szoba | 8.72 m2 | Laminált padló |
| Fürdő | 5.04 m2 | Járólap |
| WC | 1.93 m2 | Járólap |
| Erkély | 4.98 m2 | Járólap |
Alaprajz








Magyar 
