Dunaharaszti, Eladó Családi ház (#179097)
Az Openhouse Monor Ingatlaniroda kínálatában eladó a #179097 BO azonosítójú dunaharaszti Családi ház.
Luxus és kényelem Dunaharaszti szívében – Okos Otthon két generáció számára!
Eladó Dunaharasztin egy 220 nm +90 nm (Műhely, kétállásos garázs, egyállásos garázs,) +60 nm (pince,Terasz, nyári sütügető) , 5 szobás, prémium felszereltségű családi ház 1235 m²-es, körbekerített telken, amely Okos Otthon technológiával és kivételes extrákkal kínál biztonságot akár két generáció számára is.
Okos Otthon vezérlés – applikáción keresztül irányítható:
külső-belső világítás,konnektorok, garázskapuk, szivattyúk, medence vízforgató, klímák, kamera- és riasztórendszer.
Kiemelt extrák:
Napkollektorral fűtött medence
Fedett, kemencés kerti sütögető igényes kialakítással
2 állásos + 1 állásos garázs, műhely
3 hűtő-fűtő klíma, thermó üveges nyílászárók redőnnyel és szúnyoghálóval
Minőségi belső és külső ajtók, 10 cm homlokzati szigetelés, kőzetgyapot tetőtéri szigetelés
Gépesített, modern konyha
Öntöző rendszer
Kaputelefon, füst- és CO-érzékelő, teljes riasztó- és kamerarendszer
Elhelyezkedés és infrastruktúra:
Dunaharaszti Budapesttől mindössze fél órára található, M0, M1, M3, M4, M5, M7 autópályák gyors elérésével. A település kiváló infrastruktúrával rendelkezik: óvodák, iskolák, bevásárlóközpontok (Lidl, Tesco, Aldi, Rossmann, DM), piac, orvosi és magánorvosi rendelők, éttermek, szépségszalonok, valamint a Duna-part közelsége, ahol számos vízi sport és kikapcsolódási lehetőség adott.
Ez a ház a kényelem, a luxus és a modern technológia tökéletes harmóniája – ideális választás, ha egy igazán különleges otthont keres családja számára.
Ön is ingatlant keres? Válassza Irodánkat!
Amennyiben a #179097 BO azonosítójú, dunaharaszti eladó Családi ház vagy bármely, az Openhouse hálózat kínálatában található ingatlan felkeltette érdeklődését, kérem, hívjon bizalommal!
SEGÍTÜNK, INTÉZZEN VELÜNK MINDENT EGY HELYEN!
Már megtalálta vagy még keresi „álmai otthonát”, de nem rendelkezik a megvásárlásához szükséges teljes vételárral?
Ne járjon bankról bankra!
Hitelszakértőnk, legyen szó akár piaci, akár államilag támogatott hitelről vagy vissza nem térítendő támogatásról, megtalálja az Önnek legmegfelelőbb egyedi konstrukciót.
Bankfüggetlen hitelügyintézőnk nagy szakmai tapasztalattal és a bankok ajánlatánál kedvezőbb lehetőségekkel segíti a Családi ház finanszírozását. Támogatja Önt a legkedvezőbb konstrukció kiválasztásában. Teljeskörűen összeállítja a hitelkérelmet, és a hitel folyósításáig végigkíséri az egész folyamatot.
CSOK-kal és Babaváró hitellel kapcsolatban is keressen minket bizalommal!
Kereső ügyfeleinknek a hitelközvetítői szolgáltatásaink ingyenesek.
Az otthon érték. Az ingatlan üzlet.
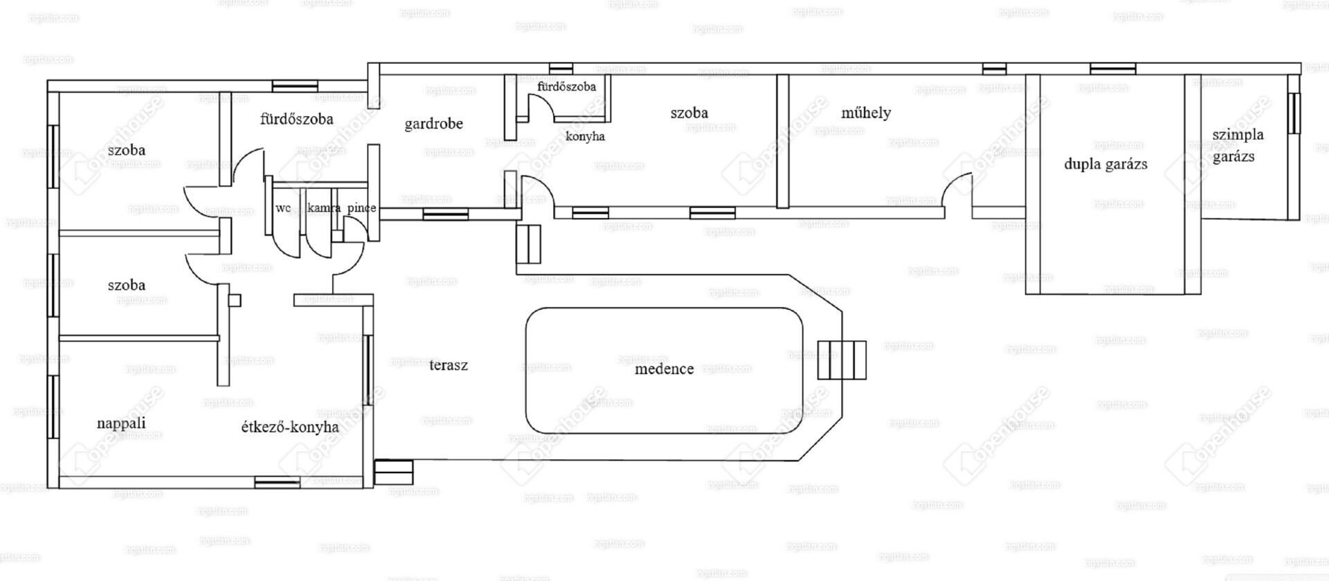
Helyiségek
| Helyiség | Alapterület | Padlóburkolat |
|---|---|---|
| Előszoba | 5.75 m2 | |
| WC | 1.00 m2 | |
| Kamra | 3.60 m2 | |
| Pince | 15.00 m2 | |
| Amerikai konyha | 21.00 m2 | |
| Nappali | 18.80 m2 | |
| Szoba | 13.50 m2 | |
| Szoba | 18.00 m2 | |
| Fürdő | 8.00 m2 | |
| Gardrób | 16.00 m2 | |
| Fürdő | 3.20 m2 | |
| Amerikai konyha | 20.00 m2 | |
| Tároló | 32.00 m2 | |
| Garázs | 40.30 m2 | |
| Garázs | 16.80 m2 | |
| Terasz | 25.00 m2 | |
| Közlekedő | 2.10 m2 | |
| Háztartási helyiség | 25.00 m2 |
Alaprajz













































Magyar 
