Érd, Eladó Ikerház (#179094)
Az Openhouse Budapest City Home Ingatlaniroda kínálatában eladó a #179094 BO azonosítójú érdi Ikerház.
Érd-Parkváros csendes utcájában új építésű, nettó 187 m2-es, amerikai konyhás nappalival, 3 hálószobával, 2 fürdőszobával, kiszolgáló helyiségekkel, garázzsal, nagy terasszal ikerház eladó!
Az épület formavilága rendkívül impozáns. Egyedi módon, szinteltolással kapcsolódik egymáshoz a két ház. Az ingatlant átgondolt, praktikus alaprajz, magas minőségű kivitelezés, modern, minden igényt kielégítő felszereltség jellemzi. Elhelyezkedése rendkívül csendes, zöld. Egy zsák utca végén, természetvédelmi terület szélén van, ami intimmé teszi. A hatalmas nyílászáróknak köszönhetően a ház világos, napos, szép kilátás van a környező erdős hegyekre. Az 57 m2-es terasz és a hozzákapcsolódó saját kertrész tökéletes helyet biztosít a kellemes pihenésre, kikapcsolódásra.
A 2 épületnek csak a garázs szinten van közös fala. A házak 30 cm vastag Porotherm falazóelemekből épültek, 20 cm Dryvit rendszerű hőszigeteléssel.
A fűtést Daikin hőszivattyús rendszer biztosítja, mennyezeti hűtés-fűtéssel és padlófűtéssel.
A nyílászárók antracit színűek, fa, 3 rétegű, bukó-nyíló ablakok és nagy méretű toló teraszajtó, rejtett tokozással, elektromos redőnnyel, illetve zsalúziával.
A burkolatok, szaniterek és belső ajtók kiemelkedő minőségben, az átlagnál magasabb áron választhatók.
Az egyéb extra felszereltséget is tartalmazó részletes műszaki tartalmat komoly érdeklődés esetén rendelkezésére bocsájtjuk.
A beruházó cég megbízható, és számos referencia munkával rendelkezik.
Az utca rendezett, új építésű házakkal. Pár perc alatt elérhető minden szolgáltatás, iskola, óvoda, tömegközlekedés, bevásárlási lehetőség.
Várható átadás: 2026. II. negyedév
További információkkal kapcsolatban kérem hívjon bizalommal!
Ön is ingatlant keres? Válassza Irodánkat!
Amennyiben a #179094 BO azonosítójú, érdi eladó Ikerház vagy bármely, az Openhouse hálózat kínálatában található ingatlan felkeltette érdeklődését, kérem, hívjon bizalommal!
SEGÍTÜNK, INTÉZZEN VELÜNK MINDENT EGY HELYEN!
Már megtalálta vagy még keresi „álmai otthonát”, de nem rendelkezik a megvásárlásához szükséges teljes vételárral?
Ne járjon bankról bankra!
Hitelszakértőnk, legyen szó akár piaci, akár államilag támogatott hitelről vagy vissza nem térítendő támogatásról, megtalálja az Önnek legmegfelelőbb egyedi konstrukciót.
Bankfüggetlen hitelügyintézőnk nagy szakmai tapasztalattal és a bankok ajánlatánál kedvezőbb lehetőségekkel segíti a Ikerház finanszírozását. Támogatja Önt a legkedvezőbb konstrukció kiválasztásában. Teljeskörűen összeállítja a hitelkérelmet, és a hitel folyósításáig végigkíséri az egész folyamatot.
CSOK-kal és Babaváró hitellel kapcsolatban is keressen minket bizalommal!
Kereső ügyfeleinknek a hitelközvetítői szolgáltatásaink ingyenesek.
Az otthon érték. Az ingatlan üzlet.
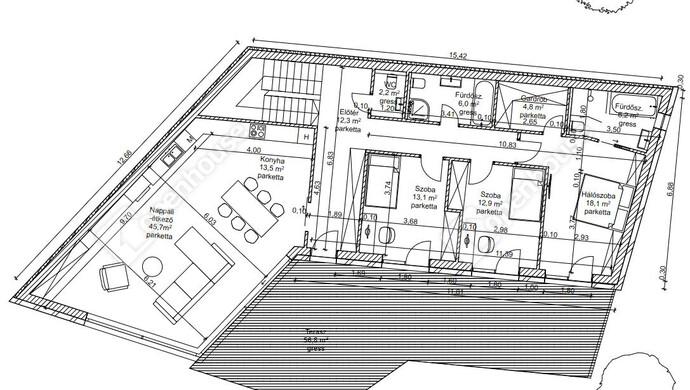
Helyiségek
| Helyiség | Alapterület | Padlóburkolat |
|---|---|---|
| Nappali | 45.70 m2 | |
| Konyha | 13.50 m2 | |
| Előszoba | 12.30 m2 | |
| Szoba | 13.10 m2 | |
| Szoba | 12.90 m2 | |
| Szoba | 18.10 m2 | |
| Fürdő | 6.00 m2 | |
| Fürdő | 6.20 m2 | |
| Gardrób | 4.80 m2 | |
| WC | 2.20 m2 | |
| Terasz | 56.80 m2 | |
| Garázs | 46.90 m2 | |
| Tároló | 9.00 m2 | |
| Háztartási helyiség | 8.90 m2 | |
| Közlekedő | 16.40 m2 | |
| Lépcsőház | 2.20 m2 |
Alaprajz





















Magyar
Angol 
