Teskánd, Eladó Társasházi lakás (#179073)
Modern otthon nyugalomban – új építésű családi ház Teskándon, Zalaegerszeg közvetlen közelében
Az Openhouse Zalaegerszeg Ingatlaniroda kínálatában eladó a #179073 hivatkozási számú teskándi társasházi lakás.
Zalaegerszeg nyugati tövében, a folyamatosan fejlődő és kedvelt Teskándon, egy csendes, rendezett családi házas lakóparkban kínálok megvételre egy új építésű, modern, egyszintes otthont. A lakóparkban kizárólag új építésű ingatlanok kapnak helyet, így a környezet egységes, letisztult és hosszú távon is értékálló.
A 2025-ös projekt részeként megvalósuló, 61 m²-es lakóterületű ingatlan ideális választás lehet azok számára, akik nyugalomra, korszerű műszaki tartalomra és alacsony fenntartási költségekre vágynak. Az ingatlan saját, körbekerített telekrésszel, valamint térkövezett kocsibeállóval rendelkezik, így a mindennapi kényelem és a privát élettér is biztosított.
A ház 30 cm-es Porotherm téglából épül, 15 cm vastag külső hőszigeteléssel, antracit színű tetőcserepekkel. A szigetelt, könnyűszerkezetes födém tovább növeli az energiahatékonyságot. A fűtésről és hűtésről modern levegő–levegő rendszerű hőszivattyú gondoskodik, helyiségenkénti egyedi szabályozással, amely rendkívül gazdaságos és kényelmes megoldást kínál. A meleg vizet hőtárolós, okos Ariston hőszivattyús villanybojler biztosítja, minimális energiafelhasználás mellett.
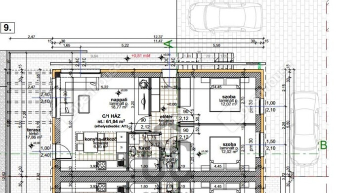
Az ingatlan elrendezése átgondolt és élhető:
– 61 m² alapterület
– amerikai konyhás nappali
– két külön nyíló szoba
– a két szoba között kialakított, mindkét helyiségből elérhető gardrób
– fürdőszoba, ahol zuhanyzó és kád is helyet kap
– külön WC
Az eredeti alaprajzhoz képest kisebb módosítások történtek, amelyek tovább növelik a komfortérzetet. A fürdőszoba az előtér rovására 70 cm-rel nagyobb lett, a gardrób kialakítása pedig praktikusabb tárolási lehetőséget biztosít a két szoba közt. Ezek a változtatások hivatalosan áttervezésre és engedélyeztetésre kerültek.
A ház járólapozott terasszal, valamint tető-előkészítéssel rendelkezik. A háromrétegű, fehér színű műanyag nyílászárók kiváló hő- és hangszigetelést biztosítanak, minden ablak redőnnyel felszerelt, igény szerint szúnyogháló is elhelyezhető.
A hirdetési ár tartalmazza a telekárat, egy darab térkövezett kocsibeállót, valamint a kulcsrakész állapotot, így Önnek már csak a költözés öröme marad. Az ingatlan CSOK és egyéb kedvezmények igénybevételére is alkalmas.
Befektetési szempontból is kiváló lehetőség, hiszen a környéken számos cég és magánszemély keres hosszú távra kiadó, modern, alacsony rezsijű ingatlanokat.
Várható átadás: 2026.március 31.
Teskánd különleges helyzetben van: közvetlenül Zalaegerszeg mellett fekszik, mégis megőrizte nyugodt, élhető falusi jellegét. Az elmúlt évtizedben jelentős fejlődésen ment keresztül, új utcák, családi házak és lakóparkok épültek. A településen működő vállalkozások, civil szervezetek, valamint az oktatási és szociális ellátás mind hozzájárulnak a magas életminőséghez. A sportcentrum, uszoda, kerékpárút és a Fitt-park az aktív, egészséges életmódot támogatja.
Ez az otthon azoknak szól, akik egy modern, szerethető, hosszú távon is értékes ingatlant keresnek, ahol minden adott a nyugodt mindennapokhoz.
Hívjon bizalommal, és legyen az Öné ez a minden igényt kielégítő, új építésű otthon. Itt már minden elkészül – Önnek csak meg kell érkeznie.
Ha felkeltette érdeklődését ez az eladó teskándi társasházi lakás, vagy bármely más társasházi lakás és bővebb információt szeretne, keressen bizalommal.
Hivatkozási szám: #179073
Az Openhouse Zalaegerszeg Ingatlaniroda tagjaként várom Önt az országos hálózatunk teljes kínálatával.
A társasházi lakás vásárláshoz hitelt igényelne? Ingyenes hitelközvetítéssel segít Önnek bankfüggetlen hitelszakértőnk.
További szolgáltatásainkkal (pl. értékbecslés, energetikai tanúsítvány, jogi háttér) is segítjük Önt a vásárlásban.
Az otthon érték. Az ingatlan üzlet.
Helyiségek
| Helyiség | Alapterület | Padlóburkolat |
|---|---|---|
| Előtér | 6.07 m2 | |
| Nappali | 18.77 m2 | |
| Amerikai konyha | 6.95 m2 | |
| Fürdő | 3.96 m2 | |
| WC | 1.25 m2 | |
| Szoba | 12.02 m2 | |
| Szoba | 12.02 m2 | |
| Terasz | 12.90 m2 |
Alaprajz

































Magyar 
