Budapest XVI. Ker., Eladó Családi ház (#179041)
ÚJ ÉPÍTÉSŰ IKERHÁZI OTTHON CINKOTÁN – AMIT NEM CSAK MEGVESZEL, HANEM JÓL IS VESZEL MEG
Az Openhouse Budapest City Home Ingatlaniroda kínálatában eladó a #179041 hivatkozási számú Budapest XVI. kerületi családi ház.
Új építésű ingatlant vásárolni nem szerencse kérdése – hanem szakértelemé.
21 éve foglalkozom új építésű ingatlanokkal, több mint 800 sikeres értékesítés tapasztalatával. Pontosan tudom, hol szoktak elcsúszni az új ház vásárlások – és azt is, hogyan lehet ezt elkerülni.
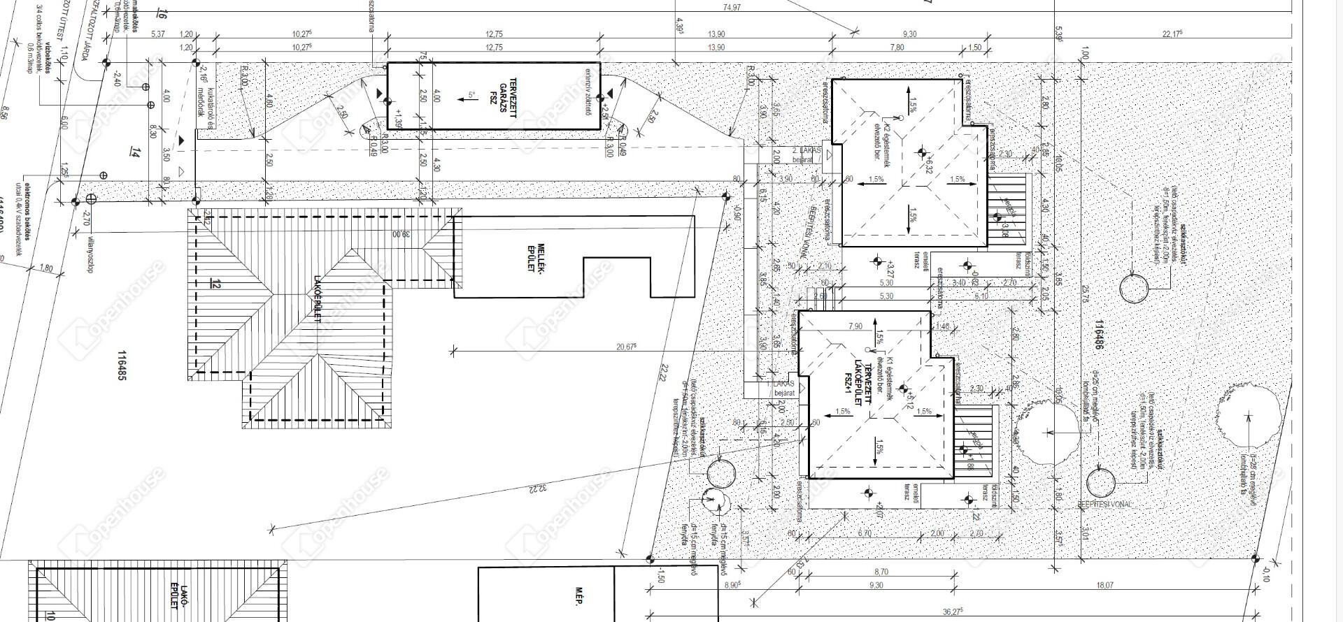
Ez az ingatlan nem ígéret, hanem egy átgondolt, referenciákkal rendelkező beruházás Cinkota egyik legjobb részén, a Naplás-tó közvetlen közelében.
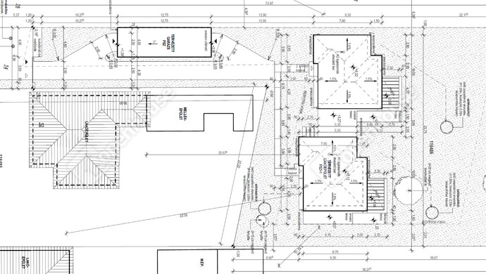
ELHELYEZKEDÉS – CSEND, TERMÉSZET, MÉGIS KIVÁLÓ KÖZLEKEDÉS
XVI. kerület, Cinkota családi házas övezete, átmenő forgalomtól mentes utcában.
Sétatávolságra:
-
Naplás-tó
-
Szilas-patak kerékpárút
-
természetvédelmi terület
Gyors elérés:
-
buszjáratok
-
HÉV
-
M0 autóút pár perc alatt
Intim, nyugodt környezet – városi kompromisszumok nélkül.
AZ INGATLAN – IKERHÁZ, AMI VALÓJÁBAN ÖNÁLLÓ
✔ 1400 m²-es telek
✔ ikerházanként ~700 m² saját telekrész
✔ a lakások csak a tárolóknál érintkeznek
✔ nincs közös lakótér-fal
✔ maximális privát szféra
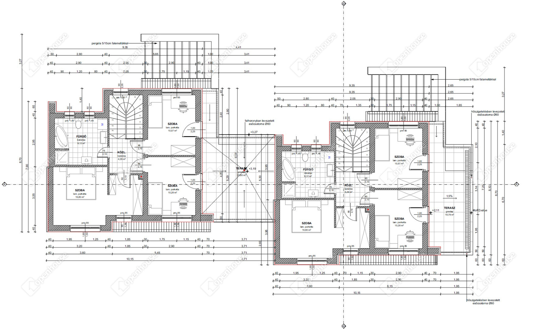
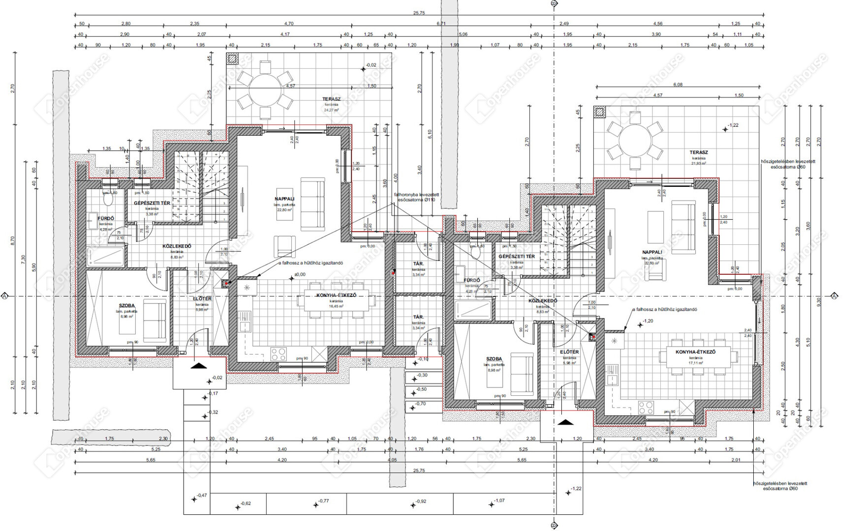
A2-es lakás
Nettó alapterület: 125 m², számolt alapterület 147 m²
Elrendezés: nappali + 4 hálószoba, dupla komfort
Teraszok összesen: közel 50 m² (földszint + emelet)
Földszint:
-
amerikai konyhás nappali–étkező (közel 40 m²)
-
hálószoba / dolgozó
-
fürdőszoba
-
gépészet, tároló
-
közvetlen kertkapcsolatos, nagy terasz
Emelet:
-
3 külön nyíló hálószoba
-
fürdőszoba
-
nagy, élhető emeleti terasz
MŰSZAKI TARTALOM – AMI TÉNYLEG SZÁMÍT
A ház a mai legszigorúbb energetikai és kivitelezési elvárások szerint épül:
-
Porotherm 30-as tégla
-
15 cm Dryvit hőszigetelés
-
szigetelt monolit födémek
-
3 rétegű, 6 légkamrás nyílászárók
-
rejtett tokos redőny előkészítés
-
10 kW-os hőszivattyú
-
padlófűtés minden helyiségben
-
fürdőkben törölközőszárítós radiátor
-
opcionálisan mennyezeti hűtés–fűtés
-
napelem előkészítés
-
riasztó és kaputelefon előkészítés
Burkolatok, szaniterek, beltéri ajtók – értékhatáron belül szabadon választhatók, saját ízlésre szabva.
PARKOLÁS, KERT, KÉNYELEM
-
lakásonként 2 gépkocsi-beálló
-
elektromos autó töltés előkészítés
-
elektromos kapu
-
kiépített járdák, kültéri burkolatok
-
parkosításra előkészített kert
-
a látványterveknek megfelelő, modern külső
MIÉRT FONTOS A SZAKÉRTŐI HÁTTÉR?
Új építésű háznál nem a látványterv a döntő, hanem:
-
mit tartalmaz pontosan a műszaki leírás,
-
hol vannak a rejtett költségek,
-
milyen ütemezés és garanciák védik a vevőt,
-
és mennyire megbízható a kivitelező.
Beruházó leinformálható, referenciái megtekinthetők.
A teljes folyamat során szakértői kontrollt kapsz, nem csak kulcsátadást.
FINANSZÍROZÁS
✔ Rugalmas fizetési feltételek
✔ díjmentes, teljes körű hitelügyintézés
ÁTADÁS
Tervezett átadás: 2026 év vége
Ha új építésű otthont keresel, és nem szeretnél hibázni,
ha fontos a privát tér, a minőség és az átlátható feltételek,
akkor ezt az ingatlant szakértői segítséggel érdemes megnézni.
Hívj bizalommal – nem csak egy házat mutatok, hanem biztonságos döntést segítek hozni.
Ha felkeltette érdeklődését ez az eladó Budapest XVI. kerületi családi ház, vagy bármely más családi ház és bővebb információt szeretne, keressen bizalommal.
Hivatkozási szám: #179041
Az Openhouse Budapest City Home Ingatlaniroda tagjaként várom Önt az országos hálózatunk teljes kínálatával.
A családi ház vásárláshoz hitelt igényelne? Ingyenes hitelközvetítéssel segít Önnek bankfüggetlen hitelszakértőnk.
További szolgáltatásainkkal (pl. értékbecslés, energetikai tanúsítvány, jogi háttér) is segítjük Önt a vásárlásban.
Az otthon érték. Az ingatlan üzlet.
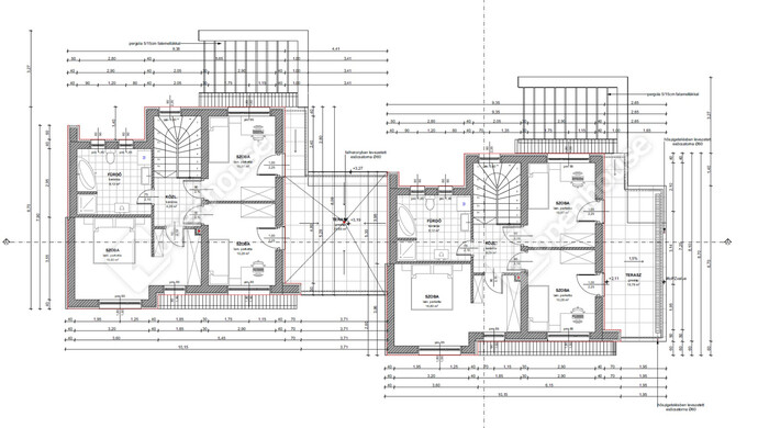
Helyiségek
| Helyiség | Alapterület | Padlóburkolat |
|---|---|---|
| Előtér | 5.98 m2 | Járólap |
| Közlekedő | 8.83 m2 | Járólap |
| Szoba | 8.98 m2 | Laminált padló |
| Fürdő | 4.28 m2 | Járólap |
| Kamra | 3.38 m2 | Járólap |
| Konyha | 16.39 m2 | Járólap |
| Nappali | 23.46 m2 | Laminált padló |
| Tároló | 3.34 m2 | Járólap |
| Terasz | 24.27 m2 | Járólap |
| Közlekedő | 4.29 m2 | Laminált padló |
| Fürdő | 9.12 m2 | Járólap |
| Szoba | 10.28 m2 | Laminált padló |
| Szoba | 10.57 m2 | Laminált padló |
| Szoba | 16.80 m2 | Laminált padló |
| Terasz | 18.79 m2 | Járólap |
Alaprajz











Magyar
Angol 
