Siófok, Eladó Társasházi lakás (#178965)
Siófok Ezüstparján új építésű luxus minőségű társasházi lakások eladók!
Az Openhouse Siófok kínálatában eladó a #178965 hivatkozási számú siófoki társasházi lakás.
Balaton. Privát tér. Jövőbiztos érték.
Nem egyszerűen lakás.
Ez egy életmód-befektetés a Balaton egyik legkeresettebb pontján, Siófokon, közvetlen vízparton.
A tó hullámai karnyújtásnyira, a horizont minden nap más árnyalatban festi újra a reggeleket. Itt épül fel egy négy tömbből álló, exkluzív lakópark, ahol a modern építészet és az időtálló érték találkozik.
Ami megkülönböztet:
-
Közvetlen balatoni elhelyezkedés – végig ingyenes szabadstrand, kulturált kiszolgáló egységekkel
-
Tégla építésű társasház, prémium minőség, hosszú távra tervezve, 32 lakással tömbönként
-
Okosotthon rendszer: fűtés, hűtés, világítás, redőnyök – bárhonnan, egy érintéssel vezérelhető
-
Zárt udvari kocsibeállók – biztonság és kényelem kompromisszum nélkül
-
Letisztult, kortárs terek, amelyek nem követik a trendeket – megelőzik azokat
Elhelyezkedés, ami ritka – és egyre ritkább lesz:
-
Helyi buszmegálló közvetlen az épület előtt
-
Vasútállomás pár perc sétára – Budapest és a Balaton között zökkenőmentes kapcsolat
-
Üzletek, éttermek, szolgáltatások a közvetlen közelben
Kinek szól?
Azoknak, akik nem kompromisszumot keresnek, hanem pozíciót.
Akik tudják, hogy a vízparti ingatlan nem kiadás, hanem eszköz.
Akik saját használatra, kiemelkedő hozammal kiadásra vagy hosszú távú értékmegőrzésre gondolkodnak.
Ez a projekt nem tömegnek készül.
Ez azoknak épül, akik felismerik az időtálló lehetőséget – mielőtt mások is észrevennék.
Balaton-part. Siófok. Egy új mérce.
Ha felkeltette érdeklődését ez az eladó siófoki társasházi lakás, vagy bármely más társasházi lakás és bővebb információt szeretne, keressen bizalommal.
Hivatkozási szám: #178965
Az Openhouse Siófok tagjaként várom Önt az országos hálózatunk teljes kínálatával.
A társasházi lakás vásárláshoz hitelt igényelne? Ingyenes hitelközvetítéssel segít Önnek bankfüggetlen hitelszakértőnk.
További szolgáltatásainkkal (pl. értékbecslés, energetikai tanúsítvány, jogi háttér) is segítjük Önt a vásárlásban.
Az otthon érték. Az ingatlan üzlet.
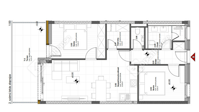
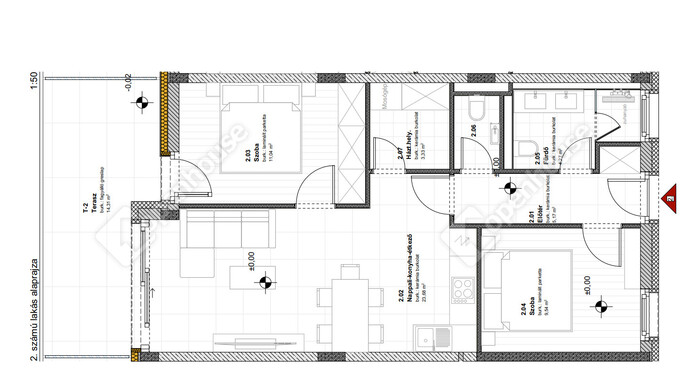
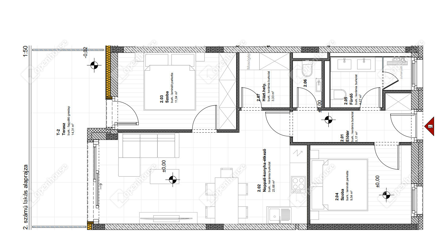
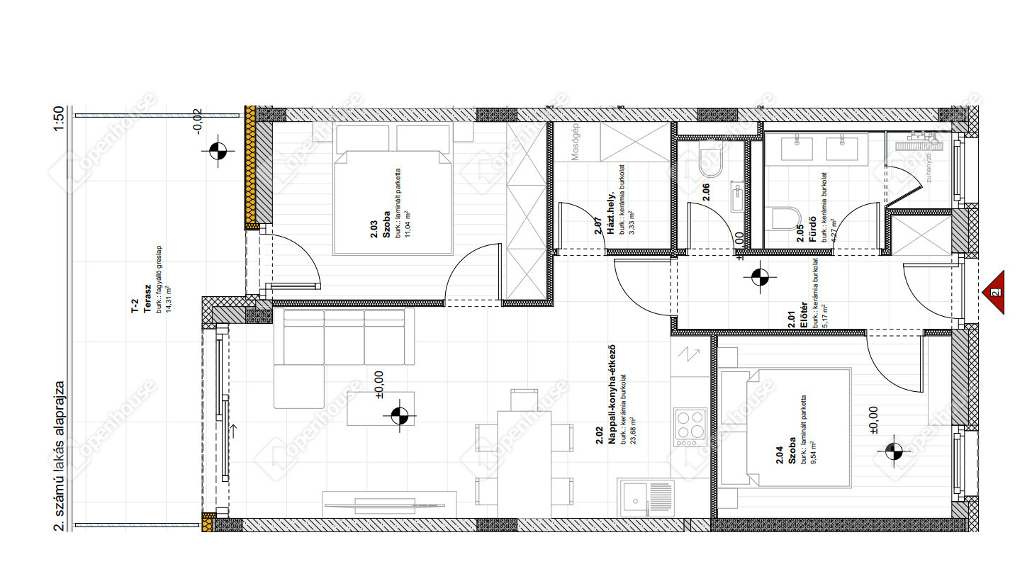
Helyiségek
| Helyiség | Alapterület | Padlóburkolat |
|---|---|---|
| Előtér | 5.36 m2 | Járólap |
| Nappali | 23.58 m2 | Laminált padló |
| Szoba | 11.04 m2 | Laminált padló |
| Szoba | 9.54 m2 | Laminált padló |
| Fürdő | 4.21 m2 | Járólap |
| WC | 1.35 m2 | Járólap |
| Háztartási helyiség | 2.96 m2 | Járólap |
| Terasz | 14.30 m2 | Járólap |
Alaprajz
















Magyar 
