Miskolc, Eladó Társasházi lakás (#178766)
Álmodjon egy új otthonról Miskolc legkeresettebb, exkluzív helyszínén, a Bodótetőn!
Az Openhouse Miskolc Soltész Nagy Kálmán utcai Ingatlaniroda kínálatában eladó a #178766 hivatkozási számú miskolci társasházi lakás.
KIVÉTELES AJÁNLAT MISKOLC SZÍVÉBEN: PANORÁMÁS LUXUS A BODÓTETŐN!
Álmodjon egy új otthonról Miskolc legkeresettebb, exkluzív helyszínén, a Bodótetőn, ahol a prémium minőség és a lélegzetelállító panoráma találkozik!
Ez nem csupán egy lakás – ez egy életstílus.
Főbb Jellemzők:
- Elhelyezkedés: Miskolc legjobb helyén, a Bodótetőn, új társasházban.
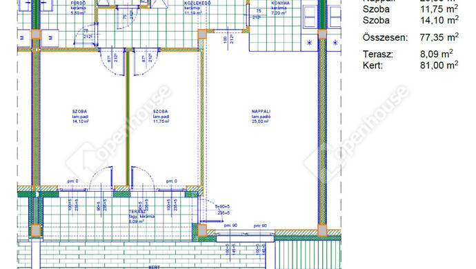
- Lakások Paraméterei: Nappali + 1 szoba 63m2-en, Nappali + 2 szoba 77 m2-en, Nappali + 2 szoba 100 m2-en 33 m2-es terasszal. Minden lakáshoz nagy alapterületű félig nyitott, félig zárt erkély tartozik, a földszinti lakások pedig kertkapcsolatosak.
- Energiatudatos Megoldások: 20 cm-es homlokzati hőszigetelés, 3 rétegű hőszigetelt műanyag ablakok.
- Modern Gépészet: Mitsubishi levegő-levegő hőszivattyús hűtés-fűtési rendszer, villanybojlerek.
- Akusztikus Komfort: 30 cm vastag hanggátló falak a teljes nyugalomért.
- Kulcsrakész Állapot: Csak költöznie kell!
- Fenntarthatóság: Saját napelemek biztosítják az elektromos autók töltését a garázsban.
- Extrák: Kávézó és modern játszótér az udvaron, teremgarázs beállóhelyek és tárolók vásárlási lehetősége.
Befektetésre is Kiváló: Egyes lakások hosszú távra, kulcsrakészen, konyhabútorral felszerelve bérbe is kivehetők!
Ne maradjon le erről a páratlan lehetőségről! Tapasztalja meg a prémium életérzést!
Érdeklődjön még ma a részletekért és a megtekintésért!
Ha felkeltette érdeklődését ez az eladó miskolci társasházi lakás, vagy bármely más társasházi lakás és bővebb információt szeretne, keressen bizalommal.
Hivatkozási szám: #178766
Az Openhouse Miskolc Soltész Nagy Kálmán utcai Ingatlaniroda tagjaként várom Önt az országos hálózatunk teljes kínálatával.
A társasházi lakás vásárláshoz hitelt igényelne? Ingyenes hitelközvetítéssel segít Önnek bankfüggetlen hitelszakértőnk.
További szolgáltatásainkkal (pl. értékbecslés, energetikai tanúsítvány, jogi háttér) is segítjük Önt a vásárlásban.
Az otthon érték. Az ingatlan üzlet.
Helyiségek
| Helyiség | Alapterület | Padlóburkolat |
|---|---|---|
| Nappali | 25.00 m2 | Laminált padló |
| Szoba | 12.00 m2 | Laminált padló |
| Szoba | 14.00 m2 | Laminált padló |
| Konyha | 7.00 m2 | Járólap |
| Fürdő | 6.00 m2 | Járólap |
| WC | 2.00 m2 | Járólap |
| Közlekedő | 11.00 m2 | Járólap |
| Terasz | 8.00 m2 | Járólap |






























Magyar 
