Bocfölde, Eladó Családi ház (#178761)
„Bocföldén épülő álomotthon – ahol a panoráma és a kényelem találkozik.”
Az Openhouse Zalaegerszeg Ingatlaniroda kínálatában eladó a #178761 hivatkozási számú bocföldei családi ház.
Eladó egy exkluzív, új építésű családi ház Bocföldén, gyönyörű panorámás környezetben, Zalaegerszegtől mindössze 5 percnyi autóútra. Bocföldéről érdemes az interneten is utánaolvasni, hiszen kiváló elhelyezkedésű település, közel a városhoz és a munkahelyekhez.
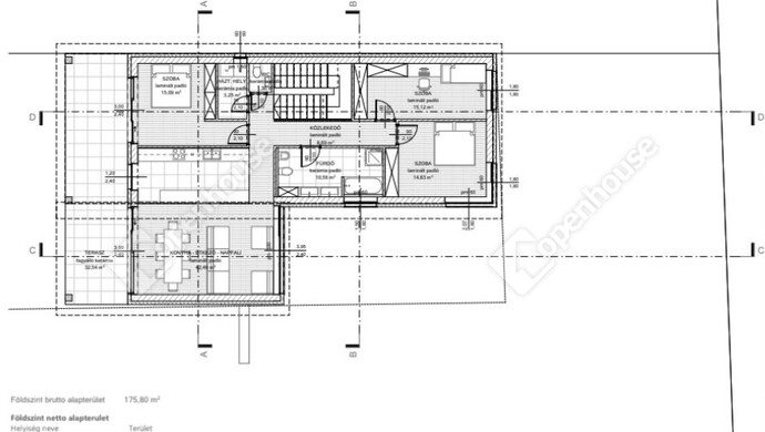
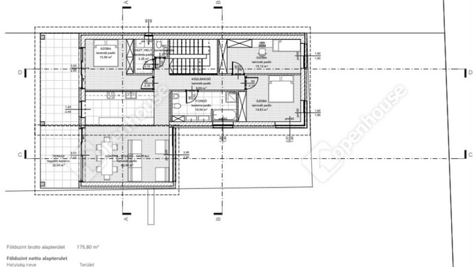
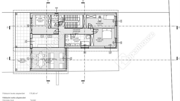
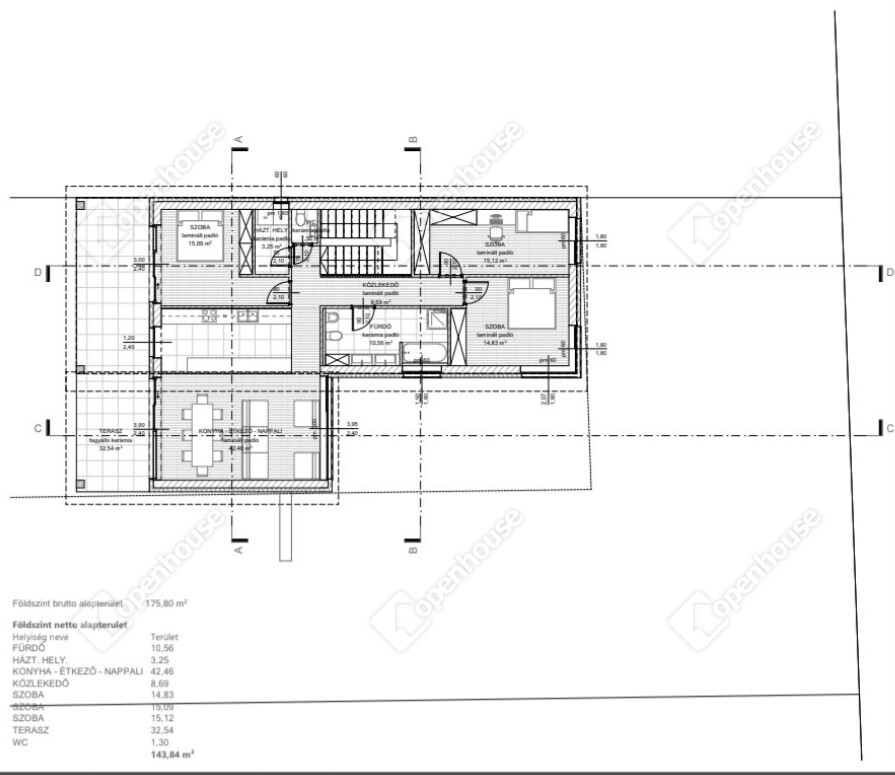
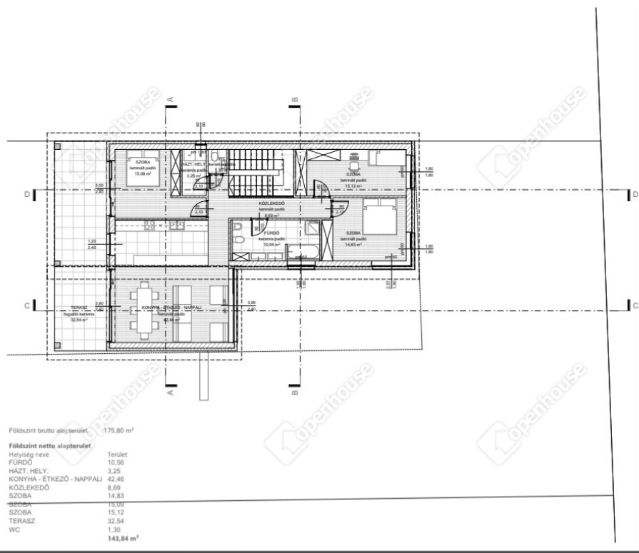
Ez a 216 m²-es, nettó alapterületű ingatlan jelenleg az alapozási fázisban van, és engedélyezett tervek szerint 2026 nyarára készül el. Az ingatlan két szintes: a földszinten amerikai konyhás, étkezős nappali, három hálószoba, egy fürdő, egy háztartási helyiség, valamint egy külön WC kap helyet, és a nappaliból egy 32 m²-es teraszra léphetünk ki.
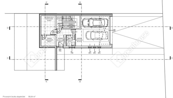
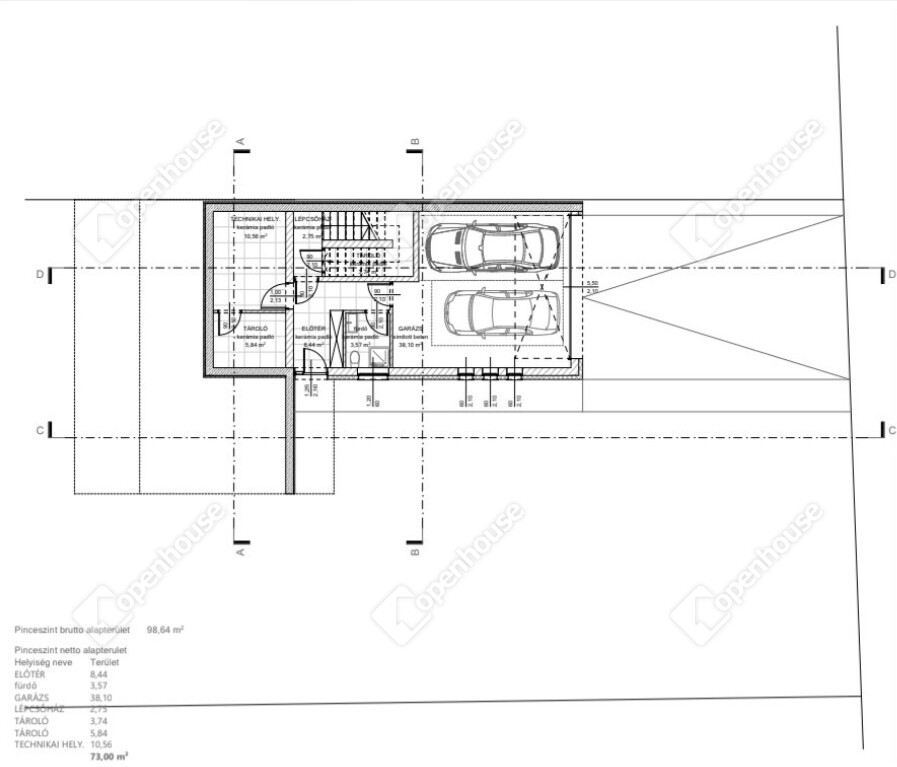
Az alsó, pinceszinten egy 38 m²-es dupla garázs, előtér, fürdő, két tároló, valamint a hőszivattyús fűtési és melegvíz ellátást biztosító technikai helyiség található.
A ház modern műanyag, háromrétegű üvegezésű nyílászárókkal, 30-as Porotherm tégla falakkal és 20 cm-es szigeteléssel készül, betonfödémmel és antracit tetőcseréppel. A gáz kivételével minden közmű be van kötve, a fűtés padlófűtés formájában működik majd. A ház rendkívül napfényes, tágas, és a vevő igényei szerint is alakítható, ha még időben megállapodik a kivitelezővel.
Ne hagyja ki ezt a különleges lehetőséget, hiszen egy igazán jó helyen, Zalaegerszeg közvetlen közelében található, kiváló infrastrukturális adottságokkal és remek munka lehetőségekkel. Bocföldéről bővebb információt is találhat az interneten – győződjön meg róla, hogy ez a ház valóban egyedi lehetőséget
Ha felkeltette érdeklődését ez az eladó bocföldei családi ház, vagy bármely más családi ház és bővebb információt szeretne, keressen bizalommal.
Hivatkozási szám: #178761
Az Openhouse Zalaegerszeg Ingatlaniroda tagjaként várom Önt az országos hálózatunk teljes kínálatával.
A családi ház vásárláshoz hitelt igényelne? Ingyenes hitelközvetítéssel segít Önnek bankfüggetlen hitelszakértőnk.
További szolgáltatásainkkal (pl. értékbecslés, energetikai tanúsítvány, jogi háttér) is segítjük Önt a vásárlásban.
Az otthon érték. Az ingatlan üzlet.
Helyiségek
| Helyiség | Alapterület | Padlóburkolat |
|---|---|---|
| Fürdő | 10.00 m2 | |
| Háztartási helyiség | 3.25 m2 | |
| Amerikai konyha | 42.46 m2 | |
| Közlekedő | 8.69 m2 | |
| Szoba | 14.83 m2 | |
| Szoba | 15.09 m2 | |
| Szoba | 15.12 m2 | |
| WC | 1.30 m2 | |
| Terasz | 32.54 m2 | |
| Előtér | 8.44 m2 | |
| Fürdő | 3.57 m2 | |
| Garázs | 38.10 m2 | |
| Lépcsőház | 2.75 m2 | |
| Tároló | 3.74 m2 | |
| Tároló | 5.84 m2 | |
| Kazánház | 10.56 m2 |
Alaprajz





















Magyar 
