Bábolna, Eladó Családi ház (#178604)
Eladó ÚJ ÉPÍTÉSŰ ház Bábolnán!
Az Openhouse Győr - Belváros Ingatlaniroda kínálatában eladó a #178604 hivatkozási számú bábolnai családi ház.
L02 IKERHÁZ
EGY SZINTES, 4 SZOBÁS IKERHÁZ, 872 m²-ES SAJÁT KERTTEL – BÁBOLNA LEGNAPOSABB ÉS LEGJOBB TÁJOLÁSÚ RÉSZÉN!
Eladó egy különleges adottságú, modern, időtálló szerkezetű és kiemelkedően energiatakarékos ikerházi lakás, egy ritkán elérhető, 872 m²-es saját telekrésszel, amely tökéletes játszótér, kert, pihenőkert, medence vagy akár egy wellness-zóna kialakításához is.
Bár hivatalosan ikerháznak számít, a nagy alapterület, a tágas, jól átgondolt belső terek és a családi házas érzetet adó kialakítás miatt valójában egy teljes értékű, önálló családi otthon benyomását kelti.
A nappali hatalmas üvegfelületei a délkeleti, déli és délnyugati irányok felé nyitnak – ez garancia arra, hogy az otthon napfényben ússzon a nap minden szakaszában.
MŰSZAKI MEGOLDÁSOK – MINŐSÉG AZ ALAPOKTÓL
-
Leier kéregfal + Leier födém – masszív, tartós, értékálló
-
Porotherm válaszfalak – magas komfortérzet
-
20 cm homlokzati hőszigetelés, szigetelt aljzat és tető
-
BB energetika, kimagasló hőtechnika
-
Háromrétegű műanyag nyílászárók
-
Padlófűtés gázcirkóval, modern hűtő-fűtő klímával kiegészítve
-
Hővisszanyerős szellőzőrendszer – egészséges beltéri levegő
-
Külön víz-, gáz- és villanyóra – teljes önállóság
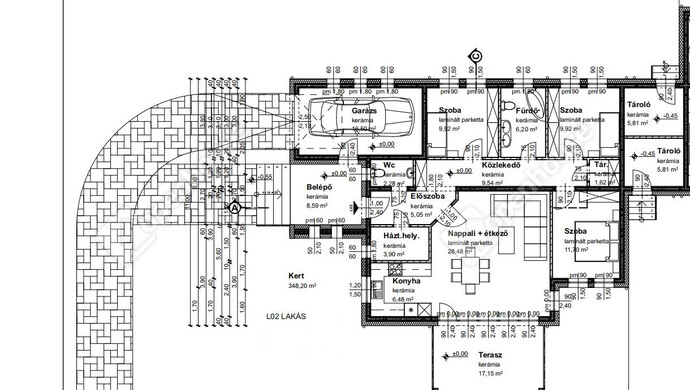
TÖKÉLETES CSALÁDI ALAPRAJZ
-
28,48 m² nappali–étkező közvetlen kertkapcsolattal
-
Konyha
-
3 hálószoba – két generációnak vagy nagycsaládnak ideális
-
Tágas előszoba
-
Fürdő + külön WC
-
Háztartási helyiség
-
Belső tároló
BELSŐ TEREK – A TE ÍZLÉSEDRE FORMÁLVA
Emelt szintű fűtéskész átadás.
Igény esetén kulcsrakészen is átvehető.
Ha a nagy kert, a napfényes terek, a modern technológia és a hosszú távú értékállóság a cél, akkor az L02 ikerház minden szempontból tökéletes választás!
Ha felkeltette érdeklődését ez az eladó bábolnai családi ház, vagy bármely más családi ház és bővebb információt szeretne, keressen bizalommal.
Hivatkozási szám: #178604
Az Openhouse Győr - Belváros Ingatlaniroda tagjaként várom Önt az országos hálózatunk teljes kínálatával.
A családi ház vásárláshoz hitelt igényelne? Ingyenes hitelközvetítéssel segít Önnek bankfüggetlen hitelszakértőnk.
További szolgáltatásainkkal (pl. értékbecslés, energetikai tanúsítvány, jogi háttér) is segítjük Önt a vásárlásban.
Az otthon érték. Az ingatlan üzlet.
Helyiségek
| Helyiség | Alapterület | Padlóburkolat |
|---|---|---|
| Előtér | 8.59 m2 | Beton |
| Garázs | 16.50 m2 | Beton |
| WC | 2.28 m2 | Beton |
| Előszoba | 5.05 m2 | Beton |
| Háztartási helyiség | 3.90 m2 | Beton |
| Közlekedő | 9.54 m2 | Beton |
| Nappali | 28.48 m2 | Beton |
| Amerikai konyha | 6.48 m2 | Beton |
| Terasz | 17.15 m2 | Beton |
| Szoba | 11.70 m2 | Beton |
| Szoba | 9.92 m2 | Beton |
| Szoba | 9.92 m2 | Beton |
| Fürdő | 6.20 m2 | Beton |
| Tároló | 5.81 m2 | Beton |
| Tároló | 1.62 m2 | Beton |
Alaprajz











Magyar 
