Bábolna, Eladó Családi ház (#178552)
Eladó ÚJ ÉPÍTÉSŰ ház Bábolnán!
Az Openhouse Győr - Belváros Ingatlaniroda kínálatában eladó a #178552 hivatkozási számú bábolnai családi ház.
ÚJ ÉPÍTÉSŰ, EGY SZINTES IKERHÁZ BÁBOLNÁN – PRÉMIUM ANYAGOK, TÁGAS TEREK ÉS NAPFÉNYES OTTHON!
L01 IKERHÁZ – telek: 660,24 m²
Eladó Bábolna egyik legnyugodtabb, csendes utcájában egy emelt szintű fűtéskészen átadásra kerülő, modern, időtálló és rendkívül energiatakarékos ikerházi lakás, egy 660 m²-es saját telekrésszel.
Bár hivatalosan ikerháznak számít, a nagy alapterület, a tágas, jól átgondolt belső terek és a családi házas érzetet adó kialakítás miatt valójában egy teljes értékű, önálló családi otthon benyomását kelti.
A ház szíve a nagy üvegfelületekkel megnyitott nappali–étkező, amely a délkeleti–déli tájolásnak köszönhetően egész nap természetes fényt kap, és közvetlen kapcsolatban áll a terasszal és a kerttel.
MŰSZAKI TARTALOM –
-
Leier kéregfalak és Leier födém – prémium, időtálló szerkezet
-
Porotherm válaszfalak – kiváló hangszigeteléssel
-
20 cm homlokzati szigetelés + szigetelt aljzat és tető → BB energetikai besorolás
-
Háromrétegű nyílászárók, első osztályú hő- és zajvédelemmel
-
Gázcirkó padlófűtés, plusz hűtő-fűtő klíma – kényelmes és energiatakarékos üzemeltetés
-
Hővisszanyerős szellőztető rendszer
-
Minden lakáshoz külön víz-, gáz- és villanyóra
ELRENDEZÉS – A JÖVŐ OTTHONÁNAK MINTÁJA
-
29 m²-es nappali–étkező óriási üvegfelületekkel + 7,2 m²-es konyha
-
Nappali+ 3 db szoba, amik közel 13 m²-esek – ideális nagycsaládnak, vendégszobának, otthoni irodának
-
Tágas fürdő + külön WC
-
Háztartási helyiség + belső tároló
-
18,9 m²-es garázs közvetlen bejárattal
-
23 m² fedett terasz
Az építkezés folyamatosan halad, a ház napról napra szebb lesz, ezért a hirdetésben szereplő fotókat is rendszeresen frissítjük.
Ha felkeltette érdeklődését ez az eladó bábolnai családi ház, vagy bármely más családi ház és bővebb információt szeretne, keressen bizalommal.
Hivatkozási szám: #178552
Az Openhouse Győr - Belváros Ingatlaniroda tagjaként várom Önt az országos hálózatunk teljes kínálatával.
A családi ház vásárláshoz hitelt igényelne? Ingyenes hitelközvetítéssel segít Önnek bankfüggetlen hitelszakértőnk.
További szolgáltatásainkkal (pl. értékbecslés, energetikai tanúsítvány, jogi háttér) is segítjük Önt a vásárlásban.
Az otthon érték. Az ingatlan üzlet.
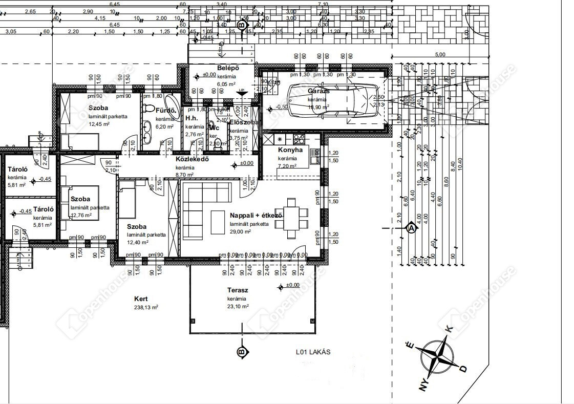
Helyiségek
| Helyiség | Alapterület | Padlóburkolat |
|---|---|---|
| Nappali | 29.00 m2 | Beton |
| Amerikai konyha | 7.20 m2 | Beton |
| Közlekedő | 8.70 m2 | Beton |
| Előszoba | 3.75 m2 | Beton |
| WC | 2.80 m2 | Beton |
| Háztartási helyiség | 2.76 m2 | Beton |
| Fürdő | 6.20 m2 | Beton |
| Szoba | 12.45 m2 | Beton |
| Szoba | 12.45 m2 | Beton |
| Szoba | 12.45 m2 | Beton |
| Tároló | 5.81 m2 | Beton |
| Garázs | 18.90 m2 | Beton |
| Terasz | 23.10 m2 | Beton |
| Előtér | 6.05 m2 | Beton |
Alaprajz















Magyar 
